EasyManua.ls Logo

Riello PRESS 2G - PRESS GW Electrical Connection of Burner (Single-Phase Model)

Riello PRESS 2G
48 pages
Print Icon
To Next Page IconTo Next Page
To Next Page IconTo Next Page
To Previous Page IconTo Previous Page
To Previous Page IconTo Previous Page
Loading...
20140894
28
GB
Electrical system
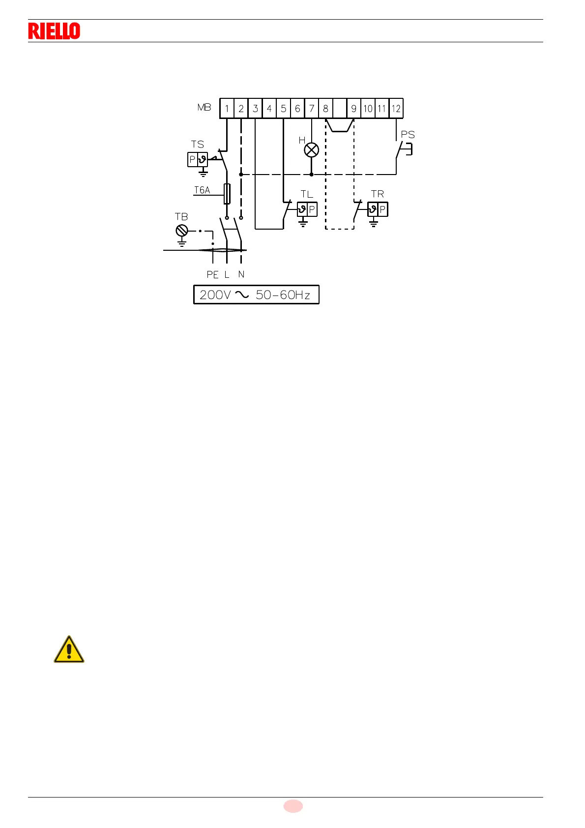
6.2.3 PRESS GW electrical connection of burner (single-phase model)
(by installer)
Key (Fig. 25):
IN - Manual burner stop switch
MB- Burner terminal strip
PS- Lock-out reset button
S - Remote lock-out signal
TB- Burner ground (earth) connection
TL- Limit control device system:
This shuts down the burner when the boiler temperature or
pressure exceeds the setpoint value.
TR- High-low mode control device system:
This controls operating stages 1 and 2 and is necessary
only for two-stage operation.
TS- Safety control device system:
This operates when TL is faulty.
NOTE:
the burner is delivered preset for single-stage operation with
a jumper inserted in the terminal strip, see (Fig. 27 at page 29).
If two-stage operation is required, remove the jumper between
terminals 10-11 and insert the control device TR in its place to
command the 2nd gas oil solenoid valve.
NOTE:
These models leave the factory preset for 200V power supply
50Hz.
WARNING
Do not invert the neutral with the phase wire
in the electricity supply line. Any inversion
would cause a lockout due to firing failure.
Only use original spare parts to replace the
components.

Table of Contents

Related product manuals