EasyManua.ls Logo

Riverside Hydronics 400 - Page 10

Riverside Hydronics 400
48 pages
Print Icon
To Next Page IconTo Next Page
To Next Page IconTo Next Page
To Previous Page IconTo Previous Page
To Previous Page IconTo Previous Page
Loading...
M3
CONDENSING WATER BOILER
10
34-1115 12/15
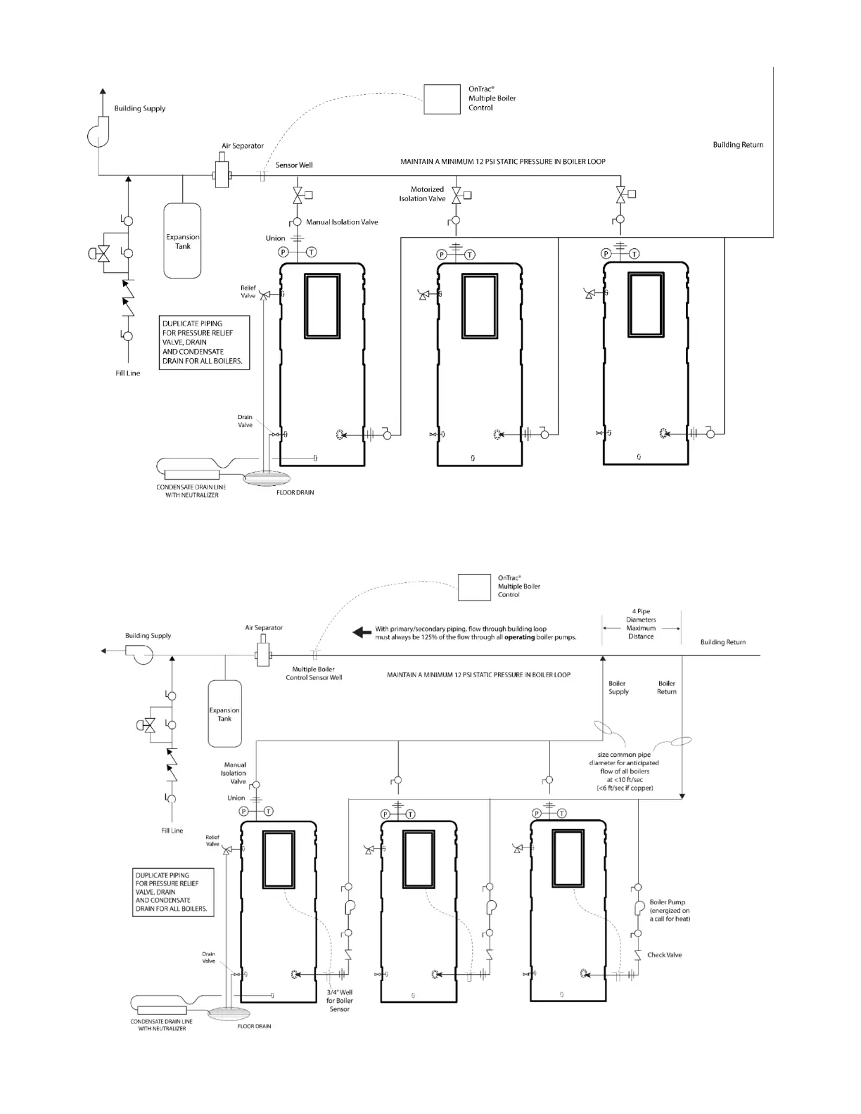
Example of a Multi Boiler, Primary Only Installation
Example of a Multi Boiler, Primary/Secondary Only Installation

Table of Contents

Related product manuals