EasyManua.ls Logo

Riverside Hydronics 400 - General Piping Guidelines; Supply and Return Connections

Riverside Hydronics 400
48 pages
Print Icon
To Next Page IconTo Next Page
To Next Page IconTo Next Page
To Previous Page IconTo Previous Page
To Previous Page IconTo Previous Page
Loading...
M3
CONDENSING WATER BOILER
9
34-1115 12/15
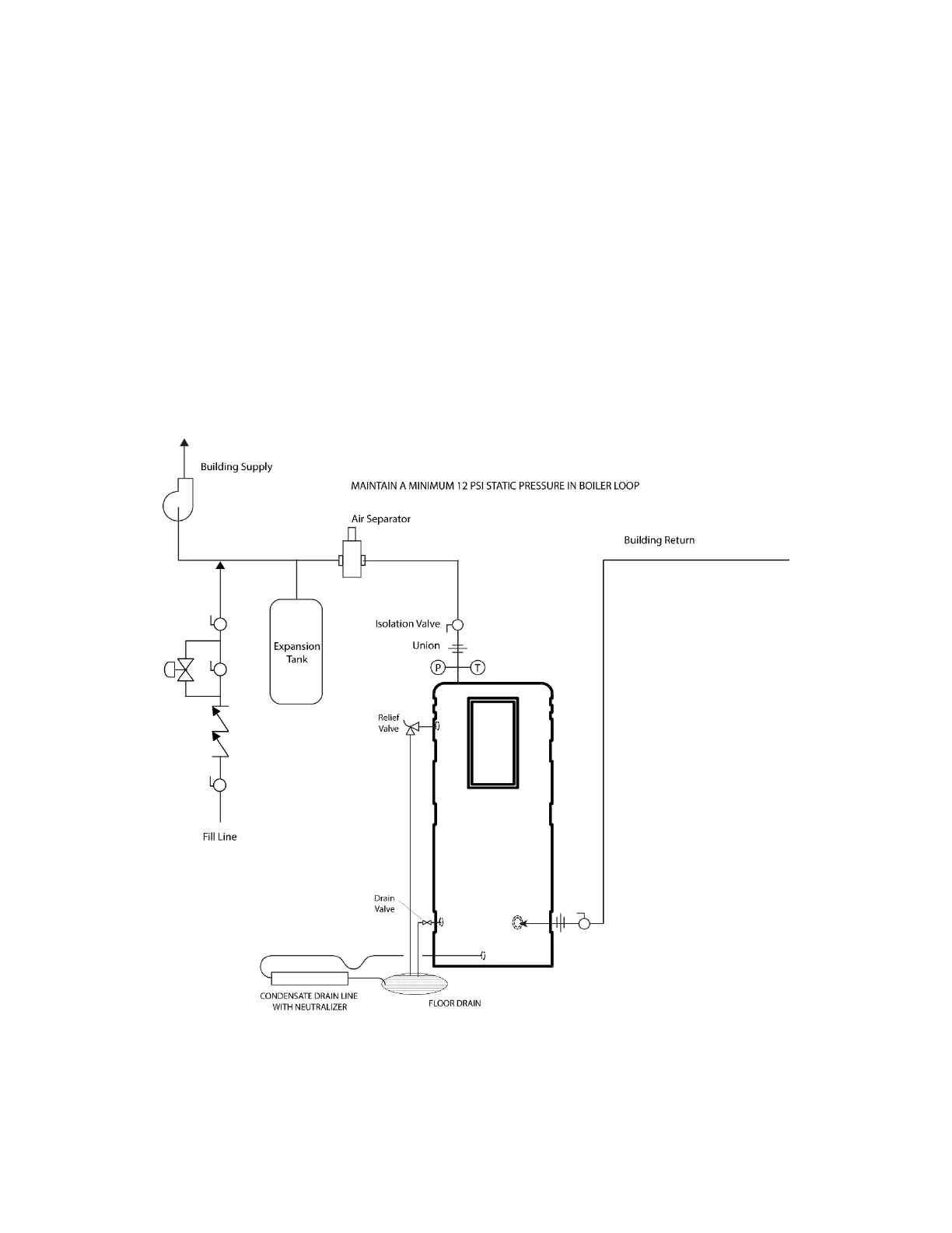
4 GENERAL PIPING GUIDELINES
4.1 Supply and Return Connections
1. Connect the boiler system return piping (water to be heated) to the “Return” fitting located near the bottom and
rear of the boiler.
2. Connect the system supply piping (hot water out of the unit)) to the “Supply” fitting located and accessed at the
top of the boiler.
3. Install shut-off valves and unions on the Return and Supply piping for servicing. Use caution when threading pipe
nipples into tank connections to prevent cross threading, or over-tightening. Always use a back-up wrench on tank
nipples when tightening unions, valves, etc.
4. Take those steps necessary to avoid the risk of boiler water freezing in the boiler or system piping (such as
adding glycol (up to 50%), insulating pipes, heat trace, etc.).
5. Pipe the drain valve to a suitable open drain capable of receiving discharge temperatures up to 212ºF.
IMPORTANT: Do not use the plumbing connected to the appliance as a ground for welding or any other purpose.
Example of a Single Boiler, Primary Only Installation

Table of Contents

Related product manuals