EasyManua.ls Logo

Rockwell Automation 2198-C1007-ERS

Rockwell Automation 2198-C1007-ERS
246 pages
To Next Page IconTo Next Page
To Next Page IconTo Next Page
To Previous Page IconTo Previous Page
To Previous Page IconTo Previous Page
Loading...
Rockwell Automation Publication 2198-UM005C-EN-P - February 2022 181
Appendix A Interconnect Diagrams
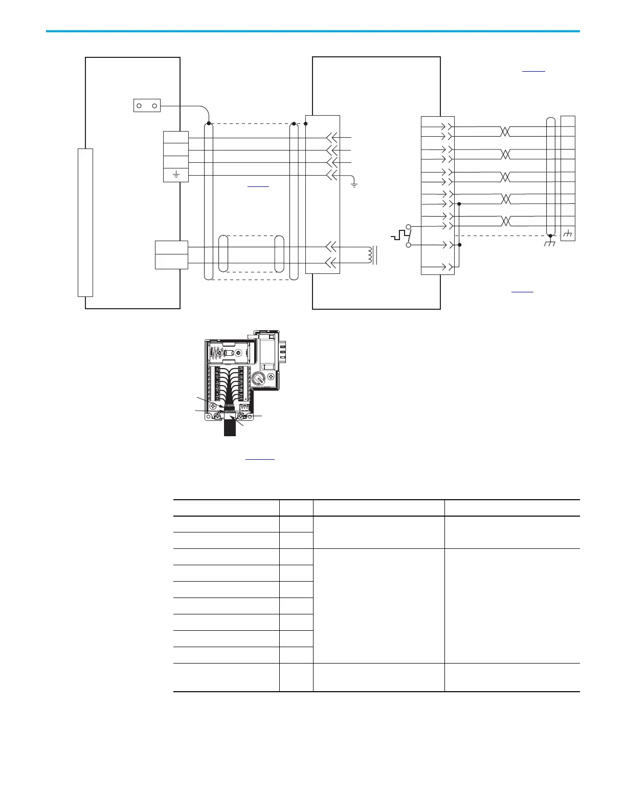
Figure 90 - Kinetix 5300 with Kinetix MP Electric Cylinders
Table 90 - Kinetix MPAI and MPAR Electric Cylinder Power and Feedback Cables
C
B
A
MBRK+
MBRK-
F
G
U
V
W
SIN+
SIN-
COS+
COS-
DATA+
DATA-
+5VDC
ECOM
GREEN
WHT/GREEN
GRAY
WHT/GRAY
BLACK
WHT/BLACK
RED
WHT/RED
3
4
5
6
1
2
9
10
1
2
3
4
5
10
14
6
14
12
+9VDC
TS
ORANGE
WHT/ORANGE
11
13
7
11
GND
D
U
V
W
1
2
MBRK +
MBRK -
Brown
Black
Blue
Green/Yellow
White
Black
Shield
COM
8
7
6
5
4
3
2
1
10
11
12
13
14
+
--
1
2
3
4
5
6
7
8
9
10
11
12
13
14
15
Motor Brake
Motor Brake
Connector
Motor Power
Connector
MPAR-A/Bxxxxx and
MPAI-A/Bxxxxx
Electric Cylinders with
High-resolution Feedback
Motor Feedback
(MFB) Connector
Three-phase
Motor Power
Motor
Feedback
Thermostat
Grounding Technique for
Feedback Cable Shield
Refer to table on page 169
for
note information.
Cable Shield
Clamp
Note 5
2198-Cxxxx-ERS
Kinetix 5300 Servo Drives
Refer to Table 90
for
(flying-lead) motor feedback cable.
Notes 8, 9, 10
Refer to Table 90 for
motor power cable.
See connector kit
illustration (below)
2198-K53CK-D15M Feedback
Connector Kit
Use the 2198-K53CK-D15M
feedback connector kit when
building your own cables.
Refer to Kinetix 5300 Feedback Connector Kit
Installation Instructions, publication 2198-IN023
, for
connector kit specifications.
360° exposed shield that
is secured under clamp.
Clamp Screws (2)
Clamp
Tie Wrap
Electric Cylinder Cat. No. Frame Power Cable Cat. No. Feedback Cable Cat. No.
MPAR-A/B1xxx (series A and B) 32
2090-XXNPMF-16Sxx (standard) or
2090-CPxM4DF-16AFxx (continuous-flex)
2090-XXNFMF-Sxx (standard) or
2090-CFBM4DF-CDAFxx (continuous-flex)
MPAR-A/B2xxx (series A and B) 40
MPAR-A/B1xxx (series A and B) 32
2090-CPxM7DF-16AAxx (standard) or
2090-CPxM7DF-16AFxx (continuous-flex)
2090-CFBM7DF-CEAAxx (standard) or
(1)
2090-CFBM7DF-CEAFxx (continuous-flex)
MPAR-A/B2xxx (series A and B) 40
MPAR-A/B3xxx 63
MPAI-A/B2xxxx 64
MPAI-A/B3xxxx 83
MPAI-A/B4xxxx 110
MPAI-B5xxxx 144
MPAI-A5xxxx 144
2090-CPxM7DF-14AAxx (standard) or
2090-CPxM7DF-14AFxx (continuous-flex)
2090-CFBM7DF-CEAAxx (standard) or
(1)
2090-CFBM7DF-CEAFxx (continuous-flex)
(1) 2090-CFBM7DD-CEAxxx (drive-end connector) feedback cables are also available.

Table of Contents

Other manuals for Rockwell Automation 2198-C1007-ERS

Related product manuals