EasyManua.ls Logo

Rotex A1 BG - Flue Gas System Kits

Rotex A1 BG
64 pages
Print Icon
To Next Page IconTo Next Page
To Next Page IconTo Next Page
To Previous Page IconTo Previous Page
To Previous Page IconTo Previous Page
Loading...
16
FA ROTEX A1 BGe - 02/2014
4 x Set-up and installation
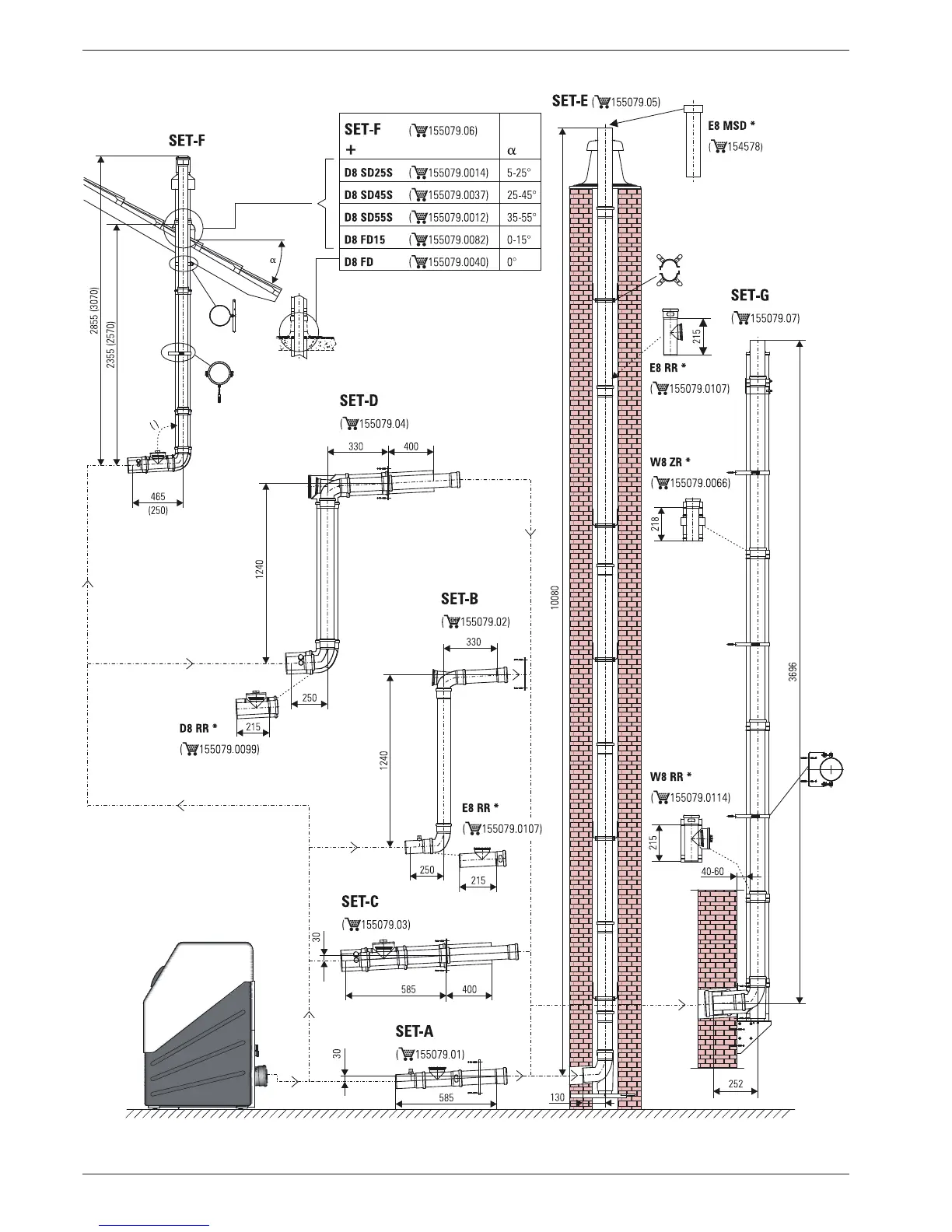
4.5.3 Flue gas system kits
Fig. 4-8 Flue gas system components (* if necessary)

Table of Contents

Related product manuals