EasyManua.ls Logo

Sanyo SPW-C1903GDYH8 - Dimensional Data

Sanyo SPW-C1903GDYH8
377 pages
Print Icon
To Next Page IconTo Next Page
To Next Page IconTo Next Page
To Previous Page IconTo Previous Page
To Previous Page IconTo Previous Page
Loading...
IV - 35
TD831077
4
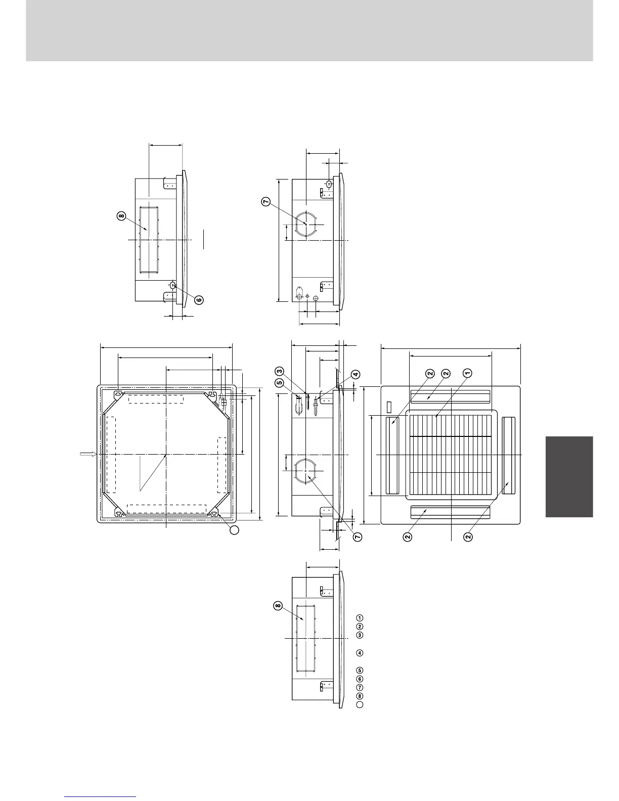
W-ECO MULTI SYSTEM Unit Specifications
2-3. Dimensional data
Indoor unit : 12, 18, 25 Type
2. 4-Way Air Discharge Semi-concealed Type
860
100
760
500
500
298 30
205
165
12
12
48
860
820 (Ceiling opening)
820 (Ceiling opening)
61
730 (Suspention bolt pitch)
Panel center
590 (Suspention bolt pitch)
345 35
Air intake grille
Air outlet
Refrigerant liquid line [ø 9.52 (In case of 25 type,
use the tube connector.)]
Refrigerant gas line
ø 12.7: 12 type, ø 15.88: 18, 25 type
Drain connection
Power supply entry
For discharge duct
Humidifier (option) mounting hole
Suspension bolt mounting
342 15
X-view
1488_X_I
125
207
100
205
61
760
50 150
255
207
9
9

Table of Contents