EasyManua.ls Logo

Sanyo SPW-C1903GDYH8 - Dimensional Data

Sanyo SPW-C1903GDYH8
377 pages
Print Icon
To Next Page IconTo Next Page
To Next Page IconTo Next Page
To Previous Page IconTo Previous Page
To Previous Page IconTo Previous Page
Loading...
IV - 47
TD831077
4
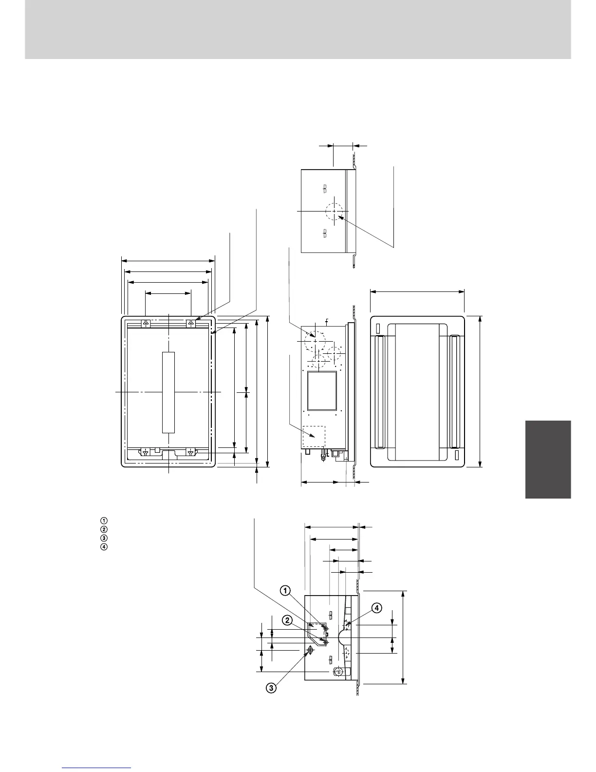
W-ECO MULTI SYSTEM Unit Specifications
3-3. Dimensional data
Indoor unit : 9, 12 Type
3. 2-Way Air Discharge Semi-concealed Type
FOR DISCHARGE DUCT
(1–ø150 SLIT HOLE)
INSPECTION PANEL
FOR ECV, DRAIN PAN
INSPECTION PANEL
FOR DRAIN PUMP
CEILING OPENING (1070 × 640)
SUSPENSION HOLES
1110
1110
896
107020
680
115
162 88
67
33
93
510450
32
680
140
680
330
330
390 8
351
210
148
89
60
616
640
FOR FRESH AIR INTAKE
(ø125 HOLE)
0206_S_
I
PANEL CENTER
Refrigerant liquid line (ø 9.52)
Refrigerant gas line (ø 12.7)
Drain connection (25 A. O.D.32 mm)
Power supply entry

Table of Contents