EasyManua.ls Logo

Sanyo SPW-C1903GDYH8 - Dimensional Data

Sanyo SPW-C1903GDYH8
377 pages
Print Icon
To Next Page IconTo Next Page
To Next Page IconTo Next Page
To Previous Page IconTo Previous Page
To Previous Page IconTo Previous Page
Loading...
W-ECO MULTI SYSTEM Unit Specifications
IV - 108
TD831077
4
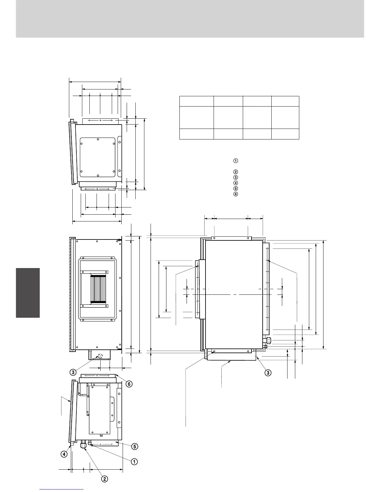
8. Concealed Duct High Static Pressure Type
Indoor unit : 25, 36, 48 Type
8-3. Dimensional data
A
310
100 100
300
B
50
55
25
50070
3594035
15
81
80 290
(Suspension bolt pitch)
130
23 C 55
1771_D_I
60
90
20
40
55
7 × 100 = 700
4 × 100 = 400
500
980 (Suspension bolt pitch)
4-ø20 Hole for suspension bolt)
Drain pan
793
940
48
46
16 - ø3.2
Electric box
22 - ø3.2
(Hole for full circumference)
(Hole for full circumference)
(274)
100
1010
15
10
620
5555 100100
Refrigerant liquid line [ø 9.52 (In case of
25 type, use the tube connector.)]
Refrigerant gas line (ø 19.05)
Power supply entry
Drain connection
(20 A / VP20)
Duct connection for suction
Duct connection for discharge
25, 36 type
48 type
A
420
450
B
395
425
C
68
98

Table of Contents

Related product manuals