EasyManua.ls Logo

Sanyo SPW-C1903GDYH8 - Dimensional Data

Sanyo SPW-C1903GDYH8
377 pages
Print Icon
To Next Page IconTo Next Page
To Next Page IconTo Next Page
To Previous Page IconTo Previous Page
To Previous Page IconTo Previous Page
Loading...
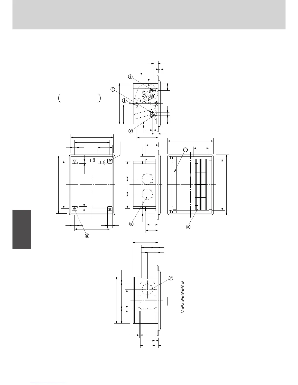
W-ECO MULTI SYSTEM Unit Specifications
IV - 56
TD831077
4
4 - 12 × 37
165
0210_AS_I
483
150
7070
190
70
210 240
687
810
70
30
652*
20
780**
*
**
: Suspension bolt pitch
: For ceiling opening
165
287
70 195
483*
590**
20
60
100
15
Z
30
640
350 10
263
Z View
10
10
200
140
340
25170
560
115
15
268
40
65
620
209
10
200 40
9
Refrigerant liquid line (ø 9.52)
Refrigerant gas line (ø 12.7)
Drain connection (25 A, O.D.32 mm)
Power supply entry
Suspension holes (4-15 × 30)
For discharge duct (2-ø150)
For fresh air intake (ø125)
Air intake grille
Air outlet
9
4-3. Dimensional data
Indoor unit : 9, 12 Type
4. 1-Way Air Discharge Semi-concealed Type

Table of Contents

Related product manuals