EasyManua.ls Logo

Sanyo SPW-C1903GDYH8 - Dimensional Data

Sanyo SPW-C1903GDYH8
377 pages
Print Icon
To Next Page IconTo Next Page
To Next Page IconTo Next Page
To Previous Page IconTo Previous Page
To Previous Page IconTo Previous Page
Loading...
W-ECO MULTI SYSTEM Unit Specifications
IV - 146
TD831077
4
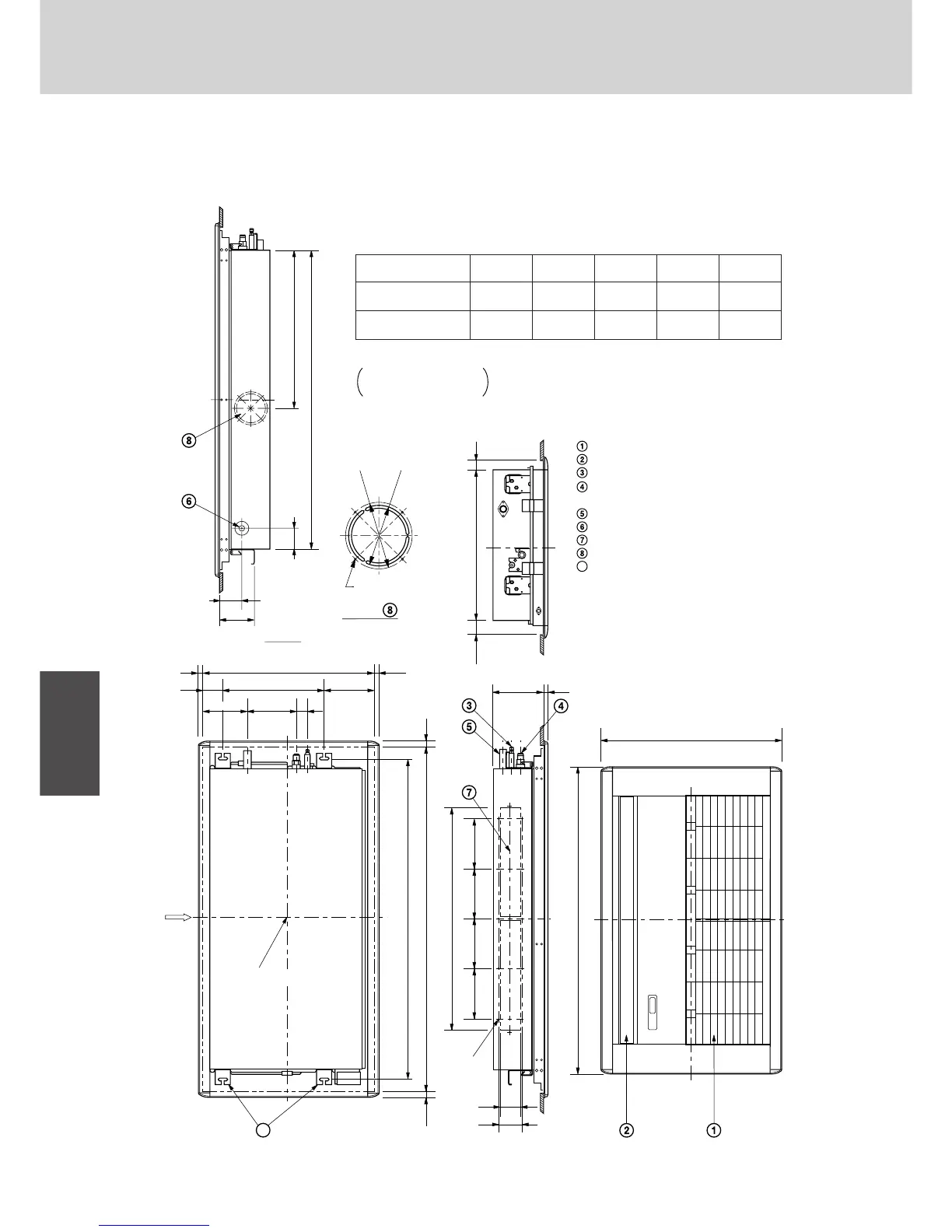
11-3. Dimensional data
Indoor unit : 9, 12, 18, 25 Type
11. 1-Way Air Discharge Semi-concealed-Slim Type (SL Type)
1500_T_I
Air intake grille
Air outlet
Refrigerant liquid line (ø 9.52)
Refrigerant gas line
(ø 12.7: 9, 12 type, ø 15.88: 18, 25 type)
Drain connection
Power supply entry
For discharge duct
For fresh air intake
Suspension mounting
9
140
ø137
ø125
88
4 - ø 3.3 Hole
Detail of
X View
88
(52) 610 28
635
D
92
80
198 15
730
200
C*
B** 20(20)
A
200200200
13 - ø 3.3 Hole
E
405* (197)88
20 (20)690**
192 40
Panel center
X
185
9
*:
**:
Suspension bolt pitch
For ceiling opening
ABCDE
9, 12, 18 Type 1233 1193 1089 1003 660
25 Type 1430 1390 1286 1200 900

Table of Contents

Related product manuals