EasyManua.ls Logo

Sanyo SPW-C1903GDYH8 - Page 183

Sanyo SPW-C1903GDYH8
377 pages
Print Icon
To Next Page IconTo Next Page
To Next Page IconTo Next Page
To Previous Page IconTo Previous Page
To Previous Page IconTo Previous Page
Loading...
W-ECO MULTI SYSTEM Unit Specifications
IV - 48
TD831077
4
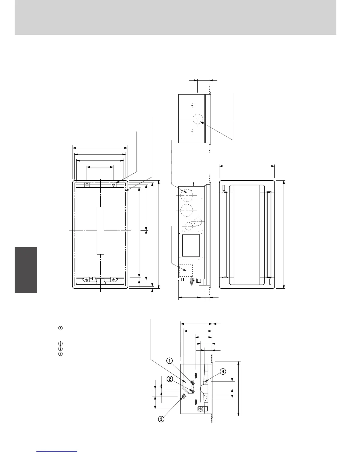
3. 2-Way Air Discharge Semi-concealed Type
Indoor unit : 18, 25 Type
FOR DISCHARGE DUCT
(2–ø150 SLIT HOLES)
INSPECTION PANEL
FOR ECV. DRAIN PAN
INSPECTION PANEL
FOR DRAIN PUMP
CEILING OPENING (1350 × 640)
SUSPENSION HOLES
1390
20
680
115
162 88
67
33
93
650590
32
680
140
680
330
330
390 8
351
210
148
89
60
616
640
FOR FRESH AIR INTAKE
(ø125 HOLE)
0207_S_
I
1390
1176
1350
PANEL CENTER
Refrigerant liquid line (ø 9.52)
(In case of 25 type, use the tube
connector.)
Refrigerant gas line (ø 15.88)
Drain connection (25 A. O.D.32 mm)
Power supply entry

Table of Contents