EasyManua.ls Logo

Sanyo SPW-C1903GDYH8 - Page 341

Sanyo SPW-C1903GDYH8
377 pages
Print Icon
To Next Page IconTo Next Page
To Next Page IconTo Next Page
To Previous Page IconTo Previous Page
To Previous Page IconTo Previous Page
Loading...
TD831077
VIII - 5
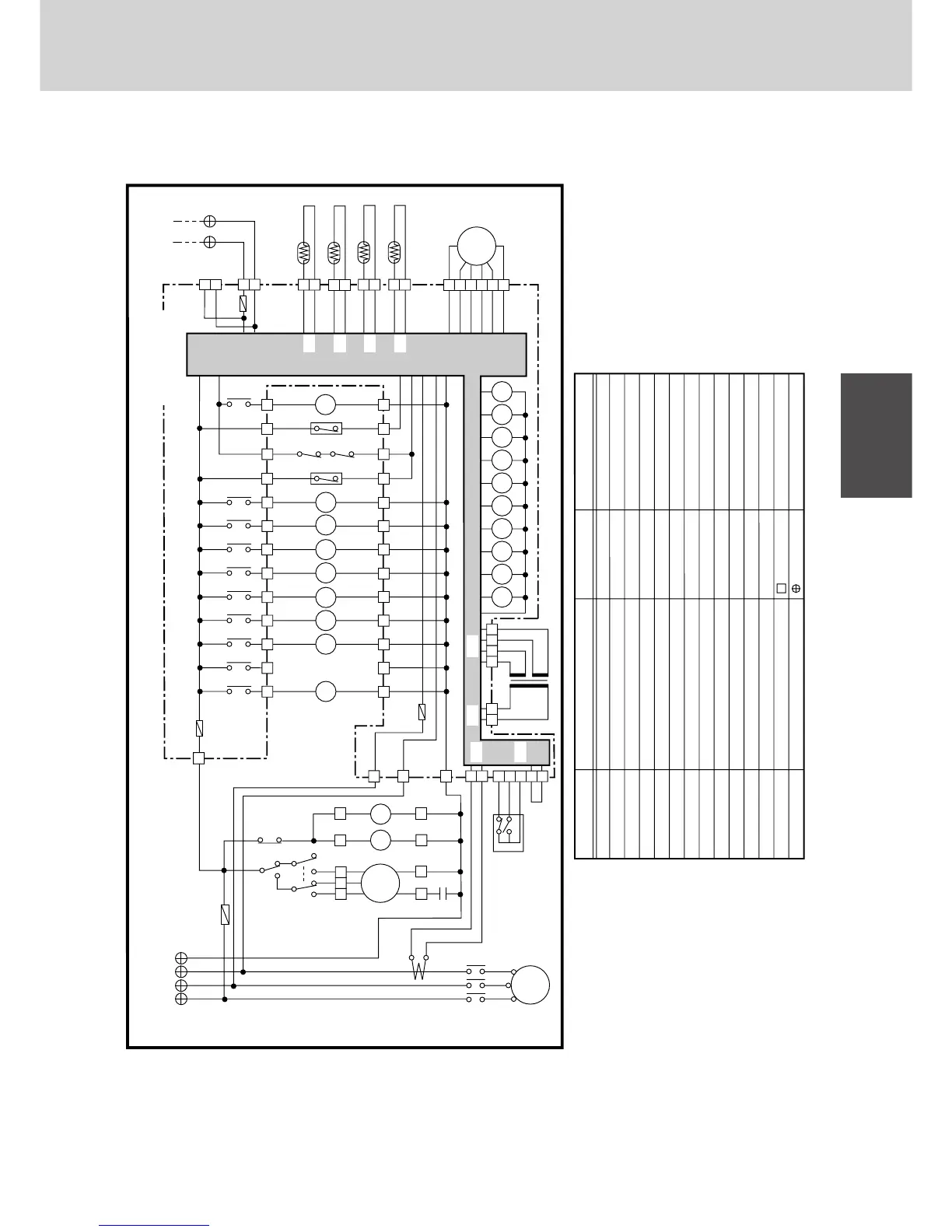
Electrical Data
8
1. Outdoor Unit (For R407C)
(2) SPW-CR703GDCH8, SPW-CR903GDCH8
OSC
H
L
• Schematic Diagram
TH2
TH1
F3
2P-2
CN1
To Outdoor
PC Unit
(0.5A)
TH4
2
1
CN2
2
1
2
1
2
1
2
1
1
RC
M
LH
2
2
4
1
3
CH1
CH2
CM
S 854-2-5268-819-00-1 (CR703GDCH8)
52C
L1
3ø 50Hz
380~415V
Terminal
Plate (6P)
FMO
V
WU
RY1
TR
AC230V
RY10RY9RY8RY7RY6RY5RY4RY3RY2
52C
2
1 1
1
2
3
1
3
1
2
3
4
5
CN45CN44
RY1
CN50
63PL
49C
49FO
5
9
CN51
RY2
ORVR
4
7
CN51
RY3
BALV
3
1
CN51
RY4
BPV
1
3
CN53
RY6
LIV
1
3
CN52
RY5
20S
1
3
CN56
RY10
1
3
CN55
RY9
DFV
2
6
CN54 CN54
RY7
2Y
63PH
1 2
4 1
CN43
RY8
1Y
CT
52C
1Y
2Y
L2
L3 N
Symbols Description
CM
FMO
CH1,2
52C
RC
49C
49FO
CT
63PH
63PL
20S
BPV
BALV
ORVR
Compressor Motor
Outdoor Fan Motor
Crank Case Heater
Compressor Motor Magnetic Contactor
Running Capacitor
Compressor Motor Thermal Protector
Fan Motor Thermal Protector
Current Transmitter
High Pressure Switch
Low Pressure Switch
Four Way Valve
Bypass Valve
Balance Valve
Oil Recovery Valve
Symbols Description
LIV
DFV
MOV
OSC
TH1
TH2
TH3
TH4
TR
F1-4
1Y,2Y,RY1-10
CR-CR703GDCH8
Liquid Valve
Defrost Valve
Motor Operated Valve
Oil Sensor SC
Thermistor (Discharge Temp)
Thermistor (Coil Liquid Temp)
Thermistor (Air Suction Temp)
Thermistor (Coil Gas Temp)
Power Transformer
Fuse
Auxiliary Relay
Controller
Connector
Terminal
F1
(3.15A)
F2
CN122
CN122
CN121
CN121
(3.15A)
CR-CR703GDCH8
Controller
5 4
F4 (6.3A)
3
1 2 3 41 3
2P-1
CN6
CN4
CN5
CN7
TH3
2
1
CN42CN41
CN10
CN8
MOV
2
1
4
5
6
3
3
1
1
3

Table of Contents

Related product manuals