EasyManua.ls Logo

Sanyo SPW-C1903GDYH8 - Page 355

Sanyo SPW-C1903GDYH8
377 pages
Print Icon
To Next Page IconTo Next Page
To Next Page IconTo Next Page
To Previous Page IconTo Previous Page
To Previous Page IconTo Previous Page
Loading...
TD831077
VIII - 19
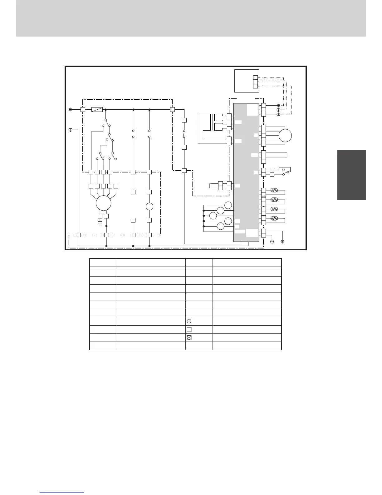
Electrical Data
8
2. Indoor Unit
(5) SPW-TR183GH56, SPW-TR253GH56, SPW-TR363GH56, SPW-TR483GH56
• Schematic Diagram
S 854-2-5268-665-00-0 (TR)
FMI
2
1
3
1
2
1
2
1
2
1
3
1
3
4
2
1
3
1
3
2
1
2
3
4
5
1
2
3
4
1
TR1
AC
230V
8P-
U2
8P-
U1
Indoor Coil
Indoor Coil
Indoor Coil
Room Thermistor
E3
E2
TH1
TH2
TH3
TH4
LSW
8P-R1
CR-X253GH
Controller
8P-R2
8P-R3
E1
2
3
1
2
3
1
3
T20
1
1
1
1
R
8
9
3
2
1
3
LM
NN
RC1
2X
1X
3X
RY1
RY2
2
1
21
343
1
7531
6 7543
LL L HHHHT
DP
RY2
49FI
T20
RCS
F1(5A)
1X
2X
3X
8P-1(L)
8P-2(N)
RY1
LM
LL L HHH
MOV
Symbols Description
FMI
MOV
49FI
RC1
TR1
LM
LSW
TH1
TH2
TH3
Indoor Fan Motor
Motor Operated Valve
Indoor Motor Thermal Protector
Running Capacitor
Power Transformer
Auto Louver Motor
Limit Switch
Room Thermistor
Thermistor (Indoor Coil E1)
Thermistor (Indoor Coil E2)
Symbols Description
TH4
F1
1X-3X
RY1-RY2
CR
RCS
Thermistor (Indoor Coil E3)
Fuse
Auxiliary Relay
Auxiliary Relay
Indoor Controller
Remote Control Switch
Terminal Plate
Connector
Terminal
VCC
SG
RC12V
SG1
OC
SG2
G
T6
PNL
LS
FS
LM
RN2
DC12V
DP
To Outdoor Unit

Table of Contents

Related product manuals