EasyManua.ls Logo

Sanyo SPW-C1903GDYH8 - Page 367

Sanyo SPW-C1903GDYH8
377 pages
Print Icon
To Next Page IconTo Next Page
To Next Page IconTo Next Page
To Previous Page IconTo Previous Page
To Previous Page IconTo Previous Page
Loading...
TD831077
VIII - 31
Electrical Data
8
2. Indoor Unit
(8) SPW-F(R)93GH56, SPW-F(R)123GH56, SPW-F(R)183GH56, SPW-F(R)253GH56
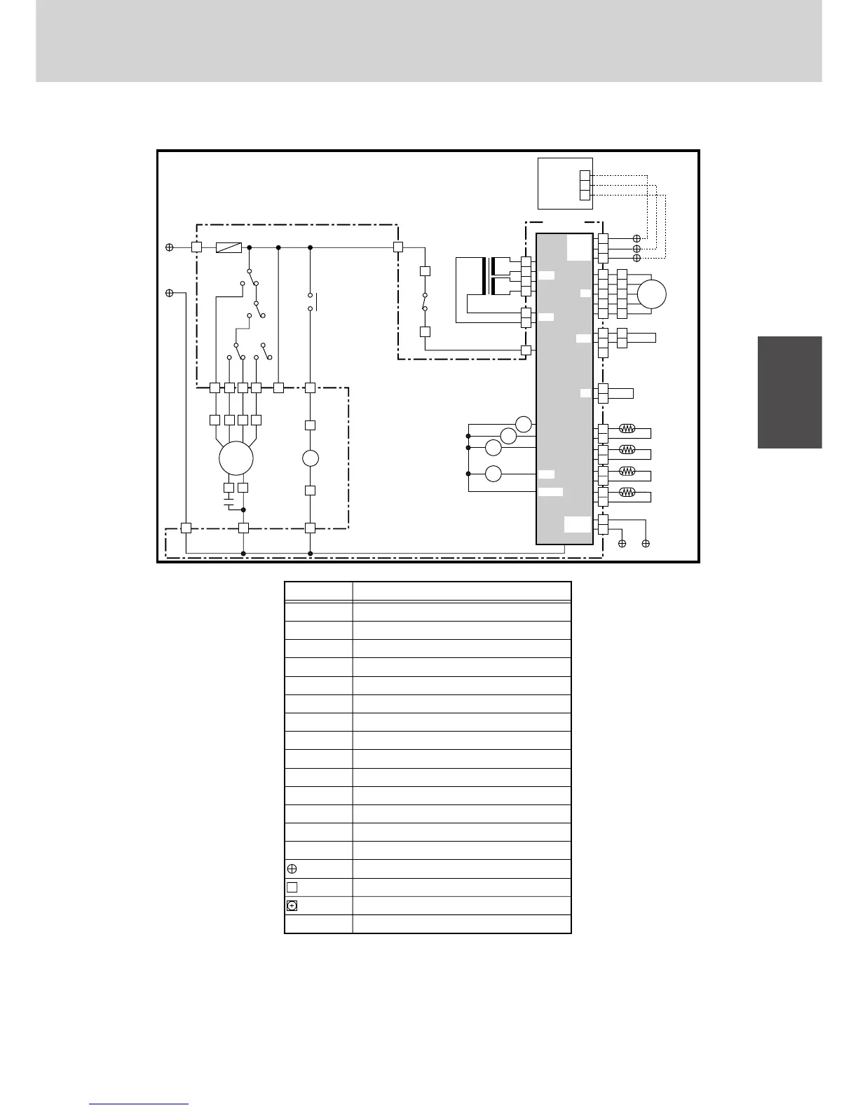
• Schematic Diagram
S 854-2-5268-558-00-0 (F
R
93GH56, F
R
123GH56, F
R
183GH56, F
R
253GH56)
FMI
2
1
3
1
2
1
2
1
2
1
4
3
3
1
3
1
2
3
4
5
1
2
3
4
1
TR1
T20
AC
230V
8P-
U2
8P-
U1
To Outdoor Unit
Indoor Coil
Indoor Coil
Indoor Coil
Room Thermistor
TH4
TH3
E3
TH2
E2
TH1
8P-R1
CR-X253GH
Controller
8P-R2
8P-R3
E1
2
3
1
2
3
1
3
1
11
R
7
8
3
NN
RC1
RY2
21
343
DPH
117531
6543
LHHH
DPH
RY2
49FI
T20
RCS
2X
3X
8P-1(L)
8P-2(N)
LL L HHHR
MOV
VCC
SG
RC12V
G
T6
PNL
FS
RN2
DPH
DC12V
OC
SG1
SG2
2
2
3
4
5
1
1
2
3X
1X
LL
3X
1X
2X
Symbols Description
FMI
49FI
RC1
F1
TR1
1X-3X
RY2
MOV
RCS
TH1
TH2
TH3
TH4
CR-X253GH
DPH
Indoor Fan Motor
Indoor Motor Thermal Protector
Running Capacitor
Fuse
Power Transformer
Auxiliary Relay
Auxiliary Relay
Motor Operated Valve
Remote Control Switch
Room Thermistor
Thermistor (Indoor Coil E1)
Thermistor (Indoor Coil E2)
Thermistor (Indoor Coil E3)
Indoor Controller
Terminal Plate
Connector
Terminal
Dew Proof Heater
F1(5A)

Table of Contents

Related product manuals