EasyManua.ls Logo

Scotchman 6509-24FF - Installation and Setup

Scotchman 6509-24FF
161 pages
Print Icon
To Next Page IconTo Next Page
To Next Page IconTo Next Page
To Previous Page IconTo Previous Page
To Previous Page IconTo Previous Page
Loading...
Page 10
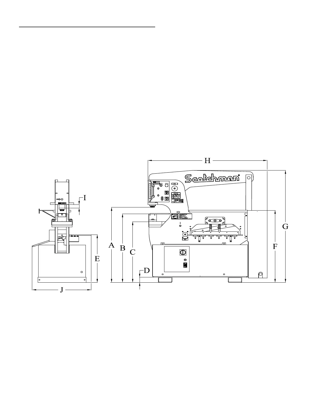
4.0 INSTALLATION & SET UP
CAUTION: THIS SECTION DISCUSSES INSTALLATION AND SET-UP PROCEDURES.
PLEASE READ THOROUGHLY BEFORE OPERATING THIS MACHINE.
FIGURE 2

Table of Contents

Related product manuals