EasyManua.ls Logo

Scotsman Prodigy C0322 - Wiring Diagrams

Scotsman Prodigy C0322
104 pages
Print Icon
To Next Page IconTo Next Page
To Next Page IconTo Next Page
To Previous Page IconTo Previous Page
To Previous Page IconTo Previous Page
Loading...
January 2015 Page 79
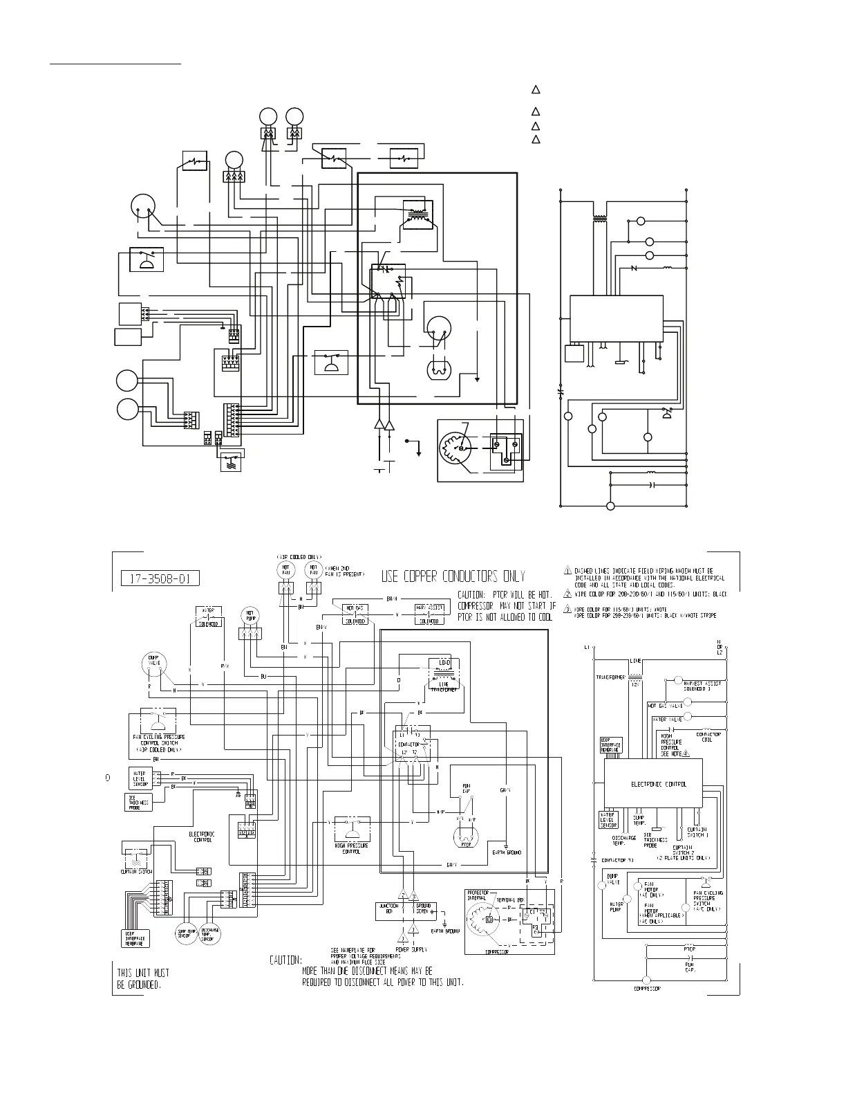
Wiring Diagrams
4 HIGH PRESSURE CONTROL USED ON WC UNITS & AC C0222, C0422,
C0230, C0530, C0630
SEE NOTE 4
GN/Y
GN/Y
W
BK
ICE
THICKNESS
PROBE
SOLENOID
HARV ASSIST
J10
EARTH GROUND
R
BK
W
WATER
LEVEL
SENSOR
SUMP TEMP.
SENSOR
DISCHARGE
TEMP.
SENSOR
BN
(AIR COOLED ONLY)
FAN CYCLING PRESSURE
CONTROL SWITCH
8
R
J7
1
2
J8
1
2
J2
1234567
J9
1
2
3
J1
1234
(WHEN APPLICABLE)
(AC ONLY)
FAN
MOTOR
BN
W
MOT
FAN
HIGH PRESSURE
CONTROL
DUMP
VALVE
BK
DUMP
VALV E
W
W/R
W/R
R
Y
BK
ELECTRONIC
CONTROL
3
2
BN/W
V
R/W
O
W
BK
W
BU
W
BN
ELECTRONIC CONTROL
DISCHARGE
TEMP.
SUMP
TEMP.
WATER
LEVEL
SENSOR
CONTACTOR T1
PTCR
WATER
PUMP
RUN
CAP.
COMPRESSOR
CONTACTOR
COIL
WATER VALVE
HOT GAS VALV E
TRANSFORMER
12V
LINE
N
OR
L2
L1
SEE NAMEPLATE FOR
PROPER VOLTAGE REQUIREMENTS
AND MAXIMUM FUSE SIZE
POWER SUPPLY
PTCR
RUN
CAP
GROUND
SCREW
EARTH GROUND
17-3053-01
MORE THAN ONE DISCONNECT MEANS MAY BE
REQUIRED TO DISCONNECT ALL POWER TO THIS UNIT.
CAUTION:
THIS UNIT MUST
BE GROUNDED.
USE COPPER CONDUCTORS ONLY
R
BK
W
COMPRESSOR
R3
S2
C1
TERMINAL BOX
JUNCTION
BOX
WATER
HOT GAS
SOLENOID
SOLENOID
MOT
PUMP
TRANSFORMER
LOAD
LINE
CONTACTOR
T2
L2
T1L1
HIGH
PRESSURE
CONTROL
SEE NOTE 4
1
1
Y
FAN
MOTOR
(AIR COOLED ONLY)
(AC ONLY)
W/Y
(WHEN 2ND
FAN IS PRESENT)
MOT
FAN
CAUTION: PTCR WILL BE HOT.
COMPRESSOR MAY NOT START IF
PTCR IS NOT ALLOWED TO COOL
4321
J6
CURTAIN SWITCH
CURTAIN
SWITCH 1
CURTAIN
SWITCH 2
(2 PLATE UNITS ONLY)
ICE
THICKNESS
PROBE
HARVEST ASSIST
SOLENOID 1
FAN CYCLING
PRESSURE
SWITCH
(A/C ONLY)
W
Y
W
BN/W
W
2 WIRE COLOR FOR 208-230/60/1 AND 115/60/1 UNITS: BLACK
1 DASHED LINES INDICATE FIELD WIRING WHICH MUST BE
INSTALLED IN ACCORDANCE WITH THE NATIONAL ELECTRICAL
CODE AND ALL STATE AND LOCAL CODES.
3 WIRE COLOR FOR 115/60/1 UNITS: WHITE
WIRE COLOR FOR 208-230/60/1 UNITS: BLACK W/WHITE STRIPE
PROTECTOR
INTERNAL
C0322, C0522, C0722, C0330, C0530, C0630, C0830, C1030 - Single Phase A - B Series
C0322, C0522, C0722, C0630, C0830, C1030 - Single Phase D Series

Table of Contents

Related product manuals