EasyManua.ls Logo

Scotsman Prodigy C0322 - Wiring Diagrams

Scotsman Prodigy C0322
104 pages
Print Icon
To Next Page IconTo Next Page
To Next Page IconTo Next Page
To Previous Page IconTo Previous Page
To Previous Page IconTo Previous Page
Loading...
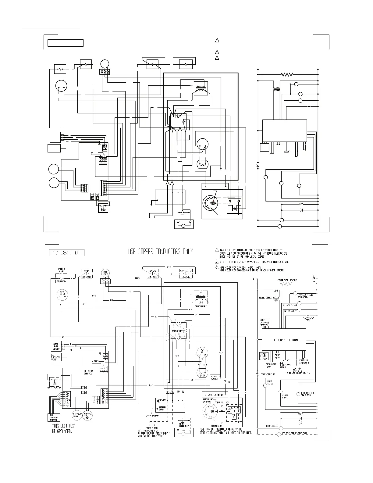
January 2015 Page 83
Wiring Diagrams
GN/Y
GN/Y
W
SOLENOID
LIQUID
LINE
GN/Y
CRANKCASE HEAT ER
BK
BK
CRANKCASE HEATER
W
BN/W
W
W
HARVEST ASSIST
SOLENOID 1
ICE
THICKNESS
PROBE
CURTAIN
SWITCH 2
(2 PLATE UNITS ONLY )
CURTAIN
SWITCH 1
CURTAIN SWITCH
J6
1234
W/Y
Y
L1 T1
L2
T2
CONTACTOR
LINE
LOAD
TRANSFORMER
MOT
PUMP
SOLENOID
SOLENOID
HOT GAS
WATER
TERMINAL BOX
C1
S2
R3
COMPRESSOR
W
BK
R
RUN
CAP
PTCR
SEE NAMEPLATE FOR
PROPER VOLTAGE REQUIREMENTS
AND MAXIMUM FUSE SIZE
L1
N
OR
L2
LINE
12V
TRANSFORMER
HOT GAS VALVE
WATER VALVE
CONTACTOR
COIL
COMPRESSOR
RUN
CAP.
WATER
PUMP
PTCR
CONTACTOR T1
WATER
LEVEL
SENSOR
SUMP
TEMP.
DISCHARGE
TEMP.
ELECTRONIC CONTROL
BU
W
BK
O
R/W
V
BN/W
ELECTRONIC
CONTROL
BK
Y
R
W/R
W/R
W
DUMP
VALV E
BK
DUMP
VALV E
4321
J1
3
2
1
J9
7654321
J2
2
1
J8
2
1
J7
R
8
BN
DISCHARGE
TEMP.
SENSOR
SUMP TEMP.
SENSOR
WATER
LEVEL
SENSOR
W
BK
R
EARTH
GROUND
J10
HARV ASSIST
SOLENOID
ICE
THICKNESS
PROBE
BK
W
JUNCTION
BOX
EARTH GROUND
GROUND
SCREW
POWER SUPPLY
LIQUID LINE
SOLENOID
3
2
BU
BU
REMOTE
CONDENSER
FAN
1
3 WIRE COLOR FOR 115/60/1 UNITS: WHITE
WIRE COLOR FOR 208-230/60/1 UNITS: BLACK W/WHITE STRIPE
REMOTE CONDENSER FAN
PROTECTOR
INTERNAL
USE COPPER CONDUCTORS ONLY
THIS UNIT MUST
BE GROUNDED.
1 DASHED LINES INDICATE FIELD WIRING WHICH MUST BE
INSTALLED IN ACCORDANCE WITH THE NATIONAL ELECTRICAL
CODE AND ALL STATE AND LOCAL CODES.
MORE THAN ONE DISCONNECT MEANS MAY BE
REQUIRED TO DISCONNECT ALL POWER TO THIS UNIT.
17-3359-01
2 WIRE COLOR FOR 208-230/60/1 AND 115/60/1 UNITS: BLACK
C0530R - C Series
C0530R - D Series

Table of Contents

Related product manuals