EasyManua.ls Logo

Scotsman Prodigy C0322 - Wiring Diagrams

Scotsman Prodigy C0322
104 pages
Print Icon
To Next Page IconTo Next Page
To Next Page IconTo Next Page
To Previous Page IconTo Previous Page
To Previous Page IconTo Previous Page
Loading...
January 2015 Page 89
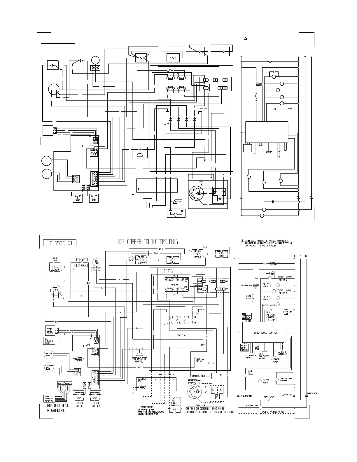
Wiring Diagrams
USE COPPER CONDUCTORS ONLY
THIS UNIT MUST
BE GROUNDED.
1 DASHED LINES INDICATE FIELD WIRING WHICH MUST BE
INSTALLED IN ACCORDANCE WITH THE NATIONAL ELECTRICAL
CODE AND ALL STATE AND LOCAL CODES.
MORE THAN ONE DISCONNECT MEANS MAY BE
REQUIRED TO DISCONNECT ALL POWER TO THIS UNIT.
17-3250-01
CONTACTOR
NO
NO
R
LO5
LO2
LO3
LO1
LO4
CRANKCASE
HEATER
T3
L3
T2
L2
L1
T1
CONTACTOR
Y
W
BN/W
SOLENOID 2
HARVEST ASSIST
VALVE 1
HOT GAS
SOLENOID 1
HARVEST ASSIST
VALVE 2
HOT GAS
GN/Y
GN/Y
W
SOLENOID
LIQUID
LINE
GN/Y
CRANKCASE HEATER
BK
W
BN/W
W
Y
ICE
THICKNESS
PROBE
CURTAIN
SWITCH 1
CURTAIN
SWITCH 2
J6
1234
HIGH
PRESSURE
CONTROL
(WC ONLY)
MOT
PUMP
SOLENOID
SOLENOID
HOT GAS
WATER
TERMINAL BOX
C1
S2
R3
COMPRESSOR
W
BK
R
L1
N
LINE
12V
TRANSFORMER
WATER VALVE
CONTACTOR
COIL
COMPRESSOR
WATER
PUMP
WATER
LEVEL
SENSOR
SUMP
TEMP.
DISCHARGE
TEMP.
ELECTRONIC CONTROL
BU
W
BK
W
O
R/W
V
BN/W
ELECTRONIC
CONTROL
R
BK
Y
W
DUMP
VALV E
BK
DUMP
VALVE
HIGH PRESSURE
CONTROL
4321
J1
3
2
1
J9
7654321
J2
2
1
J8
2
1
J7
R
8
BN
DISCHARGE
TEMP.
SENSOR
SUMP TEMP.
SENSOR
WATER
LEVEL
SENSOR
W
BK
R
EARTH
GROUND
J10
HARV ASSIST
SOLENOID
ICE
THICKNESS
PROBE
BK
W
LIQUID LINE
SOLENOID
REMOTE CONDENSER FAN
W
SOLENOID
HARV ASSIST
HOT GAS
SOLENOID
BN/W
CURTAIN
SWITCH 2
CURTAIN
SWITCH 1
CONTACTOR
CONTACTOR
CONTACTOR
L3
Y
BN BN
BU
BU
JUNCTION
BOX
GROUND
SCREW
POWER SUPPLY
SEE NAMEPLATE FOR
PROPER VOLTAGE REQUIREMENTS
AND MAXIMUM FUSE SIZE
FAN
REMOTE
CONDENSER
1
BK
L2
A1
A2
W
W
W
FUSE
(3A)
.33
uF
BK
BK
230V
12V
LOAD
LINE
10
6
7
9
1
2
4
5
TRANSFORMER
FUSE (3A)
PROTECTOR
INTERNAL
C1448R-63 230/380-420/50/3
C1448R-63 230/380-420/50/3 D Series

Table of Contents

Related product manuals