EasyManua.ls Logo

Scotsman Prodigy C0322 - Wiring Diagrams

Scotsman Prodigy C0322
104 pages
Print Icon
To Next Page IconTo Next Page
To Next Page IconTo Next Page
To Previous Page IconTo Previous Page
To Previous Page IconTo Previous Page
Loading...
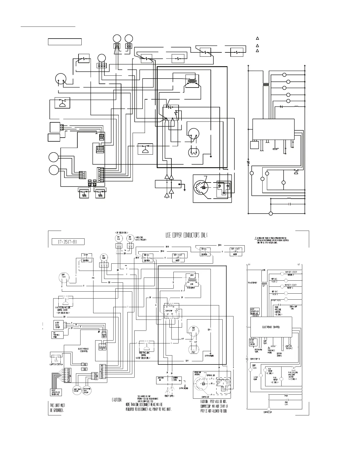
January 2015 Page 85
Wiring Diagrams
17-3071-01
MORE THAN ONE DISCONNECT MEANS MAY BE
REQUIRED TO DISCONNECT ALL POWER TO THIS UNIT.
CAUTION:
THIS UNIT MUST
BE GROUNDED.
USE COPPER CONDUCTORS ONLY
(AC ONLY )
CURTAIN
SWITCH 1
W
BN/W
BN/W
SOLENOID
HOT GAS
HARV ASSIST
SOLENOID
W
HARVEST ASSIST
HOT GAS
HARVEST ASSIST
HOT GAS
SOLENOID 2
VALVE 2
GN/Y
GN/Y
W
BK
ICE
THICKNESS
PROBE
SOLENOID
HARV ASSIST
J10
EARTH GROUND
R
BK
W
WATER
LEVEL
SENSOR
SUMP TEMP.
SENSOR
DISCHARGE
TEMP.
SENSOR
BN
(AIR COOLED ONLY)
FAN CYCLING PRESSURE
CONTROL SWITCH
8
R
J7
1
2
J8
1
2
J2
1234567
J9
1
2
3
J1
1234
FAN
MOTOR
BN
W
MOT
FAN
HIGH PRESSURE
CONTROL
DUMP
VALVE
BK
DUMP
VALVE
W
W/R
W/R
R
Y
BK
ELECTRONIC
CONTROL
3
2
BN/W
V
R/W
O
W
BK
W
BU
W
BN
ELECTRONIC CONTROL
DISCHARGE
TEMP.
SUMP
TEMP.
WATER
LEVEL
SENSOR
CONTACTOR T1
PTCR
WATER
PUMP
RUN
CAP.
COMPRESSOR
CONTACTOR
COIL
WATER VALVE
VALVE 1
TRANSFORMER
12V
LINE
L2
L1
SEE NAMEPLATE FOR
PROPER VOLTA GE REQUIREMENTS
AND MAXIMUM FUSE SIZE
POWER SUPPLY
PTCR
RUN
CAP
GROUND
SCREW
EARTH GROUND
R
BK
W
COMPRESSOR
R3
S2
C1
TERMINAL BOX
JUNCTION
BOX
WATER
HOT GAS
SOLENOID
SOLENOID
MOT
PUMP
TRANSFORMER
LOAD
LINE
CONTAC TOR
T2
L2
T1L1
HIGH
PRESSURE
CONTROL
(WC ONLY )
1
1
Y
FAN
MOTOR
(AIR COOLED ONLY)
(WATER COOLED ONLY)
(AC ONLY )
W/Y
(WHEN 2ND
FAN IS PRESENT)
MOT
FAN
CAUTION: PTCR WILL BE HOT.
COMPRESSOR MAY NOT START IF
PTCR IS NOT ALLOWED TO COOL
4321
J6
CURTAIN
SWITCH 2
CURTAIN
SWITCH 2
CURTAIN
SWITCH 1
ICE
THICKNESS
PROBE
SOLENOID 1
FAN CYCLING
PRESSURE
SWITCH
(A/C ONLY )
W
Y
W
BN/W
W
2 WIRE COLOR FOR 208-230/60/1 UNITS: BLACK
1 DASHED LINES INDICATE FIELD WIRING WHICH MUST BE
INSTALLED IN ACCORDANCE WITH THE NATIONAL ELECTRICAL
CODE AND ALL STATE AND LOCAL CODES.
3 WIRE COLOR FOR 208-230/60/1 UNITS: BLACK W/WHITE STRIPE
PROTECTOR
INTERNAL
C1448, C1848, C2148 Single Phase, A-B Series
C1448, C1848 Single Phase, D Series

Table of Contents

Related product manuals