EasyManua.ls Logo

Scotsman Prodigy C0322 - Wiring Diagrams

Scotsman Prodigy C0322
104 pages
Print Icon
To Next Page IconTo Next Page
To Next Page IconTo Next Page
To Previous Page IconTo Previous Page
To Previous Page IconTo Previous Page
Loading...
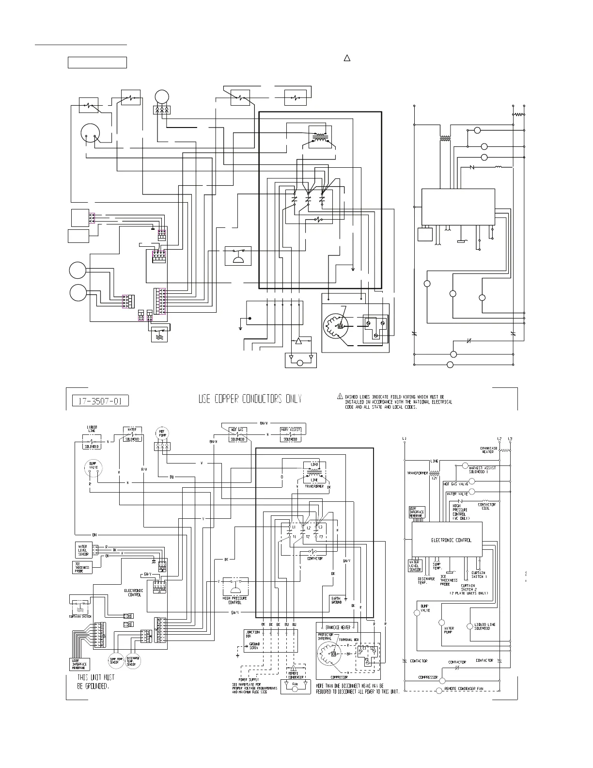
January 2015 Page 84
Wiring Diagrams
17-3054-01
MORE THAN ONE DISCONNECT MEANS MAY BE
REQUIRED TO DISCONNECT ALL POWER TO THIS UNIT.
1 DASHED LINES INDICATE FIELD WIRING WHICH MUST BE
INSTALLED IN ACCORDANCE WITH THE NATIONAL ELECTRICAL
CODE AND ALL STATE AND LOCAL CODES.
THIS UNIT MUST
BE GROUNDED.
USE COPPER CONDUCTORS ONLY
JUNCTION
BOX
GROUND
SCREW
POWER SUPPLY
SEE NAMEPLATE FOR
PROPER VOLTAGE REQUIREMENTS
AND MAXIMUM FUSE SIZE
BU
BU
REMOTE
CONDENSER
FAN
1
BK
BK
BK
CONTACTOR
L3
CONTACTOR
REMOTE CONDENSER FAN
LIQUID LINE
SOLENOID
W
BK
ICE
THICKNESS
PROBE
SOLENOID
HARV ASSIST
J10
EARTH
GROUND
R
BK
W
WATER
LEVEL
SENSOR
SUMP TEMP.
SENSOR
DISCHARGE
TEMP.
SENSOR
BN
8
R
J7
1
2
J8
1
2
J2
1234567
J9
1
2
3
J1
1 234
HIGH PRESSURE
CONTROL
DUMP
VALV E
BK
DUMP
VALV E
W
R
R
R
ELECTRONIC
CONTROL
BN/W
V
R/W
O
W
BK
W
BU
ELECTRONIC CONTROL
DISCHARGE
TEMP.
SUMP
TEMP.
WATER
LEVEL
SENSOR
CONTACTOR
WATER
PUMP
COMPRESSOR
CONTACTOR
COIL
WATER VALVE
HOT GAS VALVE
TRANSFORMER
12V
LINE
L2
L1
R
BK
W
COMPRESSOR
R3
S2
C1
TERMINAL BOX
WATER
HOT GAS
SOLENOID
SOLENOID
MOT
PUMP
TRANSFORMER
LOAD
LINE
HIGH
PRESSURE
CONTROL
(WC ONLY)
Y
4321
J6
CURTAIN SWITCH
CURTAIN
SWITCH 1
CURTAIN
SWITCH 2
(2 PLATE UNITS ONLY)
ICE
THICKNESS
PROBE
HARVEST ASSIST
SOLENOID 1
Y
W
BN/W
W
CRANKCASE
HEATER
BK
BK
CRANKCASE HEATER
GN/Y
LIQUID
LINE
SOLENOID
W
GN/Y
GN/Y
CONTACTOR
T1
L1
L2
T2
L3
T3
W
PROTECTOR
INTERNAL
C0830R, C1030R Three Phase, A-B Series
C0830R, C1030R Three Phase, D Series

Table of Contents

Related product manuals