EasyManua.ls Logo

Selectronic SP PRO - Product Overview

Selectronic SP PRO
22 pages
Print Icon
To Next Page IconTo Next Page
To Next Page IconTo Next Page
To Previous Page IconTo Previous Page
To Previous Page IconTo Previous Page
Loading...
IN0016 Revision 12 Part # 004573 8 of 22
SP PRO Three Phase
Installation Notes
POWER PERFORMANCE PASSION
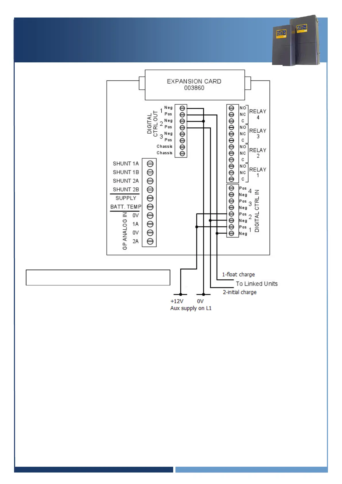
Charge Stage Linking Common to all SP PRO units
Signal power comes from 12V, 1 amp aux output supply on L1
(adjacent to the SYNC 1 connector within the SP PRO).

Other manuals for Selectronic SP PRO

Related product manuals