EasyManua.ls Logo

Sharp MX-4101N - Page 115

Sharp MX-4101N
524 pages
Print Icon
To Next Page IconTo Next Page
To Next Page IconTo Next Page
To Previous Page IconTo Previous Page
To Previous Page IconTo Previous Page
Loading...
MX-5001N ADJUSTMENTS 5 – 73
(Adjustment 2)
This adjustment is used to change the gamma and the density in
the Text/Map copy mode.
This adjustment is required in the following cases.
* To change the contrast and the density of the Text/Map copy
mode images.
* U2 trouble has occurred.
* When the MFP PWB is replaced.
* When the EEPROM on the MFP PWB is replaced.
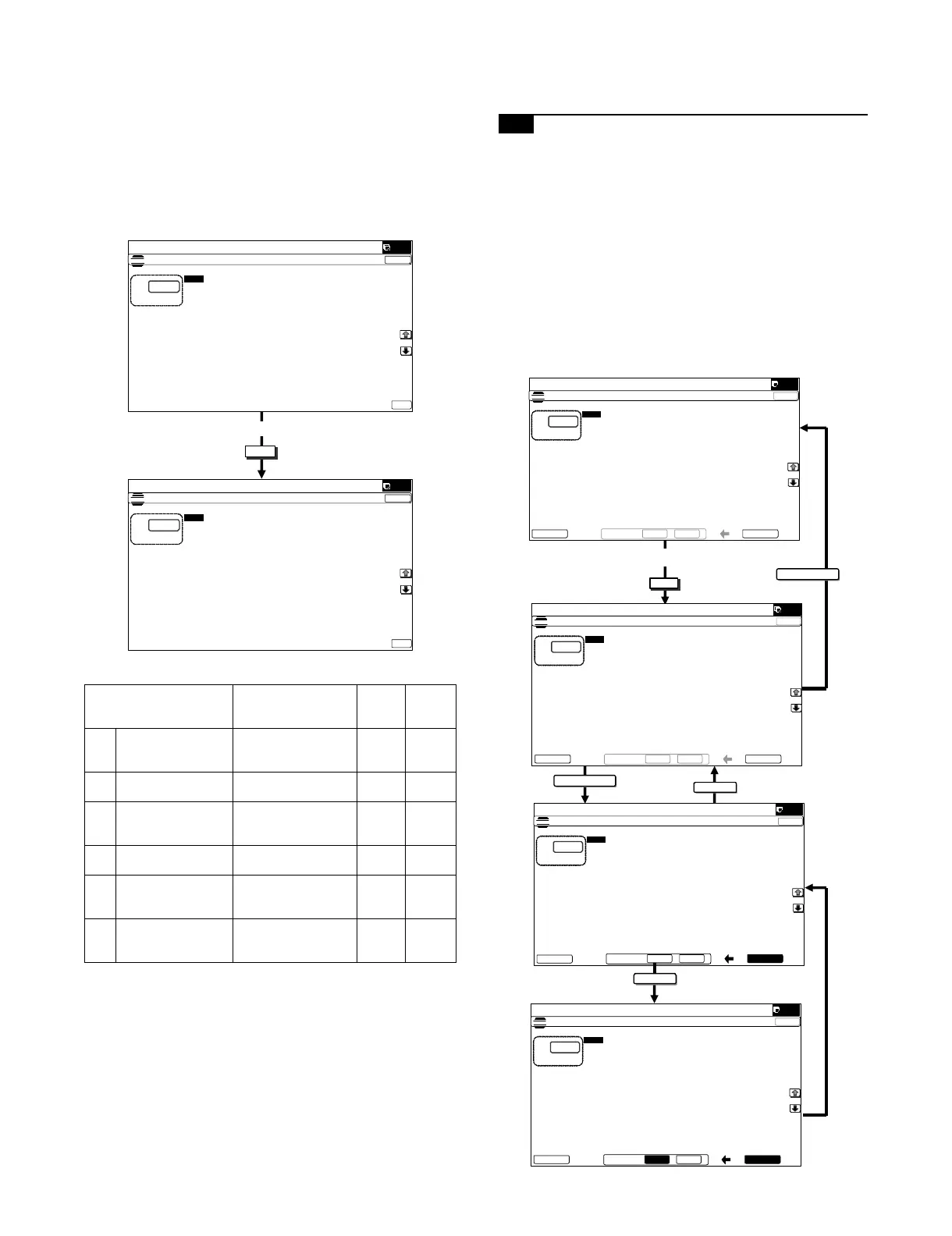
1) Enter the SIM 46-27 mode.
2) Select the mode to be adjusted with the scroll key.
3) Enter the adjustment value with 10-key.
When the adjustment value of the adjustment item E is
changed, the gamma (contrast) is changed.
When the adjustment value is increased, the contrast is
increased, and vice versa.
When the adjustment value of the adjustment item F is
increased, the image density is increased, and vice versa.
4) Press [OK] key.
5) Press [CLOSE] key to cancel the simulation mode.
6) Make a copy in the Text/Map copy mode (manual), and check
the output print.
If a satisfactory result is not obtained, use SIM46-27 to change the
adjustment value.
Repeat the above procedures until a satisfactory result is obtained.
20-L Color document reproducibility adjustment
in the monochrome copy mode
(Normally unnecessary to adjust)
Use to adjust the reproducibility for the red image and the yellow
image when printing color document that included the red/yellow
image in monochrome copy mode.
This adjustment is required in the following cases.
* When there is desire to change reproducibility of yellow/red
image in case of making a color copy of the color document in
monochrome copy mode.
* U2 trouble has occurred.
* When the MFP PWB is replaced.
* When the EEPROM on the MFP PWB is replaced.
1) Enter the SIM 46-37 mode.
Display/Item (Copy mode) Content
Adjust
ment
range
Default
A BLACK TEXT
(SLOPE)
Black character edge
gamma skew
adjustment
1 - 99 50
B BLACK TEXT
(INTERCEPT)
Black character edge
density adjustment
1 - 99 50
CCOLOR
TEXT(SLOPE)
Color character edge
gamma skew
adjustment
1 - 99 50
D COLOR TEXT
(INTERCEPT)
Color character edge
density adjustment
1 - 99 50
E ED TEXT (SLOPE) Text/Map mode
gamma adjustment
(Text/Map mode)
1 - 99 50
F ED TEXT
(INTERCEPT)
Text/Map mode density
adjustment
(Text/Map mode)
1 - 99 50
OK
10-key
ǂǂǂ6,08/$7,21ǂǂ12
&/26(
7(67
&2()),&,(172)*$00$6(783

$˖
˷˹
˖%/$&.7(;76/23(
$˖
˖%/$&.7(;7,17(5&(37
%˖
˖&2/257(;76/23(
&˖
˖&2/257(;7,17(5&(37
'˖
˖('7(;7,17(5&(37
)˖
˖('7(;76/23(
(˖
2.
ǂǂǂ6,08/$7,21ǂǂ12
&/26(
7(67
&2()),&,(172)*$00$6(783

$˖
˷˹
˖%/$&.7(;76/23(
$˖
˖%/$&.7(;7,17(5&(37
%˖
˖&2/257(;76/23(
&˖
˖&2/257(;7,17(5&(37
'˖
˖('7(;7,17(5&(37
)˖
˖('7(;76/23(
(˖
2.
OK
DEFAULT
EXEC UTE
NO
ǂǂǂ6,08/$7,21ǂǂ12
&/26(
7(67
%:,0$*(&5($7($'-8670(17

$˖
˷˹
˖5*
$˖
˖%*
%˖
'()$8/7
$5(<28685("
<(6 12 (;(&87(
ǂǂǂ6,08/$7,21ǂǂ12
&/26(
7(67
%:,0$*(&5($7($'-8670(17

$˖
˷˹
˖5*
$˖
˖%*
%˖
'()$8/7
$5(<28685("
<(6 12 (;(&87(
ǂǂǂ6,08/$7,21ǂǂ12 
&/26(
7(67
%:,0$*(&5($7($'-8670(17

$˖
˷˹
˖5*
$˖
˖%*
%˖
'()$8/7
$5(<28685("
<(6 12 (;(&87(
YES
ǂǂǂ6,08/$7,21ǂǂ12
&/26(
7(67
%:,0$*(&5($7($'-8670(17

$˖
˷˹
˖5*
$˖
˖%*
%˖
'()$8/7
$5(<28685("
<(6 12 (;(&87(
10-key

Table of Contents

Other manuals for Sharp MX-4101N

Related product manuals