EasyManua.ls Logo

Sharp MX-4101N - B. Paper exit section

Sharp MX-4101N
524 pages
Print Icon
To Next Page IconTo Next Page
To Next Page IconTo Next Page
To Previous Page IconTo Previous Page
To Previous Page IconTo Previous Page
Loading...
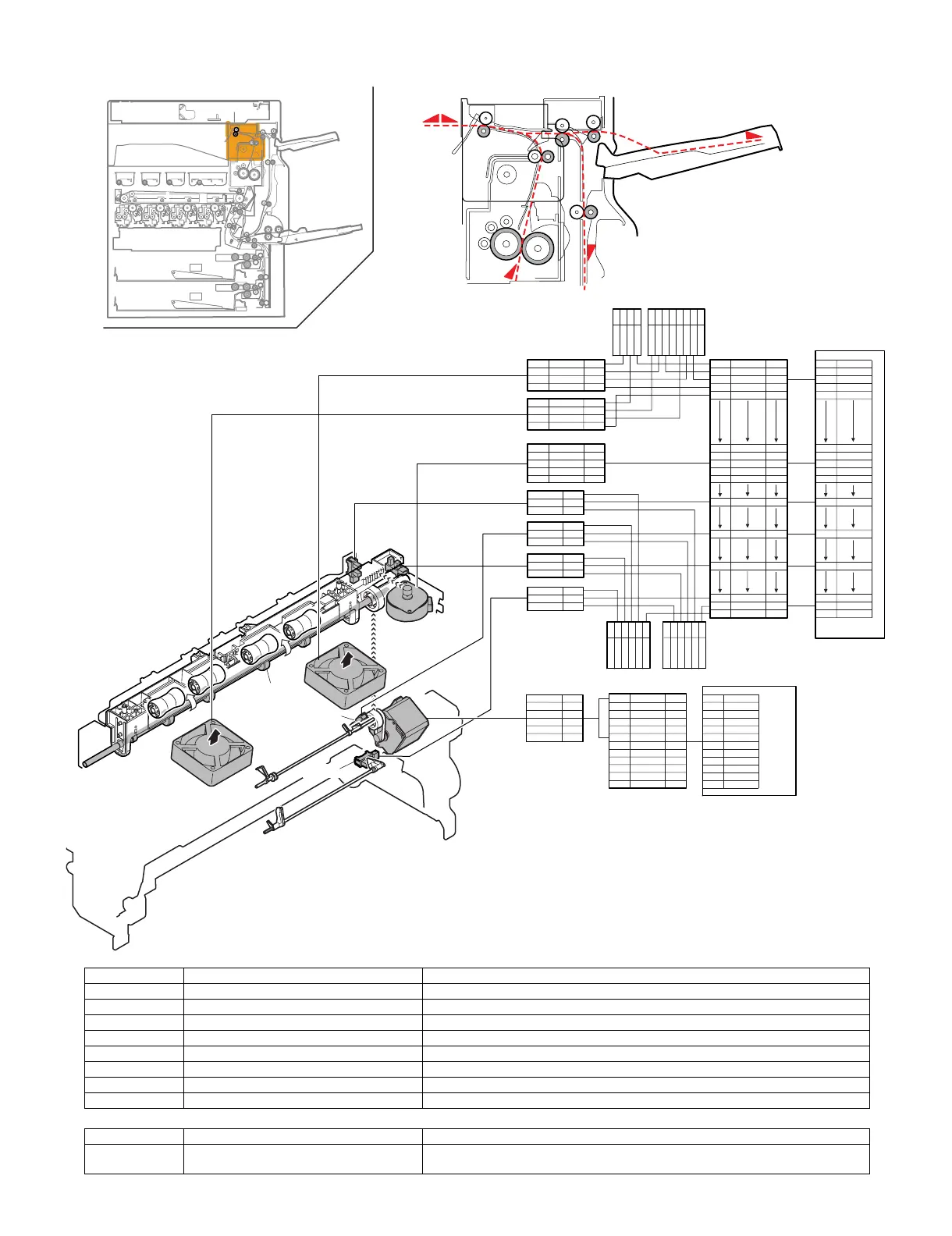
MX-5001N DUPLEX/PAPER EXIT SECTION N – 3
B. Paper exit section
Signal name Name Function/Operation
HPOS Shifter home position detection Detects the shifter home position.
OSM Shifter motor Performs offset of paper.
POD1 Fusing rear detection Detects paper exit from fusing after detection fusing.
POD2 Paper exit detection Detects the exit paper.
POFM_F Paper exit cooling fan motor (F side) Cools the fusing unit.
POFM_R Paper exit cooling fan motor (R side) Cools the fusing unit.
POM Paper exit drive motor Drives the paper exit roller.
TFD2 Paper exit full detection Detects face-down paper exit tray full.
No. Name Function/Operation
1 Paper exit roller 1 (Drive) Discharges paper. / Transports paper to the right paper exit tray. / Transport paper to the
duplex (ADU) section.
R SM-12p P
CN6
B12B-PH-K-S
INT24V1
INT24V1
FUMB//
FUMA//
FUMB/
4
INT24V1
FUMA//
FUMB/
8
10
1
4
3 POMB//
FUMB//
POMB/
POMA/
12 INT24V1
2
6
11
9
10
12
9
1
2
5
6
3
7
11
10
7
12
1
2
5
6
3
4
9
8
11
POMB/
POMB//
FUMA/
POMA//
8
INT24V1
POMA/
DRIVER
MAIN
PWB
INT24V1
5 INT24V1
7
POMA//
FUMA/
INT24V1
1POMA//
INT24V1
2
POMA/
POMB/
6
POMB//
3
INT24V1
4
5
P DF1B-26p
S CN13
B32B-PHDSS-B
DF11-4DP-SP1
DF11-8DP-SP2
DF11-6DP-SP1 DF11-6DP-SP1
12
10
2
13
3
2
1
4
6
8
2
4
/POFM_CNT
/POFM_CNT
/POFM_CNT
/POFM_CNT
5
7
3
1
1
5
6
4
3
2
1
5
6
4
3
2
D-GND
D-GND
D-GND
D-GND
D-GND
D-GND
5VNPD
5VNPD
5VNPD
5VNPD
5VNPD
5VNPD
P-GND
P-GND
P-GND
P-GND
POFM_V
POFM_V
POFM_V
POFM_V
12 POD2
13
/OSM_B
POD2
/OSM_A
14
HOPS1615
TFD2
/OSM_XA
P-GND
/OSM_XB
24V2
POFM_LD2
14POD1
14
15 HOPS
16
17
12 18
1111 P-GND
7 /POFM_CNT
POFM_V
/POFM_CNT
19
15
POFM_LD1
2
7
6
17
7
/OSM_A
3
/OSM_XB
4
5
POFM_LD1
9
TFD2
POFM_LD2
/OSM_B
8
2
5
4
24
8
9
21
22
9/OSM_XA3
13
11
5VNPD
D-GND
POD1
D-GND
16
5VNPD
17
124V21
6 POFM_V
PCU PWB
D-GND 3
HOPS 2
5VNPD 1
D-GND 3
POD1 2
5VNPD 1
3
POD2
5VNPD
2
1
D-GND
5VNPD 3
D-GND 1
TFD2 2
R SM6P P
1
24V2
/OSM_A
2
/OSM_XB
/OSM_XA
4
3
4
2
3/OSM_B
1
55
PHNR-4-H,BU04P-TR-P-H
1 POFM_V 4
2 /POFM_CNT 3
3P-GND2
4 POFM_LD1 1
PHNR-4-H,BU04P-TR-P-H
1 POFM_V
2 /POFM_CNT
P-GND
4 POFM_LD2
4
3
2
1
3
TFD2
HPOS
OSM
POD2
POM
POFM_R
POFM_F
POD1
1

Table of Contents

Other manuals for Sharp MX-4101N

Related product manuals