EasyManua.ls Logo

Sharp MX-4101N - Page 83

Sharp MX-4101N
524 pages
Print Icon
To Next Page IconTo Next Page
To Next Page IconTo Next Page
To Previous Page IconTo Previous Page
To Previous Page IconTo Previous Page
Loading...
MX-5001N ADJUSTMENTS 5 – 41
15-B Scan image magnification ratio adjustment
(Sub scanning direction) (RSPF mode)
15-D Scan image magnification ratio adjustment
(Sub scanning direction) (DSPF mode)
This adjustment must be performed in the following cases:
* When the scan control PWB is replaced.
* When the EEPROM on the scan control PWB is replaced.
* When U2 trouble occurs.
* When the copy magnification ratio is not matched.
* When the RSPF/DSPF is disassembled.
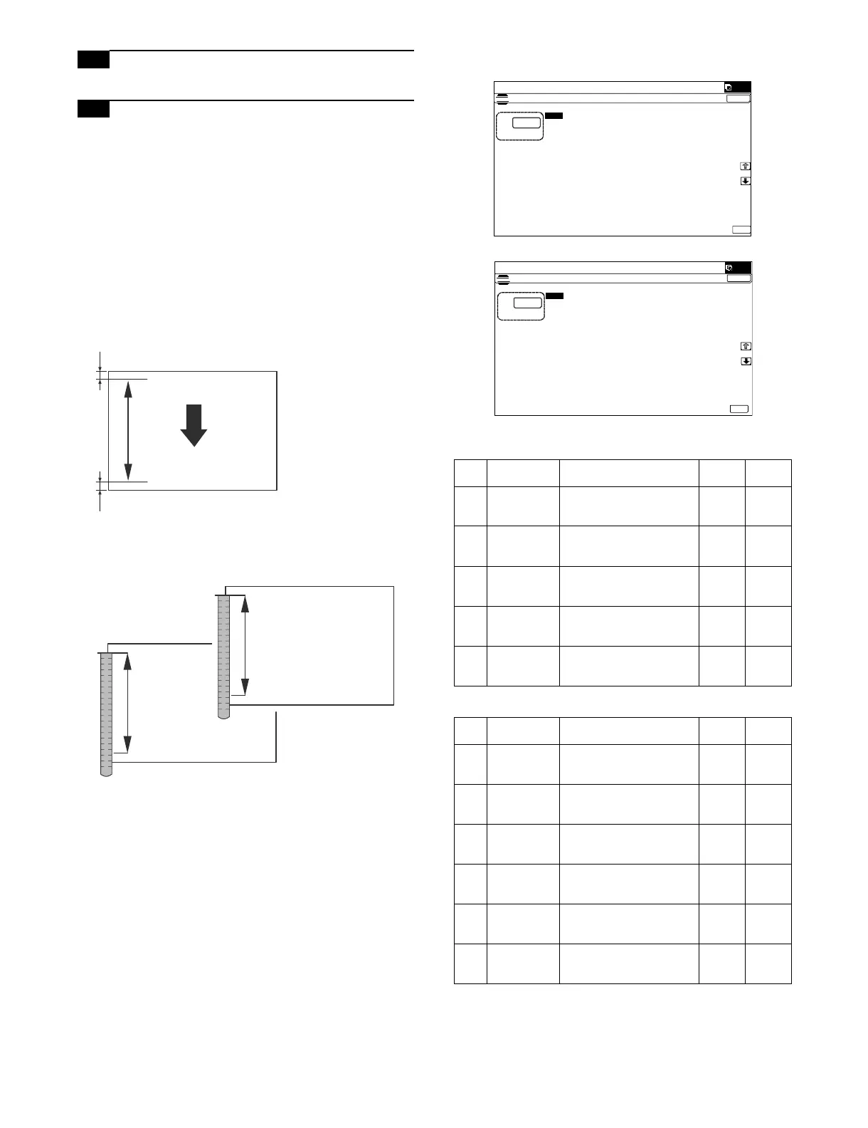
a. Adjustment procedures
1) Place the duplex adjustment chart shown below on the docu-
ment tray of the RSPF/DSPF.
The adjustment chart is prepared by the following procedures.
Use A4 (11" x 8.5") paper, and put marks on both sides and
both surfaces of the paper at 10mm from each edge.
2) Make a duplex copy at the normal ratio on A4 paper.
3) Measure the images on the copy paper and the original
images.
4) Obtain the image magnification ratio according to the following
formula:
Image magnification ratio = Original size / Original size x 100
(%)
Image magnification ratio = 99 / 100 x 100 = 99 (%)
If the image magnification ratio is within the specified range
(100 ± 0.8%), there is no need to perform the adjustment.
If it is not within the specified range, perform the following pro-
cedures.
5) Enter the SIM48-1 or 50-6 mode.
SIM48-1
(DSPF)
(RSPF)
* Items A, C, E: When the set value is increased by 1, the
magnification ratio is increased by 0.02%.
* Items B, D, F: When the set value is increased by 1, the
magnification ratio is increased by 0.1%.
* It affects scanning (PC scanning, etc.) as well as copying.
A4 size
10mm
10mm
Paper pass direction
original
copy
10 50 100 150 200
10
50 100
150
200
Item Display Content
Setting
range
Default
value
A CCD (MAIN) SCAN main scanning
magnification ratio
adjustment (CCD)
1 - 99 50
B CCD (SUB) SCAN sub scanning
magnification ratio
adjustment (CCD)
1 - 99 50
C SPF (MAIN) DSPF document front
surface magnification ratio
adjustment (Main scan)
1 - 99 50
D SPF (SUB) DSPF document front
surface magnification ratio
adjustment (Sub scan)
1 - 99 50
E SPFB (MAIN) DSPF document back
surface magnification ratio
adjustment (Main scan)
1 - 99 50
Item Display Content
Setting
range
Default
value
A CCD (MAIN) SCAN main scanning
magnification ratio
adjustment (CCD)
1 - 99 50
B CCD (SUB) SCAN sub scanning
magnification ratio
adjustment (CCD)
1 - 99 50
C SPF (MAIN) RSPF document front
surface magnification ratio
adjustment (Main scan)
1 - 99 50
D SPF (SUB) RSPF document front
surface magnification ratio
adjustment (Sub scan)
1 - 99 50
E SPFB (MAIN) RSPF document back
surface magnification ratio
adjustment (Main scan)
1 - 99 50
F SPFB (SUB) RSPF document back
surface magnification ratio
adjustment (Sub scan)
1 - 99 50
ǂǂǂ6,08/$7,21
ǂǂ12
&/26(
7(67
0$*1,),&$7,21$'-8670(17

$˖
˷
˹
˖&&'
0$,1
$˖

˖&&'
68%
%˖

˖63)
0$,1
&˖

˖63)
68%
'˖

˖63)%
0$,1
(˖

2.
(SIM48-1)
ǂǂǂ6,08/$7,21ǂǂ12
&/26(
7(67
/($'('*($'-8670(179$/8(63)
$˖
˷˹
˖6,'(
$˖
˖6,'(
%˖
˖/($'B('*(6,'(
&˖
˖)5217B5($56,'(
'˖
˖/($'B('*(6,'(
)˖
˖75$,/B('*(6,'(
(˖
˖)5217B5($56,'(
*˖
˖75$,/B('*(6,'(
+˖
˖2)6(7B63)
,˖
˖2)6(7B63)
-˖
˖6&$1B63(('B63)
.˖
2.

(SIM50-6)

Table of Contents

Other manuals for Sharp MX-4101N

Related product manuals