EasyManua.ls Logo

SICK Lector63x Flex C-mount - Page 89

SICK Lector63x Flex C-mount
98 pages
Print Icon
To Next Page IconTo Next Page
To Next Page IconTo Next Page
To Previous Page IconTo Previous Page
To Previous Page IconTo Previous Page
Loading...
6
Device number
7
CAN etc.
8
Slave
9
Branch line
ß
Adapter cable (female connector, M12, 17-pin, A-coded/male connector, D-Sub-HD, 15-pin)
à
Device number (GN)
á
Maximum 32 users
â
Example of alternative connection module:
CDB650-204
A connection cable 1:1 (female connector, M12, 17-pin, A-coded / male connector, M12, 17-pin, A-coded) is required to
connect the device.
NOTE
Activate the CAN data interface in the device with a configuration tool, e.g., the configu‐
ration software SOPAS ET.
Make further settings in the device corresponding to the function of the device in the
system configuration.
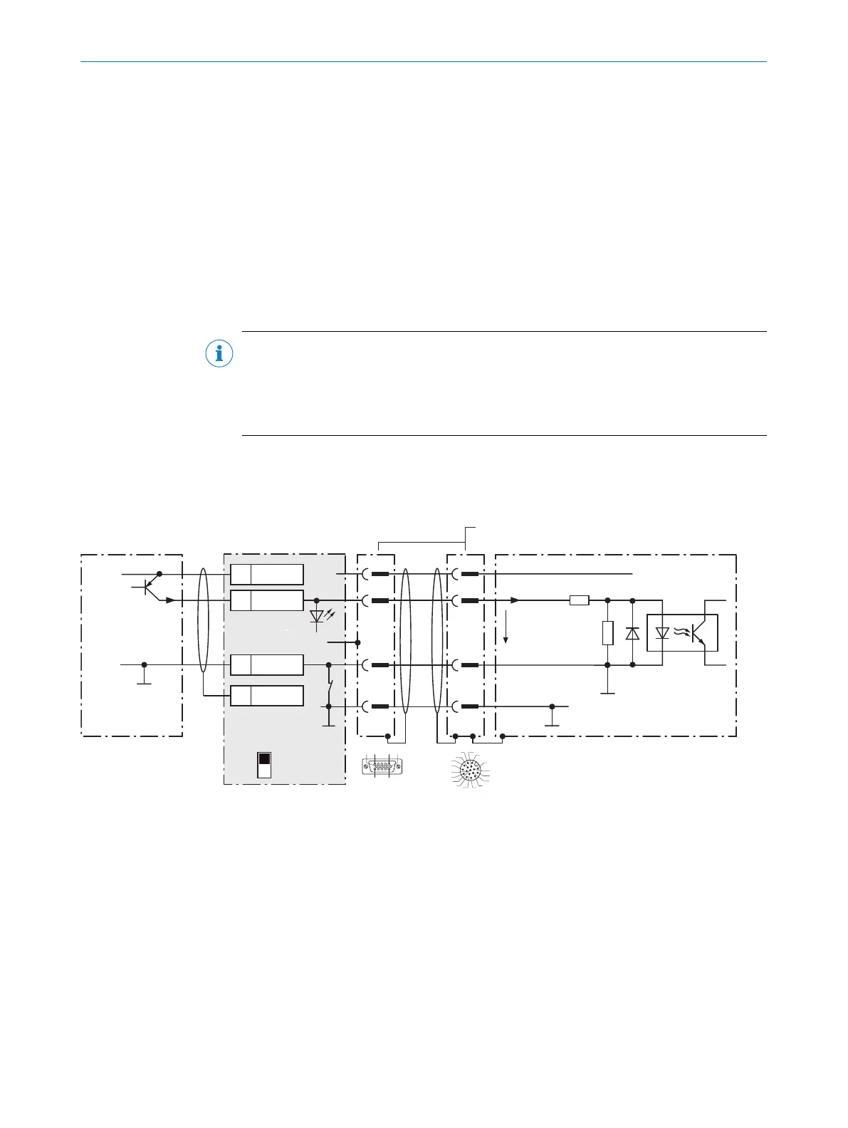
13.3.7 Wiring digital inputs of the device in the CDM420-0006
Device = Lector63x = V2D63xx-xxxxBx
Device 4
CDM420-0006
PNP sensor 8
V
S
V
S
V
S
GND
SensGND
3.32 K
6.64 K
Sensor E
V
in
D
9
2
1
C
15
1
5
Out
+24V*
GND
S6
ON
OFF
S6 : SGND-GND
Shield
GND
.
.
.
A
Sensor B
37
SGND
6
Shield
39
+24 V*
GND
SensGND
3
1
7
2
6
5
4
8
13
14
17
15
9
10
12
16
11
Trigger sensor 1
9
E.g. photo-electric
switch 7
3
6 5
110
15
6
11
5
Cable 2
Figure 36: Trigger sensor supplied with power by connection module CDM420-0006.
1
Trigger sensor
2
Adapter cable (male connector, D-Sub-HD, 15-pin / female connector, M12, 17-pin, A-coded)
3
Input voltage V
in
4
Device
5
Device: male connector, M12, 17-pin, A-coded
6
Connection module: female connector, M12, 17-pin, A-coded
7
E.g. photoelectric sensor
8
PNP sensor
9
Supply voltage V
S
ANNEX 13
8018071/1E1C/2021-12-16 | SICK O P E R A T I N G I N S T R U C T I O N S | Lector63x Flex C-mount and S-mount
89
Subject to change without notice

Table of Contents

Related product manuals