EasyManua.ls Logo

SICK Lector63x Flex C-mount - Page 93

SICK Lector63x Flex C-mount
98 pages
Print Icon
To Next Page IconTo Next Page
To Next Page IconTo Next Page
To Previous Page IconTo Previous Page
To Previous Page IconTo Previous Page
Loading...
13.3.9 Wiring digital outputs of the device in the CDM420-0006
Device = Lector63x = V2D63xx-xxxxBx
Device 1
CDM420-0006
Load (e.g. PLC) 4
C
5
.
.
.
E
Result D
13
GND
5
Shield
+24 V* (V
S
)
V
S
GND
V
out
Result A
GND
B
1
2 1
For inductive load: 6
5
2
3
3
1
7
2
6
5
4
8
13
14
17
15
9
10
12
16
11
8 7
110
15
6
11
5
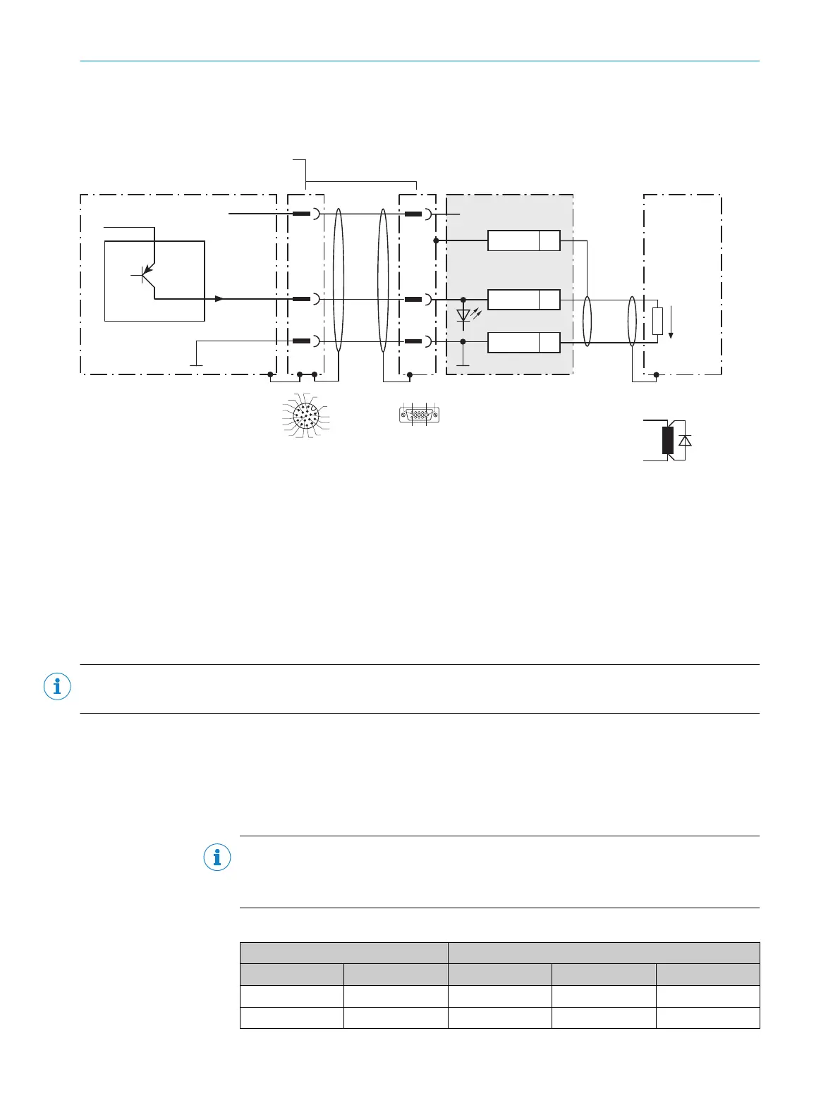
Figure 40: Wire the digital output in the CDM420-0006 connection module.
1
Device
2
Supply voltage V
S
3
Adapter cable (female connector, M12, 17-pin, A-coded/male connector, D-Sub-HD, 15-pin)
4
Load (e.g. PLC)
5
Output voltage V
out
6
With inductive load: see note
7
Connection module: female connector, D-Sub-HD, 15-pin
8
Device: male connector, M12, 17-pin, A-coded
NOTE
Digital outputs are omitted due to the 15-pin adapter cable.
Not available in CDM420-0006:
Result 3
Result 4
Inductive load
NOTE
Provide an arc-suppression switch at the digital output if inductive load is present.
b
Attach a freewheeling diode directly to the load for this purpose.
Table 38: Assignment of placeholders to the digital outputs
Device CDM420-0006
Output A Pin B Pin C Signal D Terminal E
Result 1 13 12 Result 1 14
Result 2 14 13 Result 2 15
ANNEX 13
8018071/1E1C/2021-12-16 | SICK O P E R A T I N G I N S T R U C T I O N S | Lector63x Flex C-mount and S-mount
93
Subject to change without notice

Table of Contents

Related product manuals