EasyManua.ls Logo

Siemens 6EP1961-3BA21 - Buffer Modules; Sitop Buf1200

Siemens 6EP1961-3BA21
116 pages
Print Icon
To Next Page IconTo Next Page
To Next Page IconTo Next Page
To Previous Page IconTo Previous Page
To Previous Page IconTo Previous Page
Loading...
Description, device design, dimension drawing
2.5 Dimensions and weight
SITOP expansion modules
40 Equipment Manual, 09.2022, A5E36605235-2-76
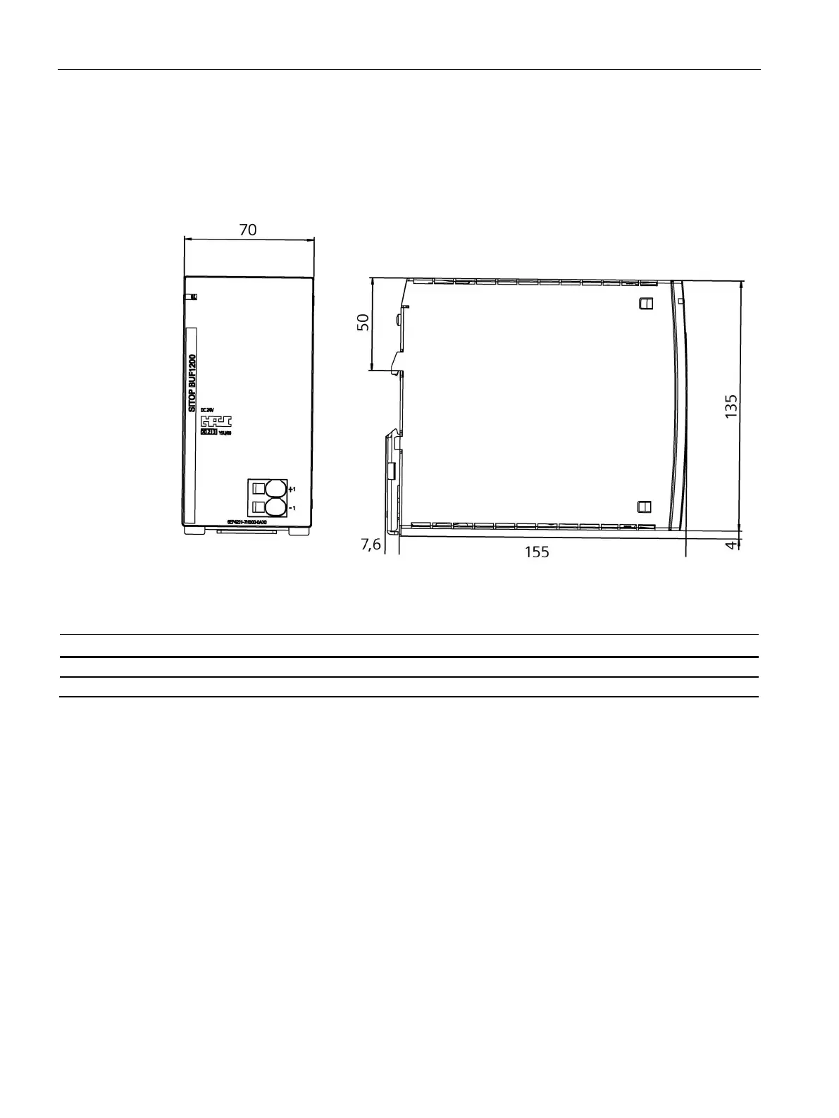
2.5.2 Buffer modules
2.5.2.1 SITOP BUF1200
Figure 2-30 Dimension drawing
6EP4231-7HB00-0AX0 and 6EP4231-7HC00-0AX0
Dimensions (W × H × D) in mm
70 × 135 × 155
Weight
Approx. 1.5 kg

Table of Contents

Related product manuals