EasyManua.ls Logo

Siemens Midimaster Eco - Page 158

Siemens Midimaster Eco
183 pages
To Next Page IconTo Next Page
To Next Page IconTo Next Page
To Previous Page IconTo Previous Page
To Previous Page IconTo Previous Page
Loading...
ECO REFERENCE MANUAL
15-27
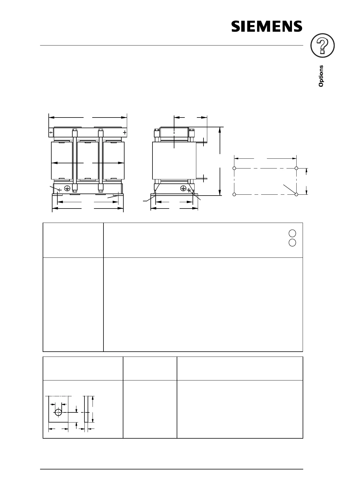
4EU three-phase line reactors
Dimensions
With flat connectors,
for mounting the reactor on horizontal surfaces
Three-phase line reactor
Type
b
1
max.
mm
d
1
mm
d
2
mm
d
3
mm
e
max.
mm
h
max.
mm
l
1
max.
mm
l
2
max.
mm
l
4
max.
mm
n
1
±
IT12
mm
n
2
±
IT12
mm
1
2
4EU24 104 7 13 M6 80 220 219 206 196 70 176 M6
4EU25 128 7 13 M6 97 220 219 206 196 94 176 M6
4EU27 146 10 18 M8 114 250 255 235 280 101 200 M6
4EU30 155 10 18 M8 116 280 285 264 310 118 224 M6
4EU36 169 n 10 18 M8 180 335 345 314 360 138 264 M6
4EU39 174 12 18 M10 197 385 405 366 410 141 316 M6
4EU43 194 15 22 M12 212 435 458 416 460 155 356 M6
4EU45 221 15 22 M12 211 435 458 416 460 182 356 M6
4EU47 251 15 22 M12 231 435 458 416 460 212 356 M6
4EU50 195 12,5 12,5 M10 220 565 533 470 518 158 410 M12
4EU52 220 12,5 12,5 M10 242 565 533 470 518 183 410 M12
Flat connector
Rated current
I
Ln
a
1
a
2
a
3
a
4
a
5
a
6
a
7
A mmmmmmmmmmmmmm
45 to 80 30 20 3 10 9 - -
a
a
a
a
a
1
23
4
5
81
201
316
801
to
to
to
to
200
315
800
1000
35
40
50
50
25
30
40
40
5
6
6
8
12,5
15
20
20
11
14
14
14
-
-
-
-
-
-
-
-
Montagelochung
mounting holes
e
h
n
1
l
1
l
4
n
2
d
3
n
2
l
2
n
1
b
1
d
2
d
1

Table of Contents

Other manuals for Siemens Midimaster Eco

Related product manuals