EasyManua.ls Logo

SII LP-1010 - Installation Space

SII LP-1010
290 pages
Print Icon
To Next Page IconTo Next Page
To Next Page IconTo Next Page
To Previous Page IconTo Previous Page
To Previous Page IconTo Previous Page
Loading...
1-6
2560
(100.8)
1760
(69.3)
700
(27.6)
700
(27.6)
1160
(45.7)
600
(23.6)
900
(35.4)
1650
(65)
2050
(80.7)
570
(22.4)
Installation space
Maintenance space
300
(11.8)
300
(11.8)
300
(11.8)
800
(31.5)
units: mm (inch)
(Height is 2000 mm / 78.7 inches)
When moving this device from its current location to a
different location, contact our company’s service center.
Note
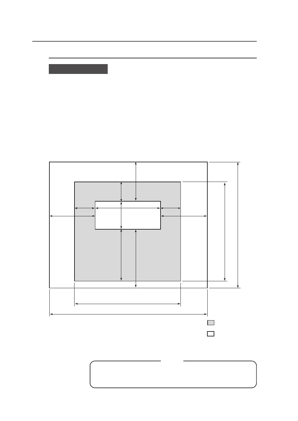
Installation space
When installing this device, space to the front, rear, left and right sides of
the device should be accommodated for the replacement of consumables,
the processing of output drawings, and the ventilation. The minimum
installation space indicated in the diagram below should be ensured. The
maintenance space indicated in the diagram below is needed to perform
parts replacement, etc.
Installation/maintenance space

Table of Contents