EasyManua.ls Logo

Simrad GC80 Compact Gyro - Page 41

Simrad GC80 Compact Gyro
114 pages
Print Icon
To Next Page IconTo Next Page
To Next Page IconTo Next Page
To Previous Page IconTo Previous Page
To Previous Page IconTo Previous Page
Loading...
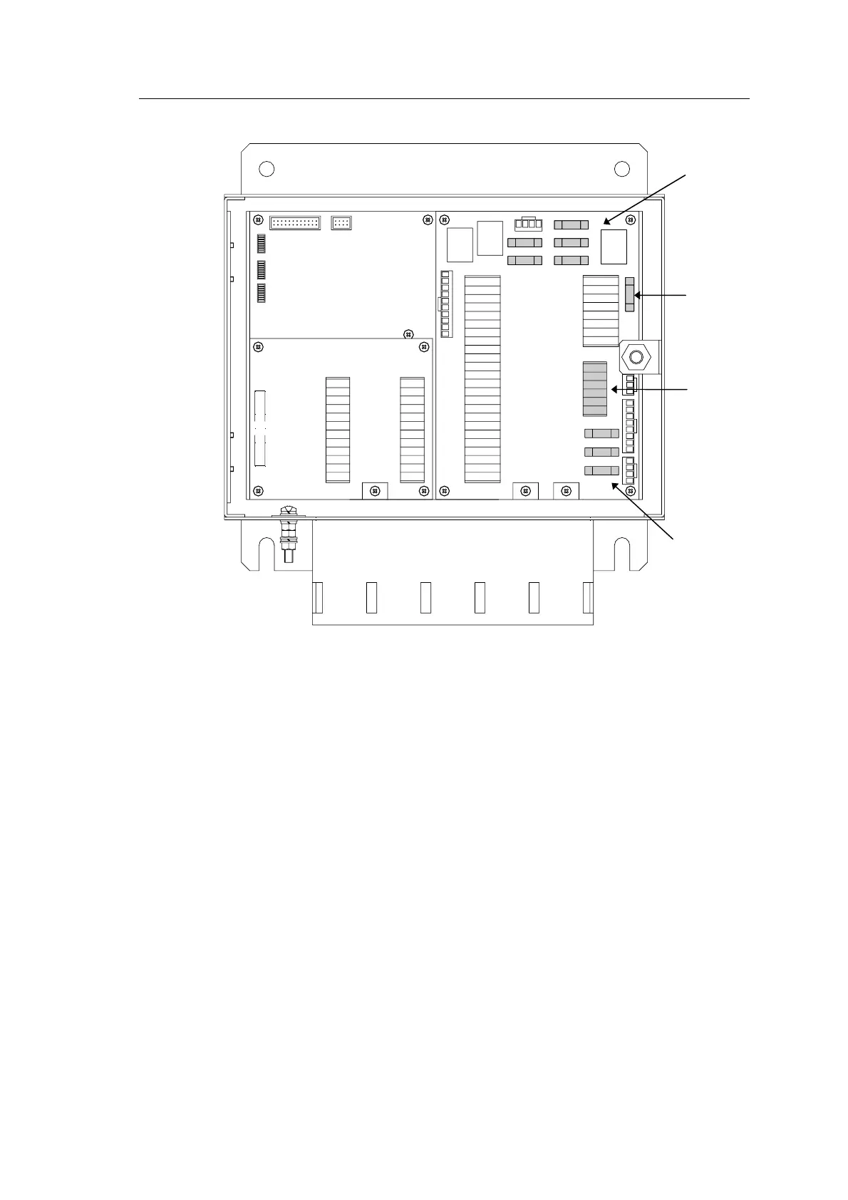
MAINTENANCE
20221511 / D 33
TB1
TB3 TB4
1
6
TB3
F8
F1
F2
F3
F4
F5
TB2
F7
F9
F6
WARNING Make sure that power is disconnected from
pin 1-4 on TB3 before any fuse is replaced!
Note! The fuses in the Compact Control unit are open glass type and
may be damaged if handles with force.
1 Pull the damaged fuse up from the holder.
2 Re-install a new fuse by carefully pushing it into the
holder. When correctly located, it should be fixed 1-2mm
above and parallel with the mounting level.
F1 – F5
(1A)
F8
(6.3A)
F6, F7
AND F9
TB3

Table of Contents

Related product manuals