EasyManua.ls Logo

Simrad GC80 Compact Gyro - ITERM Board

Simrad GC80 Compact Gyro
114 pages
Print Icon
To Next Page IconTo Next Page
To Next Page IconTo Next Page
To Previous Page IconTo Previous Page
To Previous Page IconTo Previous Page
Loading...
Simrad GC80/GC85 Compact Gyro Compass
96 20221511 / D
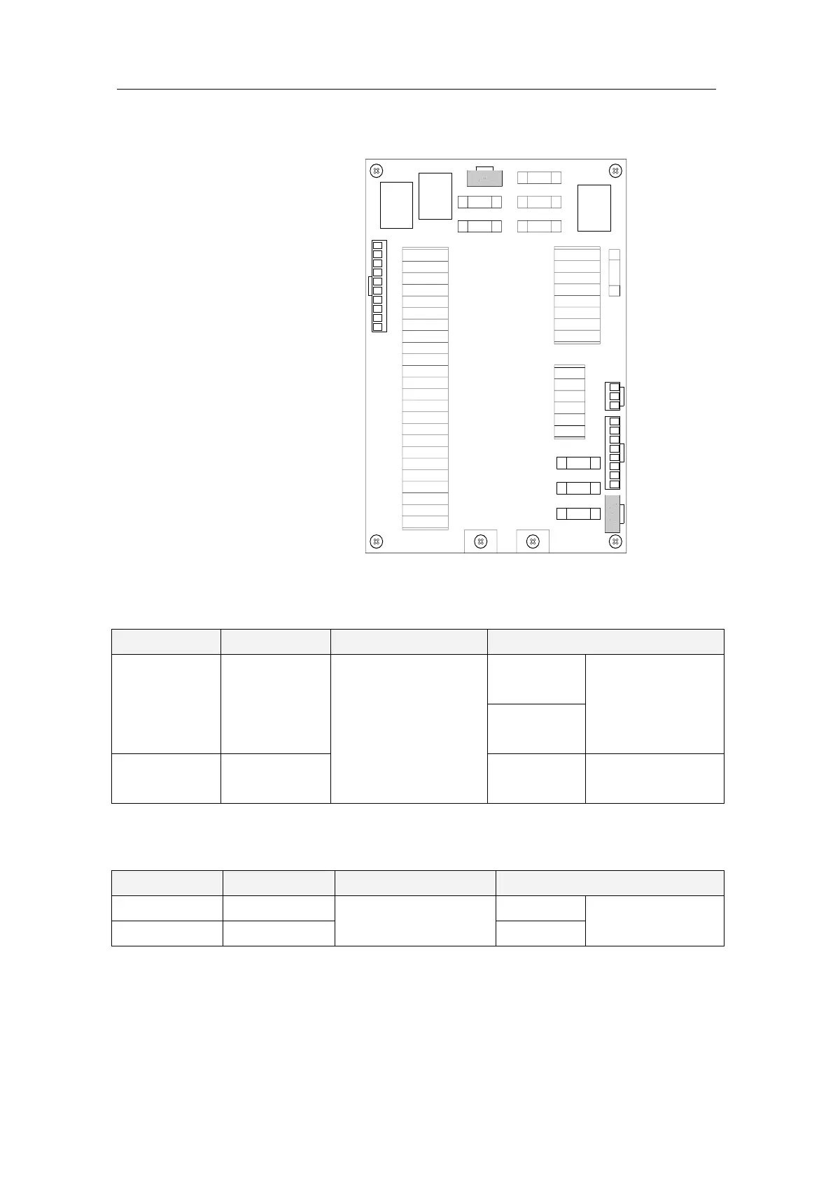
ITERM board
F8
TB2
J6
J5
TB1
Jumper settings without Power supply unit
JUMPER DEFAULT FUNCTION DESCRIPTION
1-3 short
2-4 short
J5 -
J5-3 to
TB2-16 short
No Power supply
unit
J6 -
System used without
Power supply unit
1-3 short
2-4 short
No Power supply
unit
Jumper settings with Power supply unit
JUMPER DEFAULT FUNCTION DESCRIPTION
J5 - All open
J6 -
System used with
Power supply unit
All open
With Power supply
unit
Note! Remove the wire connecting TB2-16 and J5-3. Refer page 39

Table of Contents

Related product manuals