EasyManua.ls Logo

Simrad GC80 Compact Gyro - Page 86

Simrad GC80 Compact Gyro
114 pages
Print Icon
To Next Page IconTo Next Page
To Next Page IconTo Next Page
To Previous Page IconTo Previous Page
To Previous Page IconTo Previous Page
Loading...
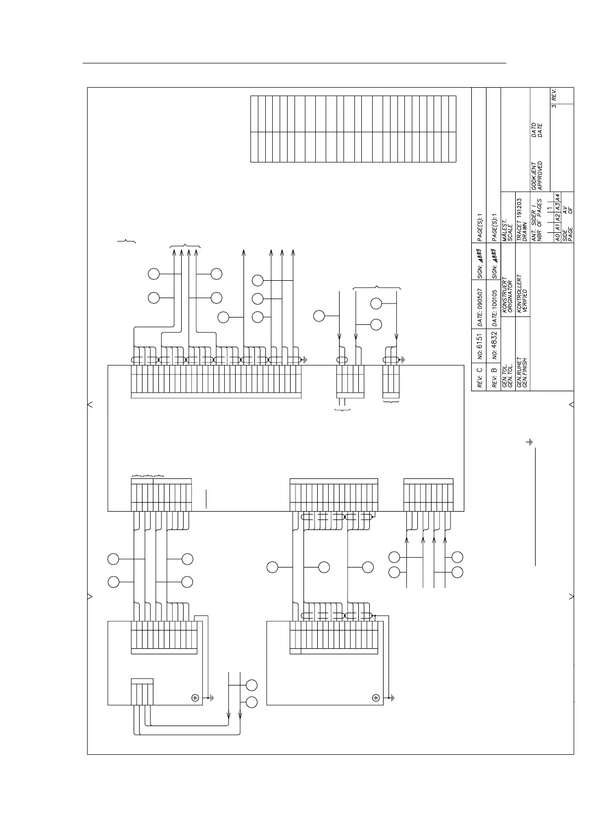
Simrad GC80/GC85 Compact Gyro Compass
78 20221511 / D
Shielded cables to be connected to GND
COMPACT CONTROL UNIT
GC80/85
29
30
31
32
33
39
40
41
42
43
TB1
1TX+
1TX-
1TSC
1R24-
1R24+
34
35
36
37
38
44
45
46
47
48
17ST11
18
19
20
21
ST13
ST12
2TX+
2TX-
2TSC
2R24-
2R24+
3TX+
3TX-
3TSC
3R24-
3R24+
4TX+
4TX-
4TSC
4R24-
4R24+
ST14
ST15
TB3
200/400 pulse/n.mile
SL+ 12
SL- 13
INPUT
SIGNAL INPUT
10
11
9
8
7
TB2
GRX+
GRX-
LRX+
LRX-
LSC
ESRX+
ESRX-
ESC
VTG
GGA
GLL
VBW
FGND
MSC
MR-
MR+
MT-
MT+
16
10
9
8
7
6
ECC
EB-
EB+
EA-
EA+
ALC
AL2
AL1
N-
N+
TB1
15
14
13
12
11
5
4
3
2
1
GC80/85
MASTER COMPASS
FGND
MSC
MR-
MR+
MT-
MT+
14
8
7
6
5
4
ECC
EB-
EB+
EA-
EA+
ALC
AL2
AL1
N-
N+
TB2
13
12
11
10
9
3
2
1
2
1
TB1
R24-
R24+
IOPT PWB
páãê~Ç=bÖÉêëìåÇ=^p
klot^v
J
bdboprka
d`UMLUR=dóêç=`çãé~ëë
táêáåÖ=Çá~Öê~ã
N
Pk
N
TNMNUO
`
selectable
3
6
10
11
13
9
4
12
7
8
14
5
RECOMMENDED
SHIP'S SUPPLY FOR GYRO (AC)
EMERGENCY SOURCE FOR GYRO BACKUP (DC24V max10A)
GC80/85
POWER SUPPLY UNIT
SW+
PC
POV
POC
PF
24R-
24R+
24B-
24B+
24M-
24M+
TB201
2B-
2B+
2AC2
2AC1
FGND 14
11
10
9
8
7
4
3
6
5
2
1
TB1
SW+ 8
PC
POV
POC
PF
24R-
24R+
24B-
24B+
24M-
24M+
TB2
6
5
4
3
2
1
4
3
2
1
TB3
15
16
18
17
12
NMEA OUT: HEHDT & HEROT
DC24V STEP SIGNAL
no serial signal type repeater is used
No wire should be connected if
`çãé~Åí=ëóëíK=ïLmçïÉê=pìééäK=ìåáí
The following jumper modifications have to be done:
1) Remove wire from TB2-16 to J5-3
2) Remove J5
3) Remove J6
NOTE:
MAIN
BACK-UP
REPEATER
BZSP-
BZSP+
26
25
BUZZER STOP
19
EACK-
EACK+
ALCN2
ALCN1
28
27
24
23
ALARM RELAY
REMOTE ALARM ACKN.
20 21
EB-
EB+
EA-
EA+
ALC
AL2
9
8
7
6
5
4
3
2
1
TB4
EXT. HEADING SENSOR
RUNNING CONTACT
GYRO SELECT SW.
EXT. HEADING SENSOR SW.
SPEED LOG
(ONE or BOTH)
GPS SIGNAL
22
23 24
PENDULUM / REMOTE
14
12
TW. / SHIELDED
AWG18
15
18
17
16
AWG14
AWG14
AWG14
AWG17
AWG2019
20
23
22
21
24
AWG18
13
TW. / SHIELDED
AWG18
11
TW. / SHIELDED
AWG18
9
TW. / SHIELDED
AWG18
8
TW. / SHIELDED
AWG18
7
TW. / SHIELDED
AWG18
6
TW. / SHIELDED
AWG18
10 AWG17 SHIELDED
3
4
5
1
2
CABLE NO. CABLE TYPE
AWG14
AWG14
AWG14
AWG17 SHIELDED
AWG17 SHIELDED
CABLE TYPES
AWG18
AWG20
AWG20
AWG20
AWG20

Table of Contents

Related product manuals