EasyManua.ls Logo

Skyjack SJ 4632 - Electrical Schematic (Models 322 X CE - Equipped with All Options)

Skyjack SJ 4632
130 pages
Print Icon
To Next Page IconTo Next Page
To Next Page IconTo Next Page
To Previous Page IconTo Previous Page
To Previous Page IconTo Previous Page
Loading...
SJIII Conventional Series
143911
SKYJACK, Page 36
A B C D E F G H
V
Z
Y
X
W
M149743AB
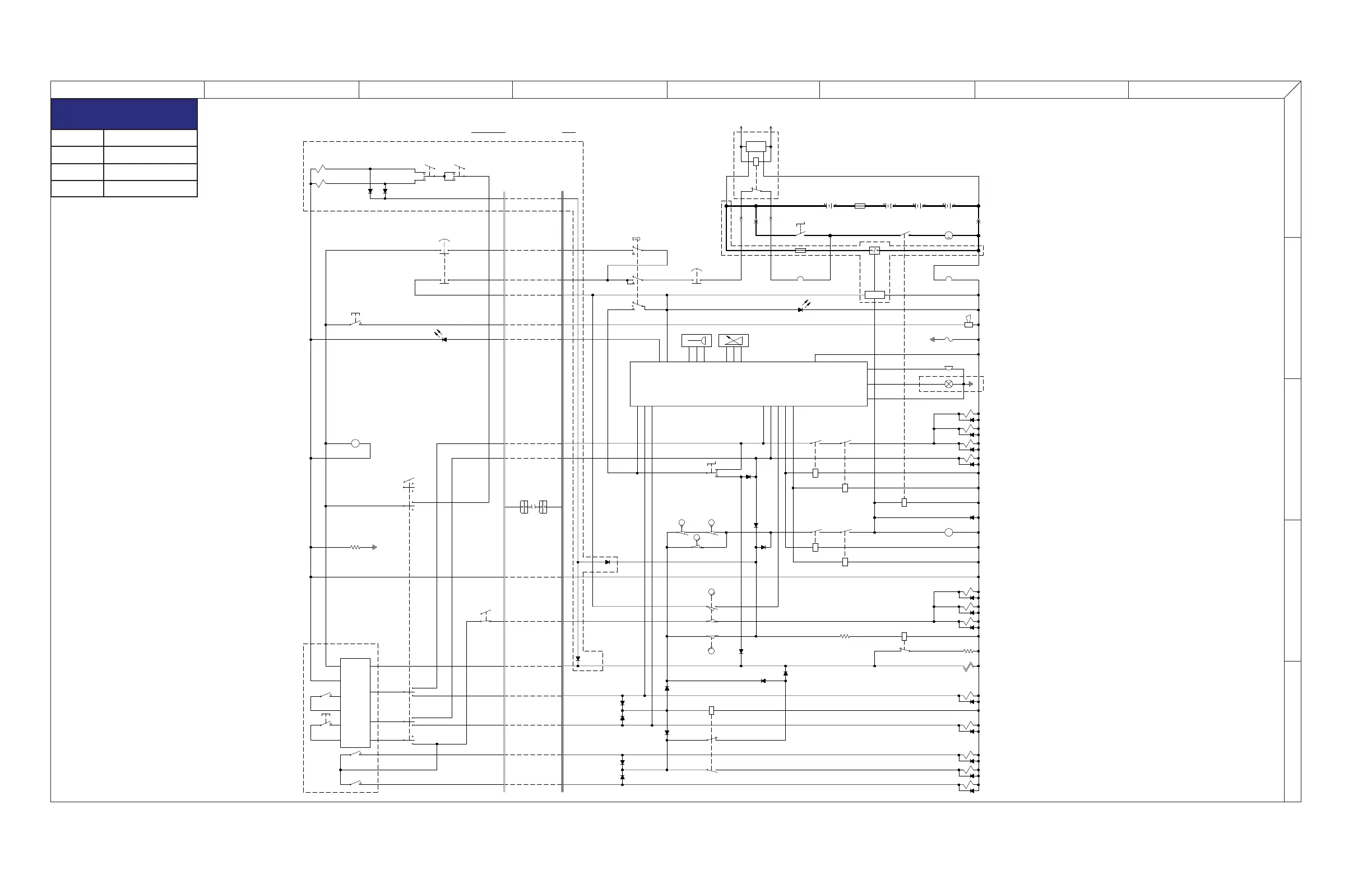
3.25a Electrical Schematic (Models 322x CE - Equipped with all options)
AC
Serial Breakdown
Reference Chart
Model Serial Number
SJ3 3220 60002138 & above
SJ3 3226 27006059 & above
SJ3 46XX 70006694 & above
BASE
02
42
41
P3-3 = 60
49
HORN
H1
49
HORN
POWER ON LED
NO
7A
POWER ON LIGHT
LED-2
02
10E
7A
8C
07
5A
07
NCHO
NCHO
05
07
8C
(IN IDLE POSITION)
IDLE/PLTF/BASE
KEY SWITCH
S10
STOP
SWITCH
S28
EMERGENCY
5A
60
49
08
ENABLE
02
02
CONTROL BOX
POWERED PLATFORM OPTION
EXTEND SOLENOID
4H-27
4H-26
ENABLE
SWITCH
26
RETRACT
EXTEND/
SWITCH
RET
27
S11
EXT
9A
S12
09
JOYSTICK PCB
08
7A
08
RETRACT SOLENOID
21B
D26
D27
S4
EMERGENCY
STOP
21B
49
7A
07
BATTERY CHARGE
S8
HORN
SWITCH
08
S7
JOYSTICK
PWM
00
2.7K OHMS
RST1
BCI
INDICATOR
V
02
60
59
24
23
RIGHT
12B
S7-2
LEFT
S7-3
07
8C
8C
S7-1
NUETRAL
OUTPUT
GREEN
BLUE/WHITE
RED/WHITE
BLUE/BLACK
BLACK/WHITE
BLUE
WHITE/BLACK
ORANGE/BLACK
RED/BLACK
WHITE
CRD3CRD1 CRD2
BLACK
ORANGE
RED
GREEN/BLACK
GREEN/WHITE
POWER ON/LSS
LIGHT
LED-1
02
60
02
S7-6
ENABLE
8A
2H-59
21B
7A
60
13
14
D21B-2
02
18
D21B-1
59
15
23
16
24
L1CR
CHARGER
CUTOUT RELAY
110 VAC
LINE VOLTAGE
24V CHARGER
BC
DOWN RELAY
21
UP/DOWN
SWITCH
FL-22
B1 6V
BATTERY
24V
F1
300A
FUSE
S1 MAIN
DISCONNECT
TRANSDUCER
PRESSURE
PT1
3A
03
ANGLE
TRANSDUCER
AT1
B4 6V
BATTERY
B3 6V
BATTERY
B2 6V
BATTERY
85
TIMER
02
P2-3 = 14
P4-9 = 910A
P4-2 = 60A
P4-7 = 900
CM1
CONTROL
MODULE
P2-2 = 10E
P2-7 = 16
P2-8 = 15
P4-3 = 28B
P4-8 = 902
P4-6 = 910
P2-4 = 13
13
10E
13
14E
S2
D14E-2
14
P3-1 = 22
P3-5 = 02
P3-2 = 29
P2-11 = 02
P2-12 = 7A
P3-4 = 28
P2-10 = 18B
P3-6 = 28E
13 13A
28E
28ECR2
02
28
13B
02
PUMP MOTOR
BATTERY
PACK
CHARGER
00
1
2
5M
3
4
DCM1
INVERTER OPTION
BREAKER
TIMER
INVERTER OPTION
10A CIRCUIT
8
02
6
7
CB1
00
10
9
HOLDING VALVE
2H-13B-2
OPTION
FLASHING LIGHT
BEEPER
BP-29
02
12
11
13
29
00
14
15
22
AUX. DOWN RELAY
UP SOLENOID
HOLDING VALVE
TWO CYLINDERS
SINGLE CYLINDER
DOWN SOLENOID
DO2-3
DO2-1
2H-13B-1
DO2-2
16
18
2H-13B
17
DO2-4
19
20
3H-14
LOW VOLTAGE
PROTECTION
LS4
71
LS6
71
D14
LS5
72
19
19
D21
HIGH SPEED
LIMIT SWITCHES
7A
18B
LS1B
18
71
18A
21
21
28CR2
28E 02
19 19A
28ECR1
28
19BCR
19B 02
02
28CR1
21ACR
RST3
21A
02
D17-1
17
D15
D16
LS1A
D14E-1
59
17
D17C
17CR
02
D17
D24
D23
17B
17C
17B
17A
59
D17C-1
RST2
59A
59
HOURMETER
TILT RELAY
AUX. TILT RELAY
MOTOR CONTACTOR
22
23
DO2-5
TT
26
24
25
19B
PROPORTIONAL
DIFF. SOLENOID
SPEED B SOLENOID
RELAY
SPEED A SOLENOID
2H-18A
DO2-6
3H-18A-1
27
28
3H-18A-2
DO2-7
DO2-8
29
30
31
4H-16
TRANSFER RELAY
REVERSE SOLENOID
PROPORTIONAL
SOLENOID
34
33
32
4H-15
DO2-9
35
36
BRAKE SOLENOID
LEFT SOLENOID
FORWARD SOLENOID
RIGHT SOLENOID
DO2-11
38
4H-23
37
DO2-10
39
3H-17A
40
4H-24
DO2-13
DO2-12
7A
C1
MOTOR
CONTACTOR
F2
50A FUSE
CB2
10A CIRCUIT
BREAKER
19B
N.C.
N.C.
N.O.
POTHOLE PROTECTION
LIMIT SWITCHES N.C.H.O.
DRIVE OVERRIDE
LIMIT SWITCH N.C.
09
08
24
16
23
15
59
18
02
13
14
S3
LIFT/
OFF/
DRIVE
SWITCH
B
A
14
13
15
8A
12B
16
S27
TORQUE
SWITCH
12B
08
02
B
A
REV/DN
FWD/UP

Table of Contents

Other manuals for Skyjack SJ 4632

Related product manuals