EasyManua.ls Logo

Skyjack SJ30AJE - Dimesion Diagram - SJ30 AJE

Skyjack SJ30AJE
190 pages
Print Icon
To Next Page IconTo Next Page
To Next Page IconTo Next Page
To Previous Page IconTo Previous Page
To Previous Page IconTo Previous Page
Loading...
42
SJ30AJE, SJ30ARJE196274AF
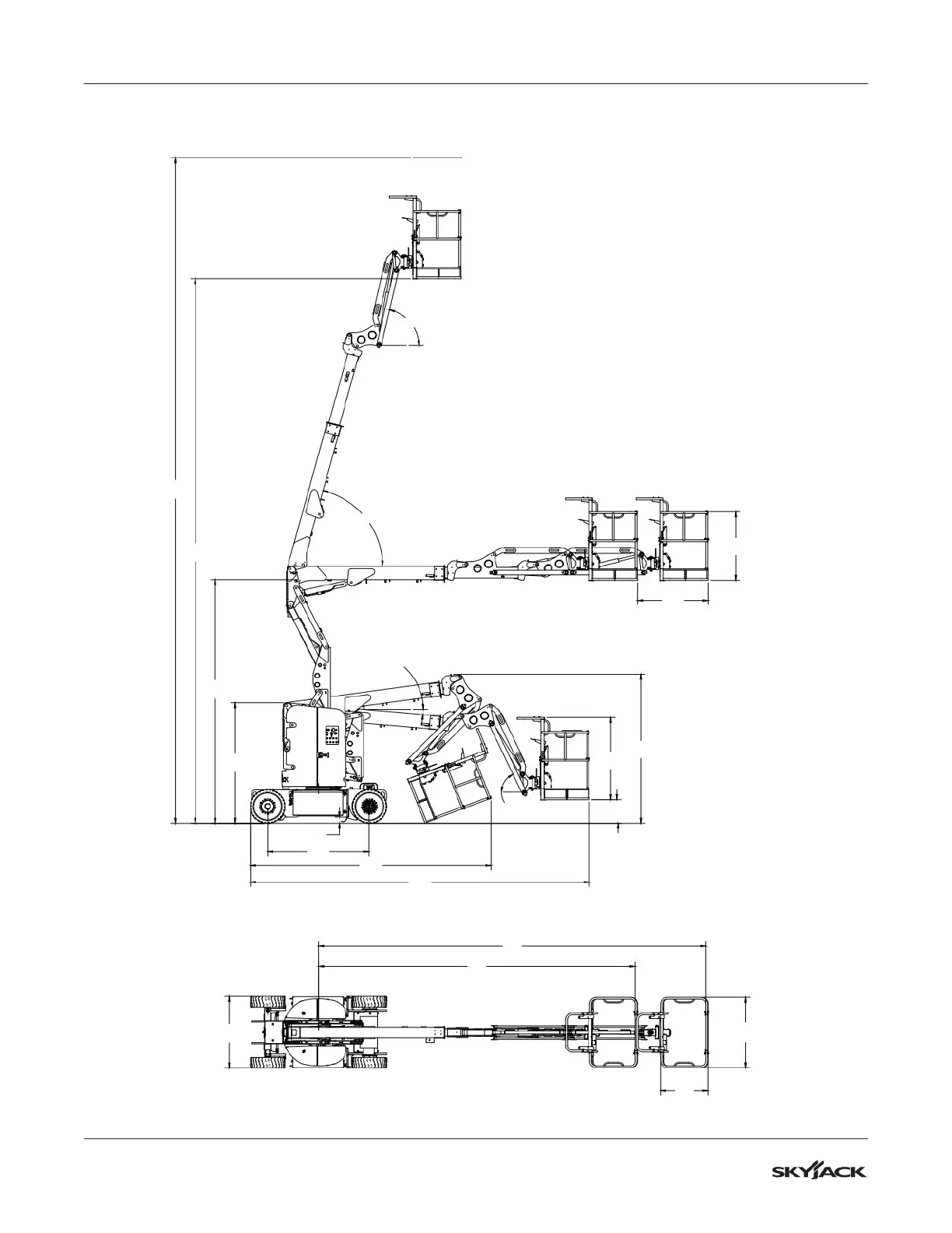
Section 2 – Maintenance Tables and Diagrams Dimesion Diagram - SJ30AJE
29’ 8”
[9.04 m]
75°
65.5°
77.5°
4’ 1”
[1.24 m]
8’ 3”
[2.51 m]
4’ 3”
[1.30 m]
1’ 3”
[0.38 m]
13’ 1”
[4.00 m]
6’ 6”
[1.98 m]
4”
[0.10 m]
13’ 1”
[3.99 m]
5’ 5”
[1.65 m]
18’ 2”
[5.64 m]
5’ 5”
[1.65 m]
16’ 9”
[5.11 m]
20’ 7”
[6.27 m]
2’ 6”
[0.76 m]
3’ 10”
[1.17 m]
36’ 3”
[11.1 m]
2’ 11”
[0.90 m]
2.13 Dimesion Diagram - SJ30AJEDiagram

Table of Contents

Related product manuals