EasyManua.ls Logo

Skyjack SJ30AJE - Platform Controls Schematic - SJ30 ARJE KC

Skyjack SJ30AJE
190 pages
Print Icon
To Next Page IconTo Next Page
To Next Page IconTo Next Page
To Previous Page IconTo Previous Page
To Previous Page IconTo Previous Page
Loading...
V
W
Y
Z
L
M N
O
F
G
H
K
X
I
J
EDCBA
U
T
S
R
73
SJ30AJE, SJ30ARJE196274AF
AD
11
9
8
7
6
5
4
3
2
1
10
12
25
26
27
28
29
30
31
32
33
34
35
24
20
13
14
15
16
17
18
19
21
23
22
GROUND
Y-SIGNAL
X-SIGNAL
POWER
+
_
+
_
16
A2
BOOM/TURRET
JOYSTICK
A3
SPEED CTRL.
SELECTOR
A1
DRIVE/STEER
JOYSTICK
16P-MALE
(B)
24P-FEMALE
(A)
02
02
02
30A
X-SIG
Y-SIG
C
38A
34A
34
35A
04
04
04
08
L
36A
40A
42A
RED (+)
BLK (-)
WHT (X)
BLU (Y)
04 (RED/YELLOW)
02 (WHITE)
RED
BLUE
POWER
RIGHT
LEFT
GROUND
D-SIGNALYEL
BLK
RED
WHT/YEL
WHT/RED
BLACK
02 (WHITE)
24 (BLUE/BLACK)
23 (BLACK/WHITE)
04 (YELLOW)
C
L
GROUND
C L02
BP1
28A
02
01
01
7A04
04
04
04
08
40B
08
D41
40A
41
D40
40A
40
D36
36
36A
D37
36A
37
D42
42
42A
D43
43
42A
S12
PLATFORM
LEVEL
41
40
37
36
S11
PLATFORM
ROTATE
S7
RISER
UP/DOWN
S8
TELESCOPE
IN/OUT
S9
JIB
UP/DOWN
S10
JIB
ROTATE
S5
HORN
S24
EMERGENCY
PUMP
S4
E-STOP
PL5PL3PL4
R6
R5
R7
R8
R3
R4
R11
R12
02 2A
L 38B
2A
2C
2B
38B
34B30B
30A
38A
34A
02
02
02
08
28A
82
04
02
R10
R2
-
--
+
+
+
02
2B
2C
R1
R9
L
30B
34B
PL6
04
-
+
BP3
118
02
118
82
D118
208CR1
28CR
D20A
20B
20A
08
02
04
04
42
43
D08A
08B
7A 20B 23 24
04
28A
04
04B
04
204CR
01A
118
82
60
162
43
42
41
40
37
36
35
34
08B
08A
08
04
04
02
02
02
02
08A
D01
01
01A
02
04B
04B
D
R13
020202 162
40B
02
28
D02
01
3B 3C 13 14 60
30
31 32 33 34 35 36 37 38 39 28 162
59B
02
01
3B
3C
14
20A
31
32
33
38
39
28
30
022904908B20801A
30B 204 43 42
41 40 70
208
49
290
13
70
204
30B
59B
7A
02
04B
04
01A
NOTE: TIE BACK
WIRES.
51C
5"
35A
35
51C
51CCR4
JIB MANIFOLD HARNESS - 192112
FOOTSWITCH CABLE - 192112
01A
118
82
60
162
43
42
41
40
37
36
35
34
08B
08A
08
04
04
02
02
02
02
02 34
35
36
37
42
43
WHITE WIRE
BLACK WIRE
04
08A
JIB MANIFOLD HARNESS - 192112
WIRE 1 - 34 - ORANGE/BLACK
WIRE 2 - 35 - ORANGE/WHITE
WIRE 3 - 36 - RED/PURPLE
WIRE 4 - 37 - WHITE/RED/BLACK
WIRE 5 - 42 - PINK
WIRE 6 - 43 - PURPLE/RED
WIRE 7 - 02 - WHITE
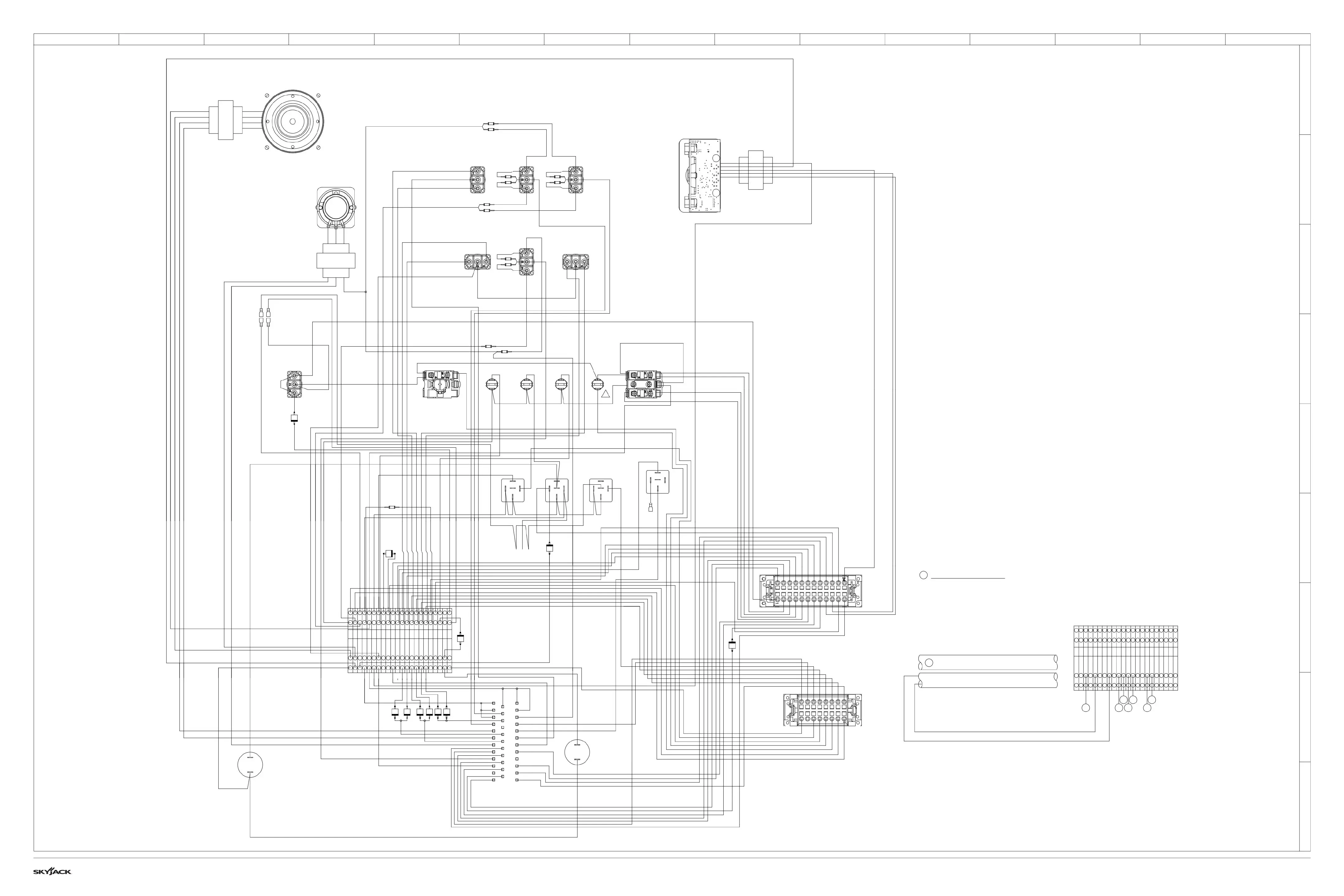
3.24 Platform Controls Schematic - SJ30ARJE KC
3.24 Platform Controls Schematic - SJ30ARJE KC
M208958AE

Table of Contents

Related product manuals