EasyManua.ls Logo

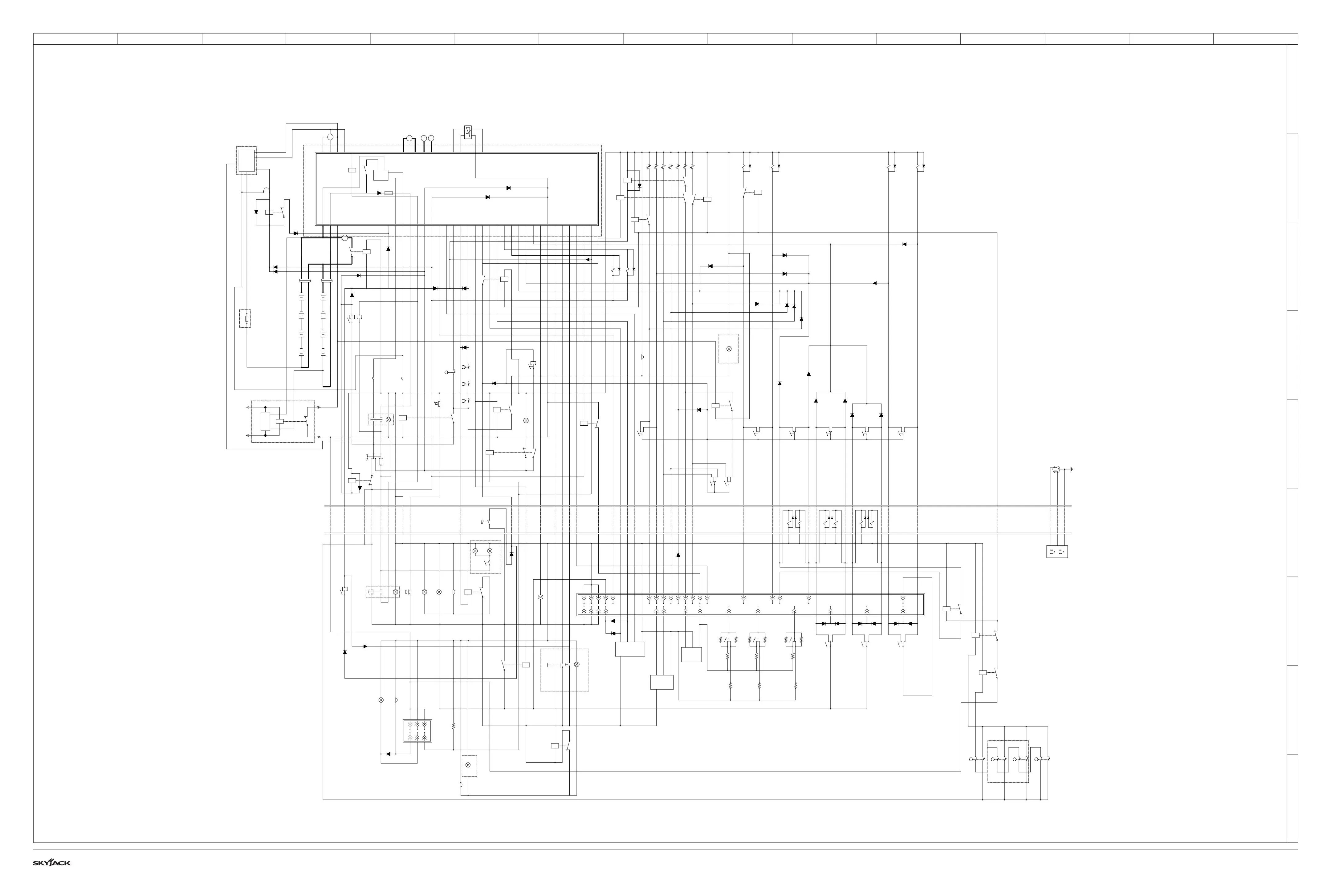
Skyjack SJ30AJE - Electrical Schematic - KC

Skyjack SJ30AJE
190 pages
Print Icon
To Next Page IconTo Next Page
To Next Page IconTo Next Page
To Previous Page IconTo Previous Page
To Previous Page IconTo Previous Page
Loading...
V
W
Y
Z
L
M N
O
F
G
H
K
X
I
J
EDCBA
U
T
S
R
81
SJ30AJE, SJ30ARJE196274AF
MOTOR CONTROLLER
03(48+)
10
7A
A1 - Controls 12V
A3 - E-Stop Feed
A4 - E-Stop Return
A5 - Base Mode
A6 - Platform Mode
28
A8 - Tilt
70
A19 - PMU Speed
D
A7 - Throttle
A9 - Direction Sense
59
A10 - Elevated Drive
A11 - Enable Out
208
A12 - Enable In
23
24
A14 - Steer R
A13 - Steer L
M2
M3
M1
224
223
A15 - Steer L Valve
A16 - Steer R Valve
17
A20 - Base Speed 1
A21 - Base Speed 2
A22 - Base Speed 3
48+
B-
Battery +
Battery -
00
A2 - Controls Ground
A24 - E-Pump Enable
71
72
73
A23 - Charger Cutout
01
60A
3D
SEE SHEET 2 FOR DETAILS
8C
A17 - Battery LED
00
128
28
60
60
204
04A
01A
B2 - 12V Output
B6 - SGE Output
290
B3 - SGE Input
B4 - SGE Reset
30B
259
B5 - Riser Down
B1 - Stowed Limit
M4
B-
24+
24+
B1
-+
B2
-+
B3
-+
B4
-+
B5
-+
B6
-+
B7
-+
B8
-+
48+
B-
B-
60A
60A
60
LINE
VOLTAGE
BATTERY
CHARGER
L1CR
01CR
0201
01
01
PUMP
S23
EMERGENCY
07 01B
01
4H-37
4H-36
SUPPR.
36
37
4H-43
4H-42
SUPPR.
42
43
4H-34
4H-35
SUPPR.
35
34
BLUE
BROWN
GREEN/YELLOW
01
8B
28
JIB UP SOLENOID
JIB DOWN SOLENOID
JIB ROTATE LEFT SOLENOID
JIB ROTATE RIGHT SOLENOID
PLATFORM ROTATE LEFT SOLENOID
PLATFORM ROTATE RIGHT SOLENOID
39
38
36
37
36
37
41
40
41
40
42
43
42
43
35
34 34
35
38
39
S13
PLATFORM
LEVELING
S14
ROTATE
PLATFORM
S15
ROTATE
JIB
JIB
UP/DOWN
S16
S17
IN/OUT
TELESCOPE
73
D36
36
73
D37
37
73
D42
42
73
D43
43
73
10A
10A
10A
10A
10A
73
D34
34
73
73
73
D40
40
73
D41
41
72
4H-40
40
02
4H-41
41
02
4H-38
38
02
4H-39
39A
02
4H-14A
14A
02
4H-13
13
02
4H-32
32
02
4H-33
33
02
5H-20B
20B
02
2H-30B
02
2H-31A
02
SUPPR.
SUPPR.
31A
4H-223
7A
SUPPR.
4H-224
SUPPR.
7A
223
224
02
02
S18
UP/DOWN
RISER
31
30A
33
32
S19
LEFT/RIGHT
TURRET
10A
10A
10A
D10A-1
20B
10A
20B
D20A
20A
LB1
FLASHING LIGHT
02
OPTIONAL
9A
9A
14
32
33
31
ALARM
BP2
ALL-MOTION
02
9A
S20
UP/DOWN
BOOM
14
13
10A
14
13
32
33
20B
30
31
39
72
72
D35
35
D31
71
D14
14
71
D32
32
71
D33
33
31
71
10A
110B
110A
GND
M
CB2 25 AMP
00
CB1 25 AMP
05
3D
EMERGENCY
STOP
S2
PL1
05
03(48+)
07
KEY SWITCH
S3
BASE/OFF/PLATFORM
7A
7A
7B
10
0202
02
60
07
10
EMERGENCY
S4
STOP
PL2
7A
04
7A
7A
04
HORN SWITCH
S5
02
04 49
02
PL4
PL3
49
TILT
ENABLE ACTIVE
02
08
ALARM
BP1
TILT
02
02
28CR
02
28A
28
28
02
02
04
08
1
2
13
24
25
26
04
04
04
04
04
02
02
28A
28A
02
02
02
04
04
04
16
SCM-VALVE DRIVER
Vbat
DRIVE
Right
24
D
02
Left
Output
Ground
08 04
208CR1
04 04
X
Y
BOOM/TUR
Xaxis
Yaxis
Vbat
04
Gnd
02
C
R
L
SPEED
C
02
L
30
3
23
02
28
29
08
33
D
L
30A
R3=250 ohm
R4=250 ohm
R2=250 ohm
R1=250 ohm
27
12
70 70
23
24
39
38
32
34
35
14
43
42
LT
RT
43
42
15
S8
IN/OUT
TELESCOPE
S11
ROTATE
PLATFORM
JIB
UP/DOWN
S9
S10
ROTATE
JIB
37
36
LT
RT
37
36
17
40
41
UP
DN
40
41
18
S12
PLATFORM
LEVELING
08
08
40B
22
8
20
35
13
32
33
23
14
S7
UP/DOWN
RISER
BOOM/
JOYSTICK
A2
A3
SELECTOR
SPEED CTRL.
DRIVE/STEER
JOYSTICK
A1
TURRET
02
02
02
02
02
02
208
08
33
32
13
14
19
10
04
208
20B20A
3030
3131
110B
110A
GND
28A
3B(48+)
02
02
81
81
OPTIONAL
LB2
WORK
LIGHT
LB3
WORK
LIGHT
LIGHT
S22
WORK
38A
R7=250 ohm
R8=250 ohm
34A
R11=250 ohm
R12=250 ohm
11
21
5
7
02
02
02
8C
EMERGENCY
S24
PUMP
0101
D42-1
D43-1
D36-1
D37-1
D41-1
D40-1
02
42A
36A
40A
04
04
4
1
5
3
7
2
PLATFORM LOAD SENSOR
162
162
60
02
60
ALARM
BP3
OVERLOAD
02118
02
02
PL5
OVERLOAD
0282
D118
118
82
82
118
02
162
60
60 60
49 02
A18 - Overload
162162
60CR
02
09
60
07
LS1
SENSING
DIRECTION
09 17
09 29 29A 59
LS2
RISER DN
LS3
BOOM DN
LS4
FLY IN
N/C N/C N/C
208
208
290
290
8B
ENABLE
S21
FUNCTION
10B 10A
162
PL6
LOW BATTERY
290
0404
204
04A
204
01A
31
59B
4
30B30B
30B
23
23
23
24
24
24
D
D
D
70
70
70
208CR
20860
9A
09
D10A
D8A
8A 8B
10A
8B
0202
3A(48+)
3C(48+)
SUPPR.
SUPPR.
08
04A
01A
204CR
20404
04
04B
BEEPER
BP4
SGE
02
04B
LB2
SGE BEACON
02
04B
2597A
60
59B 59B59B
6060
7A
7A
259CR
162CR
02162
10B
10
02
162A
10
PL7
OVERLOAD
02162A
6
40B
D13
13
72
D39
39
71
D38
38
72
73
23
24
25
26
27
28
29
30
31
32
33
34
35
36
37
38
39
40
41
42
43
44
45
46
47
48
49
50
51
52
53
54
55
56
57
58
59
60
61
62
63
64
65
66
67
68
69
70
71
72
73
74
75
76
77
78
79
80
81
82
83
84
85
86
87
88
89
90
91
92
93
94
95
96
97
98
99
100
101
102
1
2
3
4
5
6
7
8
9
10
11
12
13
14
15
16
17
18
19
20
21
22
BATTERY CHARGER
BATTERY TRAY - RIGHT SIDE
EMERGENCY PUMP
EMERGENCY PUMP CONTACTOR
POWER RELAY
PUMP MOTOR
DRIVE MOTOR - RIGHT
DRIVE MOTOR - LEFT
HORN
RELAY - TILT
TILT SWITCH
RELAY - BASE OVERLOAD
RELAY - BEEPER
RELAY - PLATFORM ENABLE
RELAY - SGE ALARM
RELAY - STOWED LIMIT
STEER - RIGHT
STEER - LEFT
BOOM - UP
BOOM - DOWN
TURRET - LEFT
TURRET - RIGHT
FLOW ENALE
RISER - DOWN
RISER - UP
FLY BOOM - EXTEND
FLY BOOM - RETRACT
PLATFORM LEVEL - UP
PLATFORM LEVEL - DOWN
POWER TO PLATFORM
SENSOR BAR
04
04A
SGE RESET SWITCH
04 01A
S25
D01
01
01A
N/C.H/O
L
L
R9=250 ohm
R13=680 ohm
162
02
R6=250 ohm
R10=250 ohm
2C
2A
2B
30B
R5=250 ohm
38B
34B
D7A
60
7A
D10
60
10
7A
3C(48+)
AT2 - Tilt Output
AT4 - Angle Sensor
AT1 - 12V Input
AT3 - Tilt Ground
13
3A(48+)
3B(48+)
3B(48+)
3B(48+)
3B(48+)
3C(48+)
3C(48+)
3C(48+)
3C(48+)
3A(48+)
H
HOUR METER
HM3 - CAN L
HM1 - Hour Meter +
HM3 - CAN H
HM1 - Hour Meter -
24+
BATTERY TRAY - LEFT SIDE
MAIN DISCONNECT
LEFT
MAIN DISCONNECT
RIGHT
FOOT
S6
SWITCH
8A
04
POSITION 11 - A
POSITION 1 - A
POSITION 2 - A
POSITION 3 - A
POSITION 4 - A
POSITION 5 - A
POSITION 1 - B
POSITION 4 - B
POSITION 22 - A
POSITION 5 - B
POSITION 23 - A
POSITION 6 - B
POSITION 3 - B
POSITION 14 - B
POSITION 7 - B
POSITION 8 - B
POSITION 15 - B
POSITION 16 - B
POSITION 9 - B
POSITION 9 - A
POSITION 10 - A
POSITION 24 - A
POSITION 7 - A
POSITION 6 - A
POSITION 14 - A
POSITION 15 - A
POSITION 8 - A
POSITION 12 - A
POSITION 13 - A
POSITION 21 - A
POSITION 20 - A
POSITION 17 - A
POSITION 16 - A
POSITION 12 - B
POSITION 13 - B
POSITION 18 - A
POSITION 19 - A
POSITION 11 - B
POSITION 10 - B
POSITION 2 - B
0202
BLUE/YELLOW
PURPLE/BLACK
RED
RED
BLUE/WHITE
RED/YELLOW/BLK
PINK/WHITE
PINK/PURPLE
BLACK/WHITE
BLUE/BLACK
PINK/BLACK
BLACK
ORANGE
GREEN/BLACK
GREEN/WHITE
ORANGE/BLUE
RED/GREEN
RED/WHITE
YELLOW/PINK
YELLOW/ORANGE
ORANGE/WHITE
ORANGE/BLACK
RED/PURPLE
WHITE/RED/BLK
BLACK
WHITE
GREEN
ORANGE
BLUE
RED
GREEN/WHITE
WHITE/BLACK
RED/BLACK
BLUE/WHITE
BLACK/RED
GREEN/BLACK
BLACK/WHITE
RED/WHITE
BLUE/BLACK
ORANGE/BLACK
3CCR
TO RM123C(48+)
MAIN CONTACTOR
48V - 12V DC-DC CONVERTER
48+
48+
48+
B-
DC-DC CONVERTER
3D
00
12V
48V
TO
59
28
60A
60A02
30
30A
60ACR
RISER - DOWN CUT OFF RELAY
60A
02
OPTIONAL
103
104
105
106
107
108
109
110
111
112
113
114
115
116
51CCR5
0251C
35
35A
02
35A
35A
35
POSITION 3 - C
GREEN
51C 51C
7A
7A
7A
7A
LS5B
7A
LS5C
7A
7A
LS5D
7A
LS5A
7A
7A
7A
51A
51A
51A
51A
51A
51A
51A
51A
5152A
52A
52B
52B
52A
52A
OPTIONAL
51CCR1
0251C
14A
14
51C
31A
31
51CCR2
0251C
02
51C
02
BOOM-UP CUTOFF RELAY
RISER - UP CUTOFF RELAY
02
02
39
51CCR3
0251C
02
FLY BOOM - EXTEND CUTOFF RELAY
51C
ANTI OVER-RISING RELAY 1
ANTI OVER-RISING RELAY 2
JIB - UP CUTOFF RELAY
60
OPTIONAL
02
04B
04B
02
WITH LIGHT
F1-10A
D48+
03
D59
D23
23A
D24
23A
24
23A
51CR
0251
51B
60
51ACR
0251A
51C
51B
60
60
60
60
60
02
02
8C
8B
51CCR4
0251C
51C
02
02
8C
D08B
8B
8B
8B
0201B
01BCR
D02-4
02
02
01
D01B-1
01B
01B
10
10
01B
D01B-2
162CCR
02162C
30B
30C
02
30
02
8CCR
028C
8C
8C
D01-2
D59-1
162C
D162-1
162C
D02-3
00
1 AMP
B+
D7A
D10
7C
7A
10
TRACK UNIT
TELEMATICS
9
7
8
3
4
2
01D
CAN H
CAN L
00
B+
01DCR
01D7C
7D
7C
01D
D02-5
7C
D7D
JMPR1
D01-3
TRACK UNIT TELEMATICS
NOTE A: JMPR1 REMOVED WITH TRACK UNIT OPTION
NOTE A
3B(48+)
01A
01A
01
01A
7D
IEC 9.1
M207305AI
AD
3.32 Electrical Schematic - KC
3.32 Electrical Schematic - KC

Table of Contents

Related product manuals