EasyManua.ls Logo

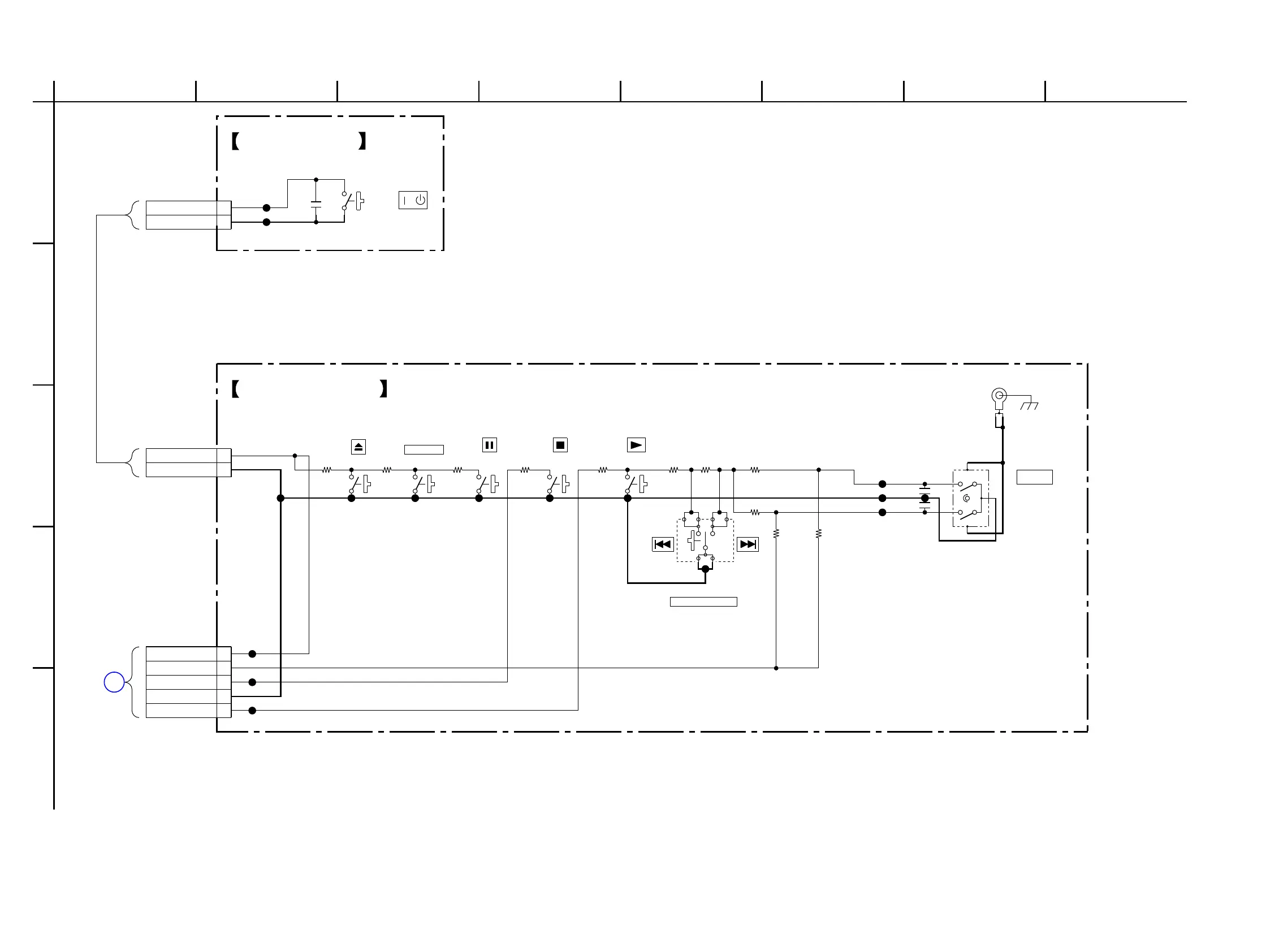
Sony HCD-DZ280 - Schematic Diagram -SWITCH Section

Sony HCD-DZ280
102 pages
Print Icon
To Next Page IconTo Next Page
To Next Page IconTo Next Page
To Previous Page IconTo Previous Page
To Previous Page IconTo Previous Page
Loading...
HCD-DZ280/DZ680/HDZ284/HDZ485
HCD-DZ280/DZ680/HDZ284/HDZ485
5656
CN5000
BOARD
FL-JACK
D
S5109
CL5108
S51012.2k
R5114
S5103
CL5109
S5102 2.2k
R5123
1
2
2P
CN5100
GND
KEY0
CL5107
1k
R5122
0.01
C5111
0.01
C5112
2.2k
R5124
S5100
S5113
1k
R5113
2.2k
R5115
2.2k
R5116
10k
R5125
4.7k
R5128
22k
R5126
4.7k
R5127
CL5103
CL5104
CL5105
1
2
3
4
5
5P
CN5101
KEY0
3.3V
KEY1
D_GND
KEY2
E
ET5110
S5111
1
2
2P
CN5400
GND
P-SW
CL5400
100p
C5400
CL5401
S5400
VOLUME
KEY-SW BOARD
P-SW BOARD
/
86
C
7
E
5
B
42
D
A
13
FUNCTION
OPERATION DIAL
(CHASSIS)
6-24. SCHEMATIC DIAGRAM – SWITCH Section –
(Page 55)

Table of Contents

Related product manuals