EasyManua.ls Logo

Sony KV-27FS13 - Parental Control

Sony KV-27FS13
301 pages
Print Icon
To Next Page IconTo Next Page
To Next Page IconTo Next Page
To Previous Page IconTo Previous Page
To Previous Page IconTo Previous Page
Loading...
KV-27FS13/ 27FS17/ 27FV17/ 29FV17/ 29FV17C/ 32FS13/ 32FS17/ 34FS13C/ 34FS17
— 28 —
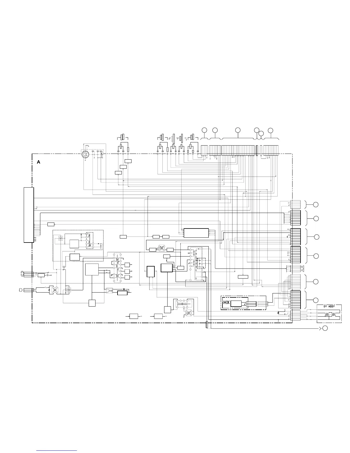
BLOCK DIAGRAM (4 OF 6) (KV-27FV17/29FV17/29FV17C ONLY)
BA5-911-FV-BD
1
2
3
4
5
6
7
8
9
1
0
1
1
1
2
1
3
1
4
1
5
1
6
1
7
1
8
1
9
2
0
1
2
3
4
1
3
2
4
6
1
2
1
2
3
1
2
3
4
5
6
7
8
9
10
1
2
3
4
5
6
7
8
9
10
1
2
3
4
5
6
7
8
9
1
2
3
4
5
6
7
8
9
1
3
4
7
8
9
1
0
1
2
3
4
1
2
3
4
5
6
7
8
9
1
2
3
4
5
1
2
3
4
V
L
R
S
1
2
3
4
1
2
3
4
5
7
8
9
10
11
12
14
15
16
17
13
18
1
2
4
3
1
2
3
4
5
6
1
2
3
4
5
1
2
3
1
2
3
1
2
3
4
5
6
7
1
2
3
4
5
6
7
8
9
10
11
C
N
4
6
0
T604
RY601
RY602
C636
D622
VDR601
D605
R645
T505
T501
CN602
CN603
CN2005
CN2006
CN2007
C
N
2
0
0
8
T503
C
N
3
0
1
J201
D626
F601
T602
T603
PH600
CN501
T504
CN4001 CN2003
C
N
5
1
5
CN2001
CN406
CN503
CN2004
SRT
:STAND BY
DGC RELAY
RELAY
AC POWER
D4SB60L-F
AC RECT
D4SB60L-F
AC RECT
10k
FBT
S-VIDEO
PHOTOCOUPLER
VIDEO
MAIN1
ST LED
I-STEREN
SAP LED
I-SAP
MODE
O-SAP
F MONO
O-MONO
GND
MAIN2
AFT OUT
AFT
RF AGC
AGC MUTE
AGC
Q101
9V
30V
5V
L OUT
DE-EM OUT
R OUT
M
U
T
E
VOL-CTRL
Q410
T
V
-
L
T
V
-
R
V
2
-
L
V
2
-
R
CLOCK
DATA
V
1
-
R
V
1
-
L
Y
U
V
-
R
Y
U
V
-
L
A
U
D
I
O
L
R
G
N
D
9
V
O
U
T
-
R
O
U
T
-
L
SPK R+
SPK R-
SPK L+
SPK L-
GND
GND
V1
V
M
1
3
4
5
6 8
9
STANDBY CIRCUIT
D623
Q606
PROTECT
Q605
CONVERTER
SWITCH
Q608
STBY DRIVE
Q607
R
E
L
A
Y
DGC
DGC
DGC
DGC DRIVER
Q609
D
G
C
D
VIN
S
OCP/FB
+B
FV
G2
5
6
9
8
7
2
4
1
0
0
11
DF
HV
H OUT
Q502
H DRIVE
Q501
HD
H
P
EW
PIN DRIVE
PIN OUT
Q504
Q503
I-HLDWN
VD+
G
N
D
I
-
P
R
O
T
S
T
B
Y
7
.
5
V
VD-
ABL
DET-OUT
CONVERTER
IC601
5V REG
IC604
9V REG
IC603
ERROR AMP
IC602
IC501
V HOLD
CNTRL
V OUT
IC502
SPR
SPL
+
+
AC IN
TU101
M
O
N
-
L
M
O
N
-
R
V
A
R
/
F
I
X
-
R
V
A
R
/
F
I
X
-
L
S
P
S
W
MONITOR
V3
9V
30V
5V
SET5V
SET9V
30V
9V
STBY 7.5V
CN502
V
3
-
L
V
3
-
R
PIP-L
IR(SENSOR)
POWER-SW
LED-TIMER
GND
V DY+
V DY-
H DY-
H DY-
H DY+
H DY+
Y
C
B
C
R
A
U
D
I
O
I
N
P
U
T
VOL-CTRL
Q411
AUDIO AMP
NC
V
I
D
E
O
A
U
D
I
O
L
R
J
2
0
3
R
E
A
R
A
/
V
SET9V SET9V
J
2
0
5
A
U
D
I
O
L
R
J
4
0
2
R
E
A
R
V
A
R
/
F
I
X
POWER-SW
GND
KEY-SW
SWITCHES
FUNCTION
POWER-SW
GND
KEY-SW
TP507
TP508
TP 506
200V
A
U
D
I
O
Y
-
T
O
-
Y
U
V
C
R
C
B
G
N
D
V DY(+)
V DY(-)
H DY(-)
H DY(+)
Y
P
B
P
R
J
2
0
6
Y
,
P
R
,
P
B
I
N
P
U
T
I
N
P
U
T
+B 9V
D
F
C
N
5
0
4
LOW B LOW B5V 9V
LOW B
AUDIO
LOW B
VCC
+B
RECT
+B
RECT
LOW B
RECT
AUDIO
O
U
T
P
U
T
(POWER SUPPLY)
(DEFLECTION)
(TUNER/IF)
(AUDIO)
(MTS)
(KEY)
IC402
MUTE
IN1+
IN2+
IN3+
IN4+
AC IN
AC
AC
M
U
T
E
N
C
9
V
1
3
5
V
N
C
G
N
D
G
N
D
H
P
V
D
+
V
M
RELAY DRIVE
Q604
SW
Q506,507
SW
Q603
Q601,602
D
R
I
V
E
+
OUTREF
D
R
I
V
E
-
IN+1
IN-1
O
U
T
1
OUT2
IN+2
OCP
Q505
OUT1+
OUT3-
OUT4+
OUT2-
1
ABL
H
1
C
N
5
0
6
J
2
0
4
M
O
N
I
T
O
R
O
U
T
P
U
T
V
I
D
E
O
A
U
D
I
O
L
R
BUFFER
Q201
BUFFER
Q402
BUFFER
Q401
MUTE
Q205,206
GND
Y2
C2
GND
GND
NC
FRONT V
FRONT Y
FRONT C
FRONT R
FRONT L
MENU SW
GND
IR SENSOR
STBY 5V
LED-TIMER
LED-MPWR
Y
C
H
E
A
T
E
R
6
Y1
C1
SDAT
SET9V
30V
SET5V
SCL
STBY
+5V
STBY
+5V
V2(VIDEO2)
STBY +5V
KEY-SW
MENU-SW
A
B
C
D
E
F
G
H
I
J
K
L
M

Table of Contents

Related product manuals