EasyManua.ls Logo

Sony STR-DN1060 - 6-2. Block Diagram - Digital Section (1;2)

Sony STR-DN1060
158 pages
Print Icon
To Next Page IconTo Next Page
To Next Page IconTo Next Page
To Previous Page IconTo Previous Page
To Previous Page IconTo Previous Page
Loading...
STR-DN860/DN1060
STR-DN860/DN1060
3636
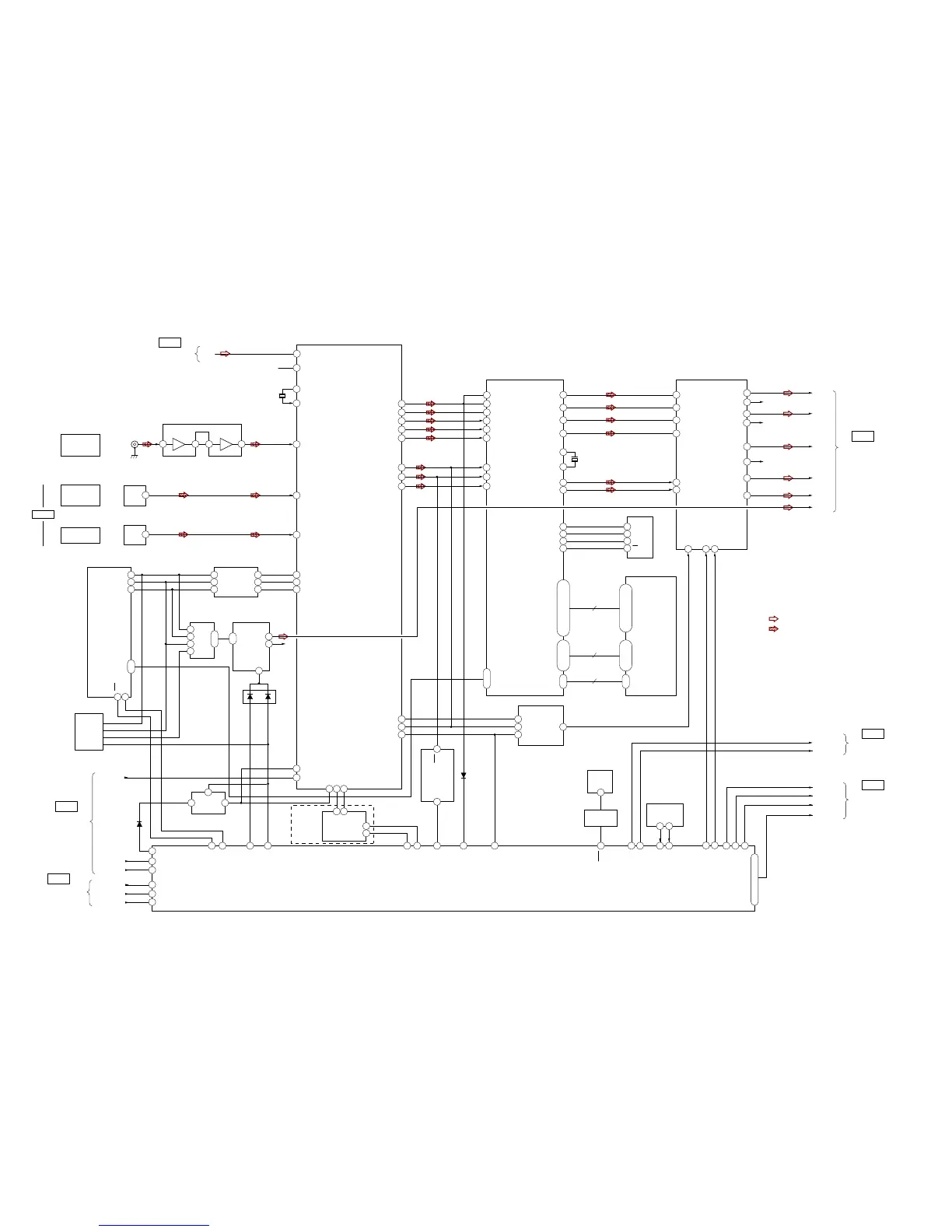
6-2. BLOCK DIAGRAM – DIGITAL Section (1/2) –
DQ0-DQ15
147-150,152,154-155,157,
161-163,165-168,170
2,4-5,7-8,10-11,13,42,
44-45,47-48,50-51,53
6,9-13,16-17,
20-21,26,30
23-26,29-34,
22,35
ADDR0-ADDR11
ADDR17-ADDR18
20-21
32,35
89,98,99
A0-A11
CLOCK
MULTIPLIER
IC6006
DATA0-DATA15
BA0-BA1
4,5,6
152,155,158,154,153,159
1-4
4,7,9,12
L-IN
R-ch
R-CH
J6000
X2500
25MHz
44
45
73
94
86
X6000
24.576MHz
CLKIN
SBL/SBR_OUT
SL/SR_OUT
C/SW1_OUT
L/R_OUT
24
XTAL2
25
BCLK_OUT
98
LRCLK_OUT
99
MOSI
38
SPICLK
40
MISO
39
DSP_CS
43
31
32
1
VOUT
52
YB
A
DIGITAL OPTICAL RECEIVER
IC1230
DIGITAL AUDIO
INTERFACE RECEIVER
IC6002
WAVE SHAPER
IC6001
DSP
IC6501
63
62
XOUT
RXIN1
RXIN2
3
MCKIN
4
BCKIN
5
LRCKIN
10
MPIN4
60
RXIN4
MTK_ZONE2_RST
1
VOUT
DIGITAL OPTICAL RECEIVER
IC1231
51 RXIN1A
XIN
SYSTEM CONTROLLER
IC3002 (2/4)
45
128
129
DAC_IIC_SCL
DAC_IIC_SDA
SCK
3
MC/SCL/DEMP
MD/SDA/MUTE
DATA4
DATA3
FL
R-CH
VOUT1
VOUT2
VOUT5
VOUT6
VOUT3
VOUT4
13
26
27
6
7
BCK
LRCK
8
MPOUT1
MPOUT4
DATAOUT
19
SL/SR_IN
A/D_2CH
DIR_IN
L/R_IN
74
MPOUT2
20
16
22
103
100
96
C/SW_IN
95
MPOUT3
21
SBL/SBR_IN
101
STEREO D/A CONVERTER
IC6000
DATA2
SL
R-CH
19
20
DATA1
C
22
SW
AOUTL
SPARTA_RST
RG_RX_RST
SWSEL_A1
SWSEL_B1
SW+5V
FLASH
21
ADINL
ADINR
12
VOUT7
VOUT8
15
16
SBL
11
BINARY
COUNTER
IC6004
MUTE SELECTOR
IC6005
SD-RAM
IC6500
D6003
D501
FS_RATE
1CK2QD
88
6LJQDOSDWK
: AUDIO
: AUDIO (DIGITAL)
5FKLVRPLWWHGGXHWR
VDPHDV/FK
5
23
6
MCKOUT
13
MCLK_IN
92
LRCKOUT
15
LRCLK_IN
97
BCKOUT
14
BCLK_IN
75
MUTEB
MCKOUT 13
XMCK 30
24
BY
SELECT
25
A1
6
MPIN5
11
MCKOUT
13
BCKOUT
14
ARC_SPDIF
CEC_PCONT
V_COM_MUTE
V_SEL_MUTE
V_SEL_SW2
SIGNAL SELECTOR (MUTING)
IC6003
SRC
IC6007
8
1
100
DIR_SIGNAL
112
DIR_CKST
111
SERIAL FLASH
IC6502
CLK
6
DO(IO1)
2
CS1
DI(IO0)5
EEPROM
IC3000
20 21
E2P_SDA
E2P_SCL
18 17
SWSEL_B
SWSEL_A
172
SW_+5V
COAXIAL
SA-CD/CD
(ASSIGNABLE) IN
IN 1
(SAT/CATV
ASSIGNABLE)
IN 2
(TV ASSIGNABLE)
OPTICAL
16
12
2
2
RCKI
24
LRCKO
25
BCKO
LRCKI
BCKI
SDIN
SIGNAL SELECTOR
IC6008
4
1Y
7
2Y
9
2
11
5
3Y
1A
3A
2A
SIGNAL SELECTOR
IC8002
BD DECODER
IC101 (1/3)
3
6
10
1B 4Y
3Y
2Y
1Y
2B
3B
13
4B
STEREO D/A
CONVERTER
IC8000
10
11
AOUTR
MCLK,
BICK,
SDTI,
LRCK
AOUTL
9
M1
10
M0
43
RG_TX_RESET
RG_TX_RST
162
HDMI_MUTE
175
V_SEL_SW265
V_COM_MUTE70
V_SEL_MUTE71
>001B
ANALOG AUDIO
SECTION
(Page 35)
>003B
ANALOG AUDIO
SECTION
(Page 35)
>006B
DIGITAL VIDEO
(Page 40)
>007B
DIGITAL
SECTION (2/2)
(Page 37)
>004B
DIGITAL
SECTION (2/2)
(Page 37)
>005B
ANALOG VIDEO/
USB SECTION
(Page 39)
CLK_IN
5
CLK_OUT
3
56
RESET
IC3001
1
SMUTE
6
RST
13
MUTE
14
A24
B27
A27
AOMCLK
AOLRCK
AOSDATA4
D4
GPIO18
JITTER_REMOVER_M1
102
JITTER_REMOVER_M0
101
42 28
MTK_ZONE2_MUTE
BT_TX_MUTE
MTK_MUTE
1
139
BT_TX_RATECON_RST
77
DN1060
R-ch
RESET SW
Q3010
57
INITX
167
SPARTA_RST
149
RG_RX_RESET

Table of Contents

Other manuals for Sony STR-DN1060

Related product manuals