EasyManua.ls Logo

Sony VPL-CH355 - Page 71

Sony VPL-CH355
81 pages
Print Icon
To Next Page IconTo Next Page
To Next Page IconTo Next Page
To Previous Page IconTo Previous Page
To Previous Page IconTo Previous Page
Loading...
71
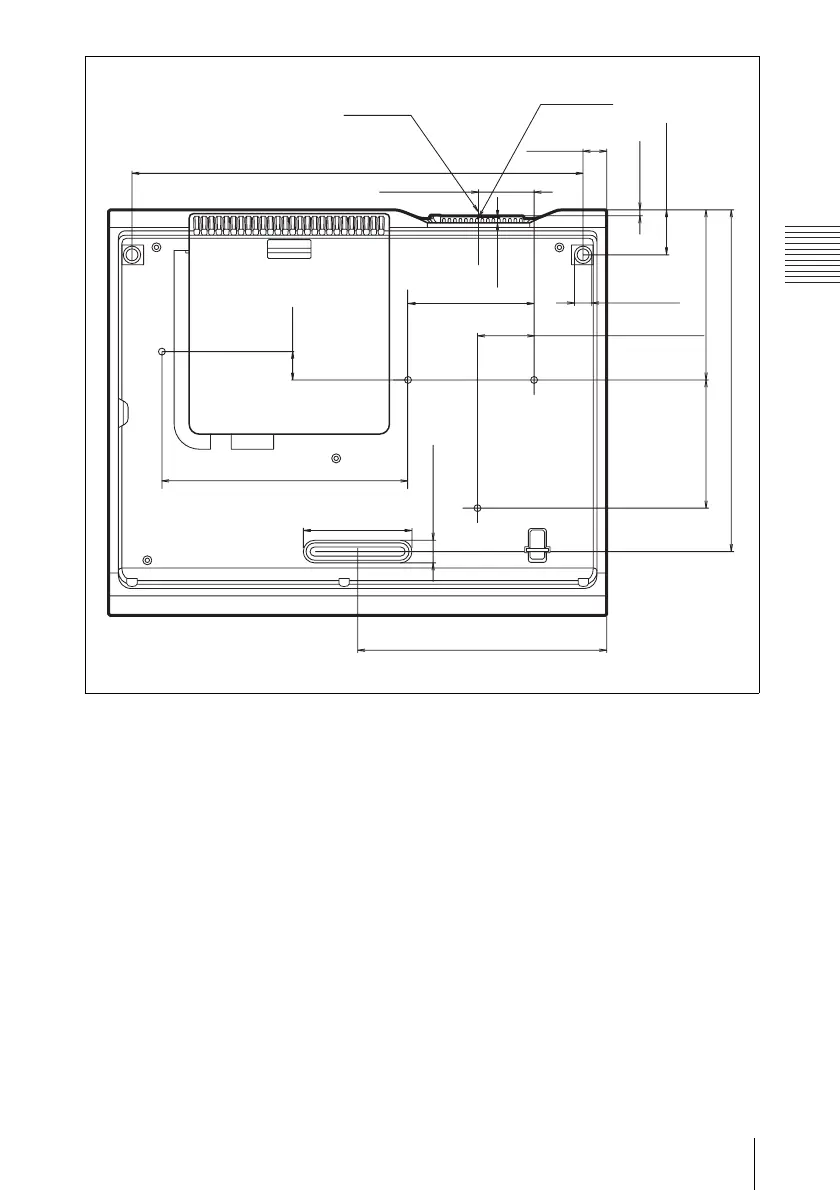
Dimensions
Others
Unit: mm (inches)
Bottom
Center of the lens
Edge of the lens
368.0 (14
1
/2)
19.0 (
3
/4)
45.3 (1
25
/32)
4.7 (
3
/16)
104.5 (4
1
/8) 138.5 (5
7
/16)
278.5 (10
31
/32)
46.1 (1
13
/
16
)
13.9 (
9
/16)
102.7 (4
1
/32)
18.4 (
23
/32)
88.4 (3
15
/32)
36.5 (1
7
/16)
203.1 (8)
199.5 (7
27
/32)
23 (
29
/32)

Table of Contents

Other manuals for Sony VPL-CH355

Related product manuals