EasyManua.ls Logo

Sony VPL-V W100 - Installation du Projecteur et Dun Écran

Sony VPL-V W100
259 pages
Print Icon
To Next Page IconTo Next Page
To Next Page IconTo Next Page
To Previous Page IconTo Previous Page
To Previous Page IconTo Previous Page
Loading...
13
FR
Étape 1 : Installation du projecteur
Connexions et préparatifs
La distance qui doit séparer le projecteur de l’écran lors de l’installation varie
suivant la taille de l’écran.
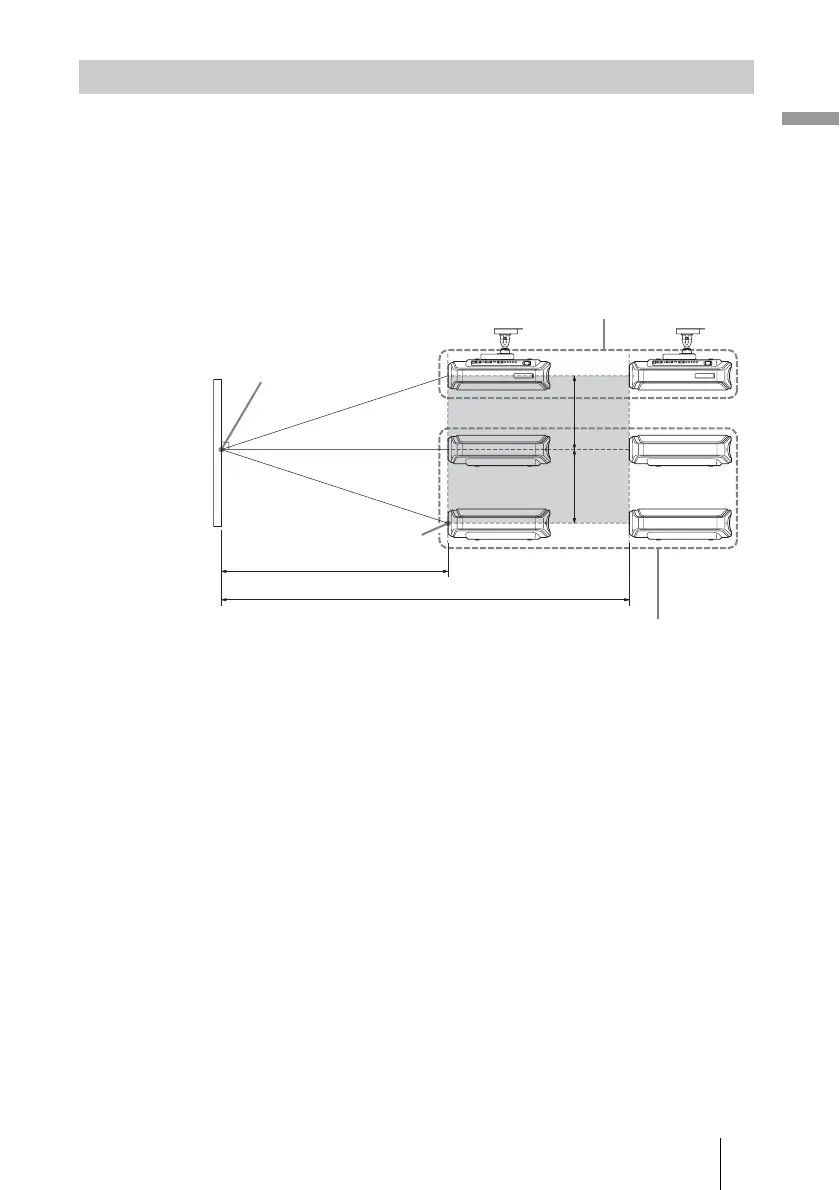
1 Déterminer la position d’installation du projecteur et de l’écran.
Vous pouvez obtenir une bonne qualité d’image en plaçant le projecteur
avec le centre de l’objectif à l’intérieur des zones indiquées en gris dans
l’illustration. Utiliser les valeurs a, b et c dans le tableau de la page 14
comme guide.
a : Distance de projection minimale entre l’écran et le centre de l’objectif
du projecteur
b : Distance de projection maximale entre l’écran et le centre de l’objectif
du projecteur
c : Distance verticale entre le centre de l’écran et le centre de l’objectif du
projecteur lors de l’utilisation avec la fonction de déplacement vertical
de l’objectif réglée au maximum vers le haut
Pour plus d’informations sur la fonction de déplacement de l’objectif, voir
« Étape 3 : Réglage de la taille et de la position de l’image ». (1 page 20)
Installation du projecteur et d’un écran
Centre de l’objectif
du projecteur
a
b
c
Centre de l’écran
c
Installation au plafond
Installation sur le
plancher

Table of Contents

Related product manuals