EasyManua.ls Logo

Spirax Sarco LC2650 - Page 22

Spirax Sarco LC2650
68 pages
Print Icon
To Next Page IconTo Next Page
To Next Page IconTo Next Page
To Previous Page IconTo Previous Page
To Previous Page IconTo Previous Page
Loading...
IM-P402-128 EMM Issue 7
22
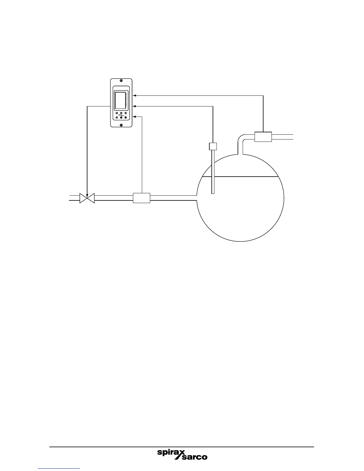
Three element control
Under certain conditions where the boiler feedwater pressure varies considerably, perhaps
due to other boilers drawing water, three-element control is used. A water flowmeter is added
to compensate for variations in flow due to pressure variations.
Fig. 11 Three element control
OK
LC2650
100
50
0
%
SP
PV
AL
Steam meter
Level probe
Motorised
KE / EL valve or
Pneumatic valve
Water
flowmeter

Related product manuals