EasyManua.ls Logo

Supermicro PDSBA - IDE Enable;Disable; TPM Enable

Supermicro PDSBA
86 pages
Print Icon
To Next Page IconTo Next Page
To Next Page IconTo Next Page
To Previous Page IconTo Previous Page
To Previous Page IconTo Previous Page
Loading...
2-22
PDSBA-Q+/PDSBA+/PDSBA/PDSBE User's Manual
S
UPER PDSBA+
®
Processor
JPWAKE
4-PinPWR
KB/MS
USB3/4/5/6
USB1/2
LAN
Fan3
Clock
Intel
North Bridge
PCI-E x1
PCI-E x16
PCI-E x4
PCI-33MHz
LAN
CTRL
JPL1
COM2
FWH
JL1
JWOR
I-SATA0
I-SATA1
F
P CTRL
Fa
n2
Buzzer
24
-Pin AT
X
PWR
Super IO
Fan1/CPU Fan
Intel
J44
DIMM#1A (Blue)
DIMM#2A (Black)
DIMM#1B (Blue)
DIMM#2B (Black)
Floppy
Audio
WOL
JBT1
South Bridge
J12
Battery
JPUSB1
J
PUSB2
COM1
J
F
SB1
J
FSB2
Slot7
Slot6
Slot5
Slot4
JI
2
C1
JI
2
C2
PCI-33MHz
Slot3
PCI-33MHz
Slot2
Slot1
PCI-33MHz
J
9
I-SATA4
I-SATA5
RAIDLED
USB7/8
J45
USB9/10
LE1
JLED
JWD
CD1
Parallel Port
VGA
HDA
IDE#2
IDE#1
ITE
JP
2
JP3
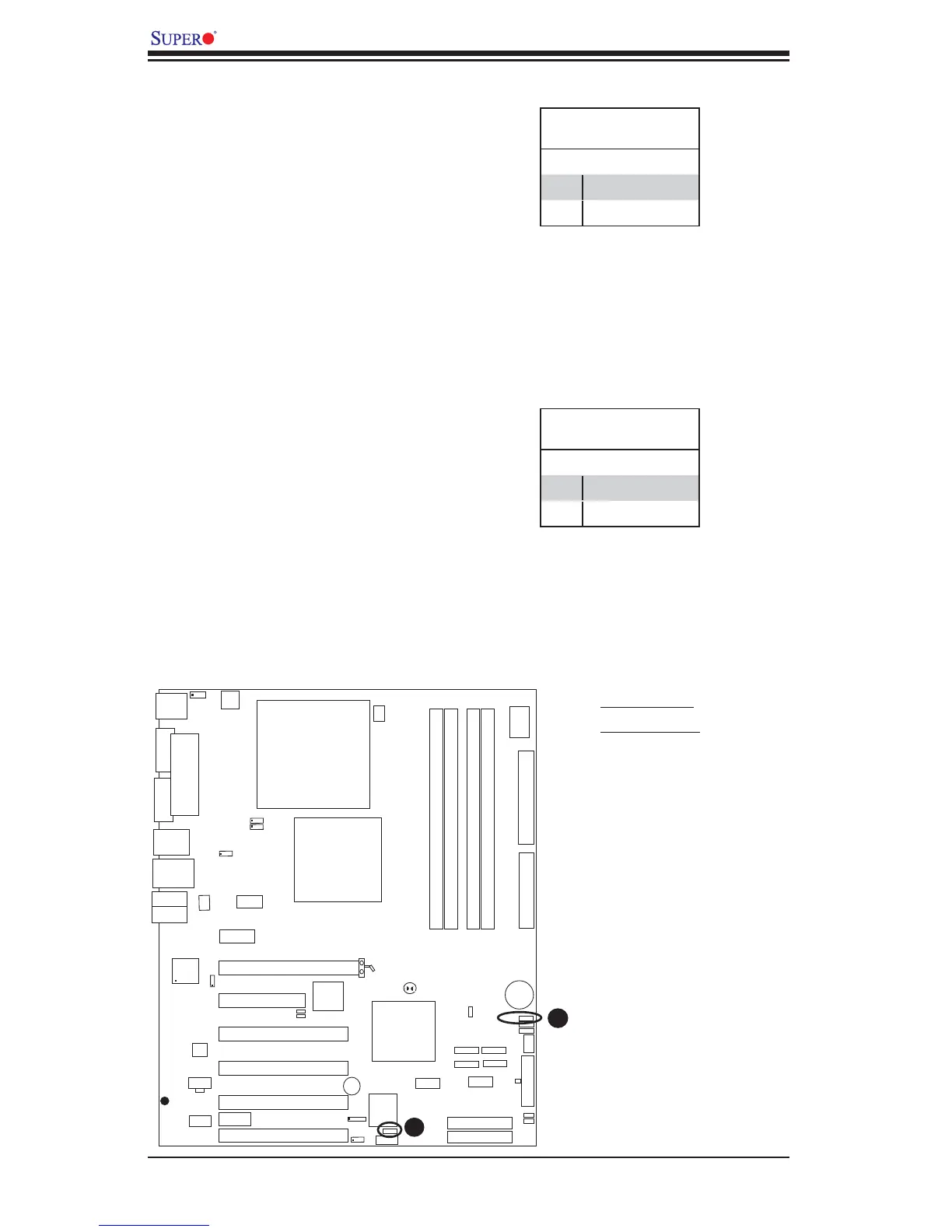
IDE Enable/Disable (*PDSBA-
Q+/PDSBA+ only)
JP2 enables or disables IDE#1 and
IDE#2 on the motherboard. See the
table on the right for jumper settings.
The default setting is enabled.
IDE Enable
Pin# Defi nition
1-2 Enabled (*default)
2-3 Disabled
TPM Enable (*PDSBA/PDSBA-
Q+/PDSBA+ only)
JP3 enables or disables Trust Platform
Module (Management) on the mother-
board. See the table on the right for
jumper settings. The default setting
is enabled.
TPM Enable
Pin# Defi nition
1-2 Enabled (*default)
2-3 Disabled
A
B
A. IDE Enable
B. TPM Enable

Table of Contents

Related product manuals