EasyManua.ls Logo

Texas Instruments Metawatch MSP-WDS Series - MSP-FET USB Debugger, Schematic (2 of 5)

Texas Instruments Metawatch MSP-WDS Series
51 pages
Print Icon
To Next Page IconTo Next Page
To Next Page IconTo Next Page
To Previous Page IconTo Previous Page
To Previous Page IconTo Previous Page
Loading...
MSP-FET Rev 1.2
3/12/2014
5
1
A
2
Rev
3
2
F
NumberSize
EDCBA
1
3
Title
1
2
4
F
ofSheet
E
Date
DCBA
4
C
3/12/2014
VCC_PUMP VCC_JTAG
FPGA
1
GND
2
GAA2/IO51RSB1
3
IO52RSB1
4
GAB2/IO53RSB1
5
IO95RSB1
6
GAC2/IO94RSB1
7
IO93RSB1
8
IO92RSB1
9
GND
10
GFB1/IO87RSB1
11
GFB0/IO86RSB1
12
VCOMPLF
13
GFA0/IO85RSB1
14
VCCPLF
15
GFA1/IO84RSB1
16
GFA2/IO83RSB1
17
VCC
18
VCCIB1
19
GEC1/IO77RSB1
20
GEB1/IO75RSB1
21
GEB0/IO74RSB1
22
GEA1/IO73RSB1
23
GEA0/IO72RSB1
24
VMV1
25
GNDQ
26
GEA2/IO71RSB1
27
FF/GEB2/IO70RSB1
28
GEC2/IO69RSB1
29
IO68RSB1
30
IO67RSB1
31
IO66RSB1
32
IO65RSB1
33
IO64RSB1
34
IO63RSB1
35
IO62RSB1
36
IO61RSB1
37
VCC
38
GND
39
VCCIB1
40
IO60RSB1
41
IO59RSB1
42
IO58RSB1
43
IO57RSB1
44
GDC2/IO56RSB1
45
GDB2/IO55RSB1
46
GDA2/IO54RSB1
47
TCK
48
TDI
49
TMS
50
VMV1
51
GND
52
VPUMP
53
NC
54
TDO
55
TRST
56
VJTAG
57
GDA1/IO49RSB0
58
GDC0/IO46RSB0
59
GDC1/IO45RSB0
60
GCC2/IO43RSB0
61
GCB2/IO42RSB0
62
GCA0/IO40RSB0
63
GCA1/IO39RSB0
64
GCC0/IO36RSB0
65
GCC1/IO35RSB0
66
VCCIB0
67
GND
68
VCC
69
IO31RSB0
70
GBC2/IO29RSB0
71
GBB2/IO27RSB0
72
IO26RSB0
73
GBA2/IO25RSB0
74
VMV0
75
GNDQ
76
GBA1/IO24RSB0
77
GBA0/IO23RSB0
78
GBB1/IO22RSB0
79
GBB0/IO21RSB0
80
GBC1/IO20RSB0
81
GBC0/IO19RSB0
82
IO18RSB0
83
IO17RSB0
84
IO15RSB0
85
IO13RSB0
86
IO11RSB0
87
VCCIB0
88
GND
89
VCC
90
IO10RSB0
91
IO09RSB0
92
IO08RSB0
93
GAC1/IO07RSB0
94
GAC0/IO06RSB0
95
GAB1/IO05RSB0
96
GAB0/IO04RSB0
97
GAA1/IO03RSB0
98
GAA0/IO02RSB0
99
IO01RSB0
100
IO00RSB0
U2
A3PN125-VQG100
R4
1k
R5
1k
1 2
L3
33n
+
C19
10uF/6.3V
C20
100n
C21
10n
C22
100n
C34
10n
C35
100n
C36
10n
C37
100n
C38
10n
C39
100n
C40
10n
C41
100n
C42
10n
C43
100n
C44
10n
C45
100n
C46
10n
C47
100n
C48
10n
C49
100n
C50
10n
C51
100n
C52
10n
R44 27R
1
111
1
1 1 1
1
1
1
1
1
1
1 1 1
VCC_PLF
VCC_POD15
VCC_POD15
VCC_POD15
VCC_POD15
VCC_POD33
VCC_POD33
VCC_POD33
VCC_POD33
VCC_POD33
VCC_POD33
VCC_POD33
VCC_POD33
VCC_POD33
FPGA_TCK
FPGA_TDI
FPGA_TMS
FPGA_TRST
MCU_DMAE0
MCU_P2.2
MCU_P2.3
MCU_P2.4
MCU_P2.5
MCU_P2.6
MCU_P1.0
MCU_P1.1
MCU_P1.2
MCU_P1.3
MCU_P1.4
MCU_P1.5
MCU_P1.6
MCU_P1.7
MCU_P3.0
MCU_P3.1
MCU_P3.2
MCU_P3.3
MCU_P3.4
MCU_P3.5
MCU_P3.6
MCU_P3.7
MCU_P4.0
MCU_P4.1
MCU_P4.2
MCU_P4.3
MCU_P4.4
MCU_P4.5
MCU_P4.6
MCU_P4.7
MCU_P8.1
MCU_P8.2
MCU_P8.3
FPGA_IO_TCK
FPGA_DIR_CTRL_TCK
FPGA_IO_TMS
FPGA_DIR_CTRL_TMS
FPGA_IO_TDI
FPGA_DIR_CTRL_TDI
FPGA_IO_TDO
FPGA_DIR_CTRL_TDO
MCU_P2.7
FPGA_DIR_CTRL_RST
FPGA_IO_TEST
FPGA_DIR_CTRL_TEST
FPGA_IO_UART_TXD
FPGA_DIR_CTRL_UART_TXD
FPGA_IO_UART_RXD
FPGA_DIR_CTRL_UART_RXD
FPGA_IO_UART_CTS
FPGA_DIR_CTRL_UART_CTS
FPGA_IO_UART_RTS
FPGA_DIR_CTRL_UART_RTS
FPGA_TDO
FPGA_RESET
VCC_POD15
VCC_POD15
VCC_POD33
VCC_PLF VCC_POD33 VCC_POD33
FPGA_IO_RST
FPGA_TP0
FPGA_TP1
FPGA_TP2
MCU_P9.5
MCU_P2.1
www.ti.com
Debug Probes Hardware and Software
23
SLAU647FJuly 2015Revised December 2016
Submit Documentation Feedback
Copyright © 2015–2016, Texas Instruments Incorporated
MSP Debuggers
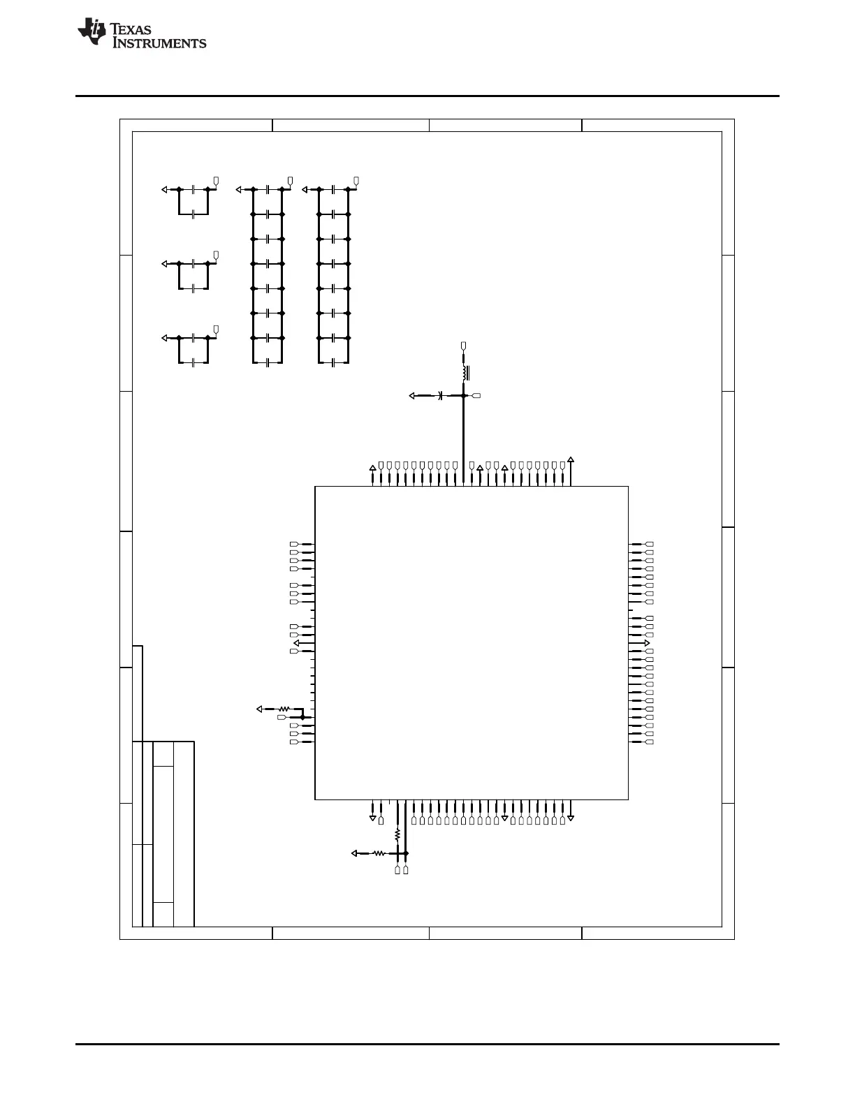
Figure 17. MSP-FET USB Debugger, Schematic (2 of 5)

Related product manuals