EasyManua.ls Logo

Toshiba RAS-10KHP-E3 - 5-3. RAS-07 UKHP-E3; RAS-07 UAH-E3 Refrigeration Cycle

Toshiba RAS-10KHP-E3
89 pages
To Next Page IconTo Next Page
To Next Page IconTo Next Page
To Previous Page IconTo Previous Page
To Previous Page IconTo Previous Page
Loading...
24
FILE NO. SVM-04004
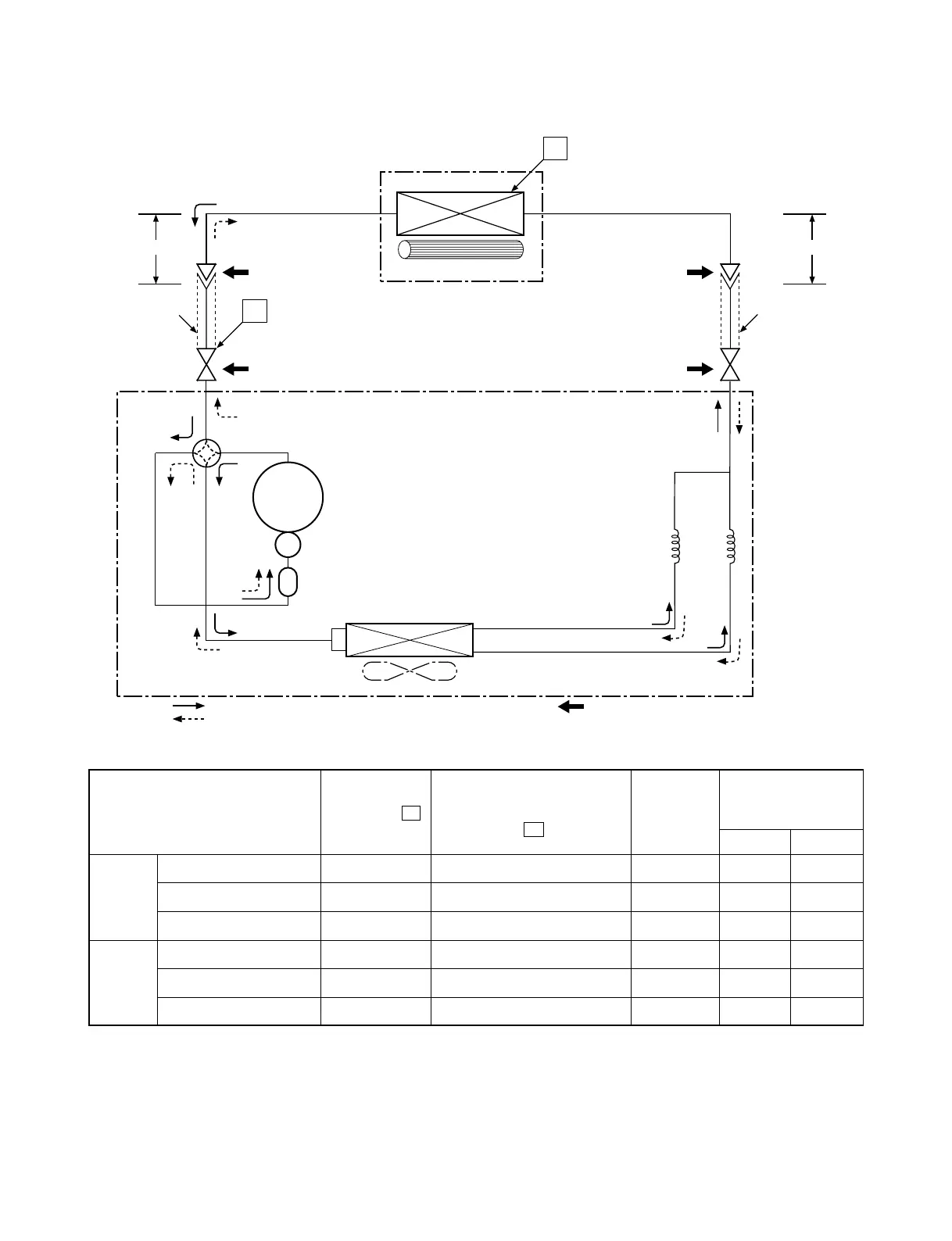
5-3. RAS-07UKHP-E3 / RAS-07UAH-E3
Indoor unit
Cross flow fan
Cooling
Heating
4-way valve
Heating
Cooling
Compressor
Condenser
Propeller fan
Outdoor unit
PH80T1-4C
Cooling
Heating
Mark( )means check points of Gas Leak.
O.D.:9.52mm O.D.:6.35mm
Cooling
Heating
Packed valve
(9.52)
Packed valve
(6.35)
0.39m
(Connecting pipe)
9.52
0.49m
(Connecting pipe)
6.35
T1
P
Refrigerant
R-22 : 0.62 kg.
Accumulator
Evaporator
Capillary tube
1.0x800S
(2 pcs.)
Standard 1.35 35.0 High 20/ 7/6
Heating Overload 1.85 49.0 Low 27/ 24/18
Low temperature 1.10 30.0 High 20/––10/10
Standard 0.58 12.0 High 27/19 35/24
Cooling Overload 0.67 16.0 High 32/23 43/26
Low temperature 0.50 2.0 Low 21/15 21/15
Note :
Measure the heat exchanger temperature at the center of U-bend. (By means of TC sensor)
50Hz
Standard
pressure P
(MPaG)
Surface temp. of heat
exchanger interchanging
pipe T1 (°C)
Fan speed
(indoor)
Ambient temp.
conditions DB/WB
(°C)
Indoor Outdoor

Table of Contents

Related product manuals