EasyManua.ls Logo

Trane IntelliPak 1

Trane IntelliPak 1
164 pages
To Next Page IconTo Next Page
To Next Page IconTo Next Page
To Previous Page IconTo Previous Page
To Previous Page IconTo Previous Page
Loading...
26
RT-SVX072A-EN
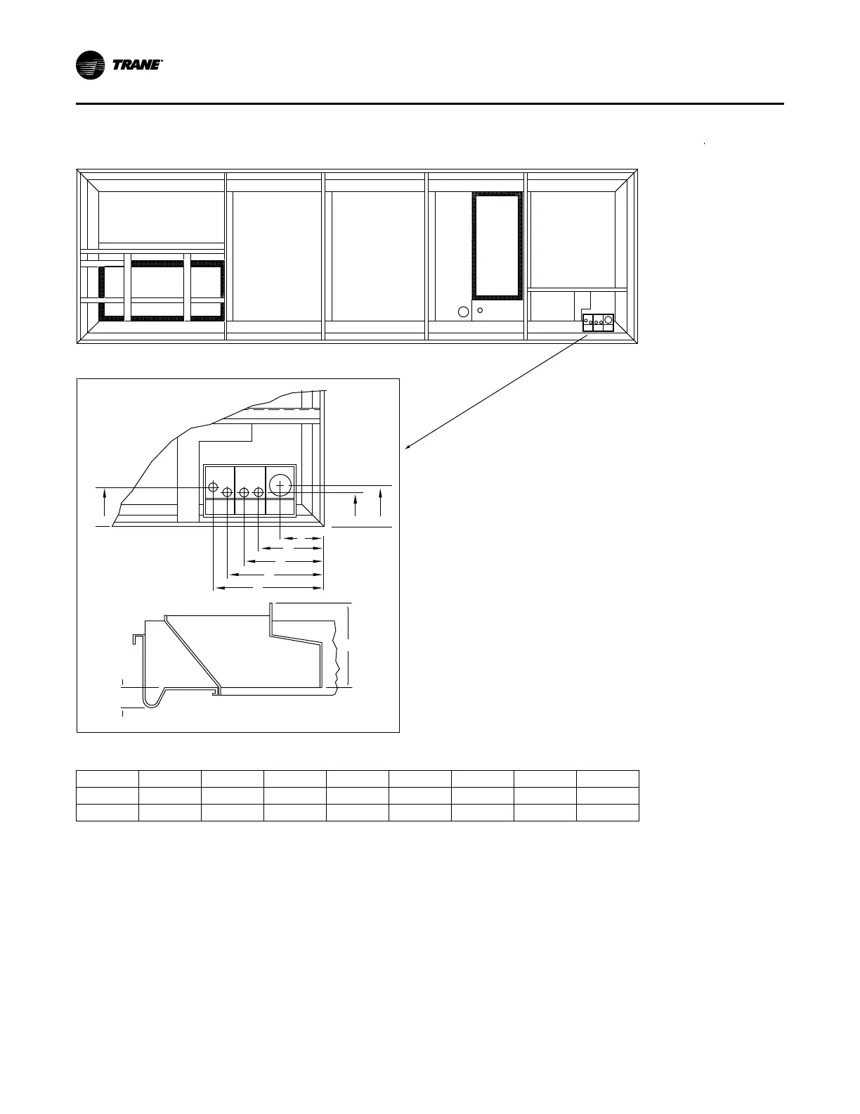
Figure 8. Electrical entrance dimensions, SEH_, SFH_, SLH_, SXH_ units (20 to 75 tons)
LG
5⅛"
Unit Base
Electrical Entrance
E
D
CB
A
K
M
J
N
H
F
Electrical Entrance End View
Legend
A, B, C, D = 1⅛" diameter hole for field-installed control
wiring
E =
4⅛" or 5⅝" diameter hole for main power wiring
(Remove the 4⅛" hole plate when 5⅝" access is required)
Note:
4⅛" diameter hole on 20-55T units only
4⅛" and 5⅝" diameter hole on 60-75T units only
1⅝"
Table 10. Electrical entrance dimensions, SEH_, SFH_, SLH_, SSH_, SXH_ units (20 to 75 ton)
Nom. Tons F G H J K L M N
20 - 30
8 7/32" 6 31/32" 15 21/32" 13 21/32" 9 17/32" 8 1/2" 18 1/16" 19 9/16"
40 - 75
8 7/8" 7 7/8" 17 7/8" 15 7/8" 9 29/32" 10 3/16" 20 13/32" 22 5/32"
DDiimmeennssiioonnaall DDaattaa

Table of Contents

Related product manuals