EasyManua.ls Logo

Trane Tracer MP581 - Wire Routing

Trane Tracer MP581
110 pages
To Next Page IconTo Next Page
To Next Page IconTo Next Page
To Previous Page IconTo Previous Page
To Previous Page IconTo Previous Page
Loading...
Chapter 5 Wiring inputs and outputs
18 CNT-SVN01C-EN
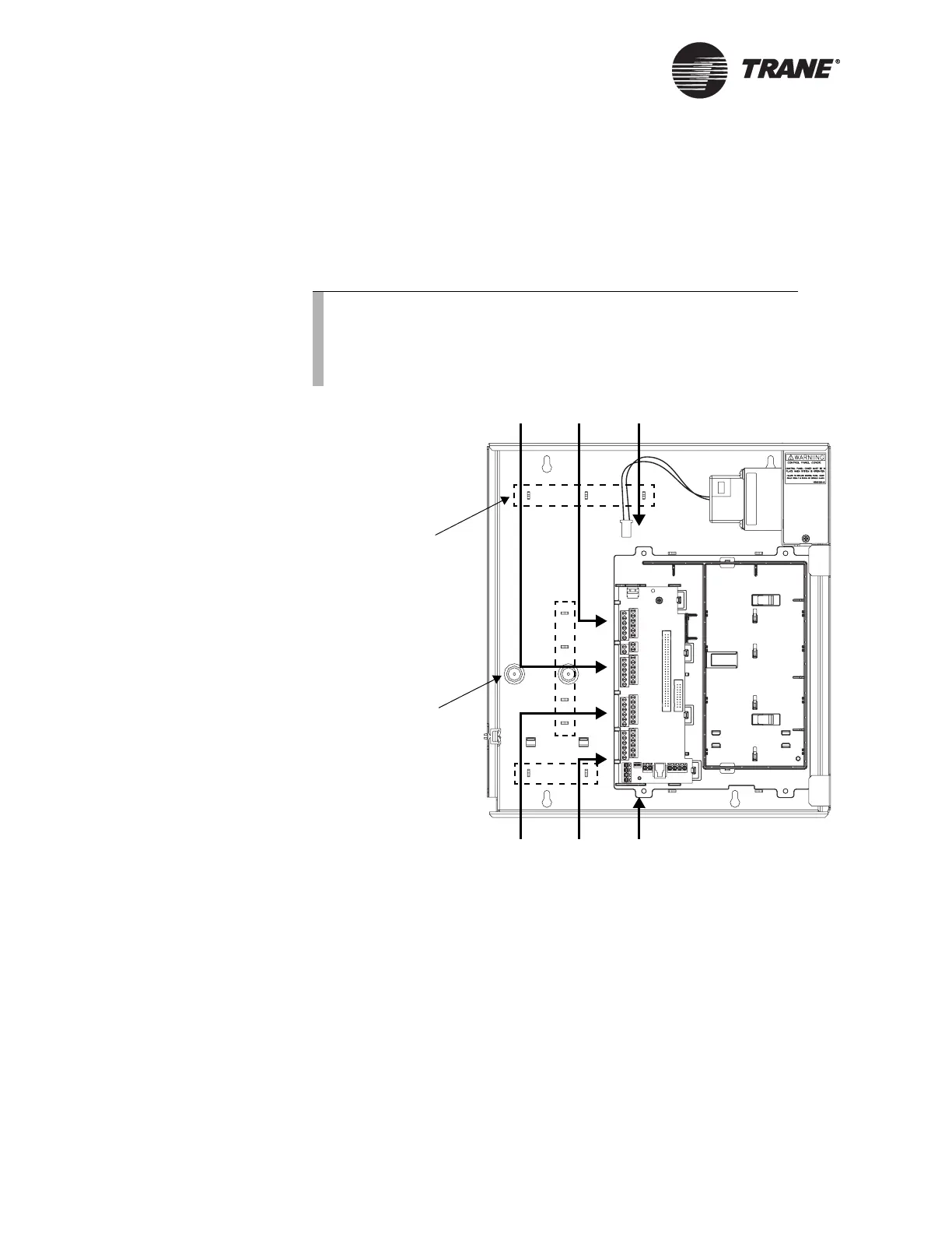
Wire routing
Figure 10 shows how to route input/output wires through the enclosure.
It also shows the locations of wire-tie brackets. See Figure 6 on page 11
for knockout locations and dimensions. Metal conduit may be required by
local codes when running input/output wires.
Figure 10. Wire routing
Note:
If your application requires a pressure sensor, install the pres-
sure sensor before wiring other inputs and outputs. (So that the
mounting holes are not covered by wires.) For more informa-
tion, refer to Chapter 6, “Installing the pressure sensor.”
Brackets for wire
ties (9 locations)
Mounting holes for
pressure sensor
(sensor will affect
wire routing)
Recommended
communication wire route

Table of Contents

Other manuals for Trane Tracer MP581

Related product manuals