EasyManua.ls Logo

TREND MT/JIG - Cutting the Mortise

TREND MT/JIG
27 pages
Print Icon
To Next Page IconTo Next Page
To Next Page IconTo Next Page
To Previous Page IconTo Previous Page
To Previous Page IconTo Previous Page
Loading...
MT/JIG
-20-
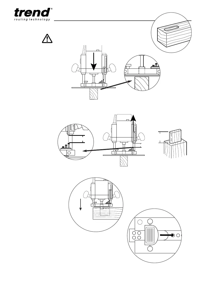
Cutting the
Mortise
5 - 6mm
After fitting
appropriate cutter
and 1” guide bush
Ref. GB254.
Lower cutter
down until it
touches end of
timber and lock
off plunge of
router.
Raise and lock
the depth stop to
the length of the
tenon required
plus 2mm.
Plunge and rout
backwards and
forwards at a
depth of no more
than 5-6mm in
repeated passes
until the full depth
is reached as set
by the depth stop.
L + 2mm
L
L
3
MANU-M&Tv2.2 8/7/10 10:51 Page 20

Related product manuals