EasyManua.ls Logo

Veichi AC310 - Drive Signal Processing Circuit

Veichi AC310
63 pages
Print Icon
To Next Page IconTo Next Page
To Next Page IconTo Next Page
To Previous Page IconTo Previous Page
To Previous Page IconTo Previous Page
Loading...
44
AC310 Universal AC Drive Service Manual
Common Mode Inductors
L1=WCM-453228-510YT01Maximum permissible current
230mA
TSS Tube
D4/D5=WES806S Breakdown voltage: 6.67~7.37V
Resistances
R39/R41=5.6K/0805R42/R43=10K/0402R92/R179=62Ω
R46/R47/R48=4.7K
Capacitors
C14/C15=1NF/0402C19=100NF/0402C24=2.2UF/10V
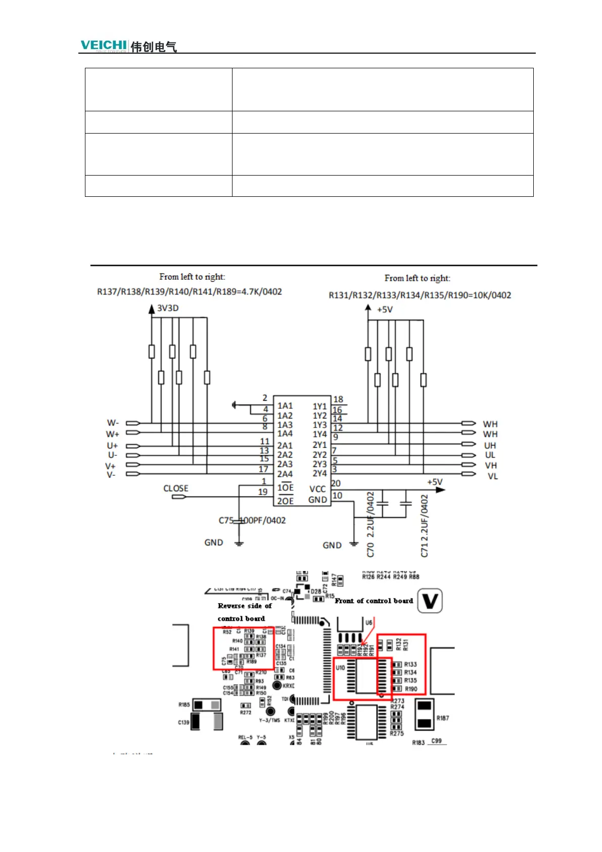
3.6 Drive Signal Processing Circuit
1. Circuit Description:

Table of Contents

Related product manuals