EasyManua.ls Logo

Viessmann B0KA - Preparing for Installation

Viessmann B0KA
100 pages
Print Icon
To Next Page IconTo Next Page
To Next Page IconTo Next Page
To Previous Page IconTo Previous Page
To Previous Page IconTo Previous Page
Loading...
11
350
126
308
700
767
58
58
123 123
109
A
B C D
E
G F
1925
118
300
H
161
125
400
35
Ø 60.5
Ø 96
-0.5
+0.8
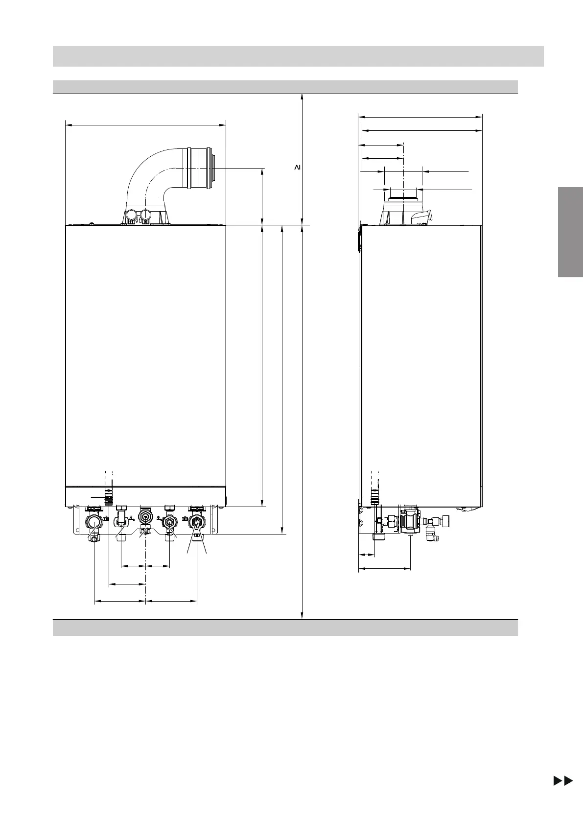
Fig. 2 Illustration shows a gas condensing combi
boiler
A
Condensate drain
B
Heating flow
C
DHW (gas condensing combi boiler)
Cylinder flow (gas condensing system boiler)
D
Gas connection
E
Cold water (gas condensing combi boiler)
Cylinder return (gas condensing system boiler)
F
Heating return
Preparing for installation
Preparing for installation
6179762
Installation

Table of Contents

Other manuals for Viessmann B0KA

Related product manuals